74環線東山路好市多
北屯買屋 /
北屯買房
-
專任 北屯獨棟臨路全新朝南電梯雙車別墅 北屯大樓建案
預約看屋
更多優質好屋: 196
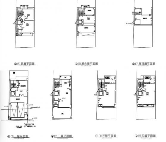
※ 房屋照片僅反應使用現況,用途以實際合法文件為準。若法定用途與現況不同,可能違法並有相關風險,請購屋或承租前詳加確認,以保障權益。
詳細資訊
特色說明
圖片介紹




















地圖 (點擊顯示地圖)
問與答
賣家資訊
北屯大樓建案
邱晨恩(仲介,收取服務費)
暱稱:邱晨恩
專業品質:
服務態度:
房仲電話:0955-962310
讚:11 (加入)永慶不動產-漢口山西 加盟店
經紀業名稱: 嘉星不動產經紀有限公司
證號: (108)登字第342572號
大家好!我是您在大台中的房仲夥伴,專注於台中北屯、西區、南區、東區、中區、大里、西屯、南屯、潭子、北區、梧棲、沙鹿和太平等地區的房屋買賣與租賃。我深耕在地多年,堅持用心感受每一位客戶的需求,誠實和負責是我對待工作的基本態度。
我相信專業是服務的基石,因此我始終以細心和謹慎的態度,為您提供最具價值的房產諮詢。而我熱情的性格和幽默的風格,讓每次的互動都充滿歡樂與輕鬆,讓您在尋找家園的過程中,感受到溫暖與安心。
作為獲得百萬經紀人員的我,從買賣房屋,租屋到包租代管,無論是收租套房或透套產品,公寓 華廈 大樓 商辦 店面 透天 別墅 土地 建地 農地 您都能在這裡找到合適的選擇。若您對房地產有任何疑問,或是想了解更多資訊,隨時歡迎與我聯繫!讓我們一起實現您的夢想家園吧!期待您的來訊!
崇德薈達人洲際漢神兩房兩衛平車視野戶 仁美國小 北屯大樓建案
台中市 北屯區
三井OUTLET台中海洋館附近華廈價格買透天 北屯大樓建案
台中市 梧棲區
專任 南區全合法電梯四套 合法裝修證明 有電梯 北屯大樓建案
台中市 南 區
四品牌獨家 正十一期輕屋齡邊間高樓三房平車 北屯大樓建案
台中市 北屯區
三采藝術大地 公園捷運宅 3+1 房柱邊平車 北屯大樓建案
台中市 南屯區
中科 新杜拜千萬夜景高樓無限視野邊間大兩房 北屯大樓建案
台中市 西屯區
緊鄰左營高鐵 16年屋 臨路車庫透天別墅 北屯大樓建案
高雄市 仁武區
文心崇德捷運宅 巴黎第六區 輕屋齡視野精裝宅 北屯大樓建案
台中市 北屯區
太平 大鑫大心 輕屋齡兩房前後陽台配平車 北屯大樓建案
台中市 太平區
西區台灣大道免千萬商辦免整理低總價超強採光視野 北屯大樓建案
台中市 西 區

預約看屋
發問
收藏房屋土地
分享





















我家粉絲團