公寓 二房
北屯買屋 /
北屯買房
-
曉明女中低總價美寓振
※以上照片若為街景,為物件附近環境介紹,非刊登物本身。
預約看屋
更多優質好屋: 188
※ 房屋照片僅反應使用現況,用途以實際合法文件為準。若法定用途與現況不同,可能違法並有相關風險,請購屋或承租前詳加確認,以保障權益。
- 總價:558 萬
- 參考單價:32.4 萬/坪
- 地址:
台中市
北屯區
青島路一段
地圖
🏷️ 查看區域實價登錄
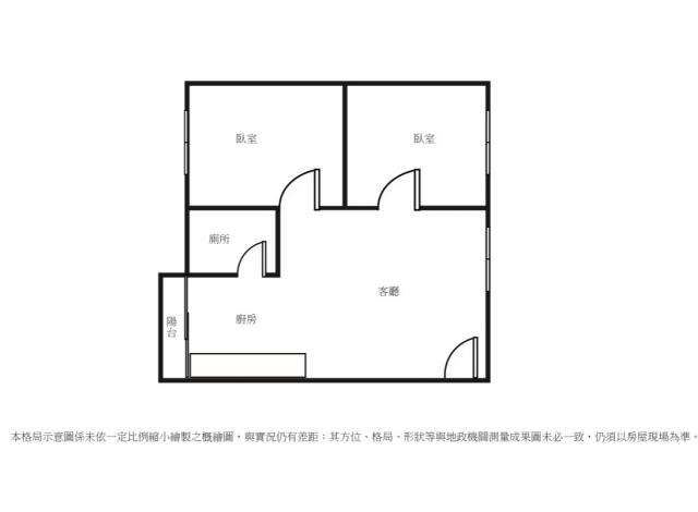
- 格局: 2房(室) 2廳 1衛 1陽台
- 總坪數:17.22 坪 (不含車位面積)
- 主建物面積:15.74 坪
- 附屬建物面積:0.74 坪
- 共同使用:0.74 坪
- 土地面積:0.74 坪
- 樓別/樓高: 4樓 / 5樓
- 屋齡:44 年
- 法定用途:住家用
- 形式/類型:住宅/ 公寓
詳細資訊
特色說明
圖片介紹









地圖 (點擊顯示地圖)
問與答
台中房屋陳昭榮
台中房屋陳昭榮
陳昭榮(仲介,收取服務費)
暱稱:陳昭榮
專業品質:
服務態度:
房仲電話:0931-583092
訂閱:0 (加入)群義房屋 青海家樂福店 加盟店
經紀業名稱: 西屯不動產仲介經紀有限公司
證號: 99153707
陳昭榮
專營套房收租
陳昭榮:0931583092
電話-搜尋-可加-LINE)
直接加LINE-溝通更方便!
財富自由第一步先要有被動收入
主打物件

預約看屋
發問
收藏房屋土地
分享









我家粉絲團