收租 套房
北區買屋 /
北區買房
-
一中商圈6%二樓精裝五套米
※以上照片若為街景,為物件附近環境介紹,非刊登物本身。
預約看屋
更多優質好屋: 188
※ 房屋照片僅反應使用現況,用途以實際合法文件為準。若法定用途與現況不同,可能違法並有相關風險,請購屋或承租前詳加確認,以保障權益。
- 總價:1438 萬
- 參考單價:47.41 萬/坪
- 地址:
台中市
北區
自強一街
地圖
🏷️ 查看區域實價登錄
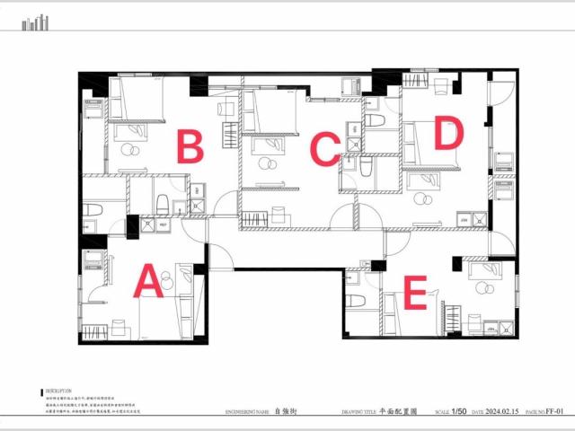
- 格局: 5房(室) 5廳 5衛 5陽台
- 總坪數:30.33 坪 (不含車位面積)
- 主建物面積:26.55 坪
- 附屬建物面積:3.78 坪
- 土地面積:7.68 坪
- 樓別/樓高: 2樓 / 5樓
- 屋齡:39 年
- 法定用途:住家用
- 形式/類型:住宅/ 套房
房市行情分析
物件單價:
—
萬/坪
房市房市行情:
—
萬/坪 (平均單價)
本圖表依實價登錄資料整理,提供市場行情參考;實際價格仍會因屋況、條件不同而有所差異,建議洽詢承辦營業員進一步了解。
詳細資訊
特色說明
圖片介紹
















地圖 (點擊顯示地圖)
問與答
台中房屋陳昭榮
台中房屋陳昭榮
陳昭榮(仲介,收取服務費)
暱稱:陳昭榮
專業品質:
服務態度:
房仲電話:0931-583092
訂閱:0 (加入)群義房屋 青海家樂福店 加盟店
經紀業名稱: 西屯不動產仲介經紀有限公司
證號: 99153707
陳昭榮
專營套房收租
陳昭榮:0931583092
電話-搜尋-可加-LINE)
直接加LINE-溝通更方便!
財富自由第一步先要有被動收入
主打物件
預約看屋
發問
收藏房屋土地
分享
















我家粉絲團