收租 套房
北區買屋 /
北區買房
-
北區全新獨棟12間電梯透套(預售)
預約看屋
更多優質好屋: 188
※ 房屋照片僅反應使用現況,用途以實際合法文件為準。若法定用途與現況不同,可能違法並有相關風險,請購屋或承租前詳加確認,以保障權益。
- 總價:3980 萬
- 參考單價:50.89 萬/坪
- 地址:
台中市
北區
自強街
地圖
🏷️ 查看區域實價登錄
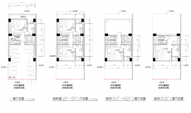
- 格局: 12房(室) 12廳 12衛 12陽台
- 總坪數:78.21 坪 (不含車位面積)
- 主建物面積:78.21 坪
- 土地面積:25.1 坪
- 樓別/樓高: 整棟 / 7樓
- 屋齡:0 年
- 法定用途:住家用
- 形式/類型:住宅/ 別墅
- 車位:其它
- 車位描述:機車位
- 電梯:有
房市行情分析
詳細資訊
特色說明
圖片介紹








地圖 (點擊顯示地圖)
我家AI分析|物件診斷一次看
本內容由AI輔助分析整理,僅供參考,實際情況仍建議依此房仲說明與個人需求判斷。
SWOT 分析
| 面向 | 內容 |
|---|---|
| 優勢 (Strengths) | 1. 地段優越:鄰近中國醫藥大學及體大,學生與教職員租賃需求穩定。 2. 產品新穎:預售屋零屋齡,標配電梯與現代化設施,符合租戶對品質的期待。 3. 投資回報率高:宣稱年租金收 216 萬,投報率達 5.4%,高於一般銀行定存利率。 4. 管理集中:整棟持有一處,相較於持有分售屋產權,後續租賃管理與維護較易控管。 |
| 劣勢 (Weaknesses) | 1. 單坪數值極小:每間套房僅 5.6 坪,空間侷限,除租學生外,自用居住體驗性低。 2. 價格門檻高:總價 3980 萬,對一般自住購屋者而言預算壓力大,且投資型產品流動性較差。 3. 坪數疑點:資料顯示「總坪數 78.21」與文字描述「使用 100 坪」存在落差,需確認實際產權面積。 4. 停車位問題:車位未包含在總坪數內,購屋後需額外評估車位取得與管理問題。 |
| 機會 (Opportunities) | 1. 租賃市場穩健:大學周邊始終是租屋熱區,空置風險相對傳統住宅較低。 2. 增值空間:預售期至 115 年交屋,若區域發展良好,有房價上漲的潛在機會。 3. 資金挹注:若能以合理房貸利率購入,利用銀行資金放大投資報酬率成為可行策略。 |
| 威脅 (Threats) | 1. 施工風險:預售屋跨年至 2026 年交屋期間,若發生延工或違建疑慮將影響權益。 2. 租金波動:若未來學生人數減少或周邊租屋供給增加,可能導致租金與空屋率不確定。 3. 流動性風險:整棟小型套房出售對象多為其他投資者,買家群體較窄,急賣時可能折價。 |
物件評論
此物件非常適合具備投資需求的購屋者,但不建議作為家庭自住房產購入。
主要理由如下:首先,其位於大專院校周邊,學生租屋需求穩定,且宣稱的租金投報率對於追求現金流的投資者具吸引力。其次,建築本身為全新預售且包含合法電梯,產品維護成本相對較低。
然而,您需特別注意以下風險點:第一,12 間小坪數套房集中在同一棟,未來租務管理(如噪音、出入人流)可能對鄰居造成影響;第二,請務必確認「78.21 坪」與「使用 100 坪」的落差原因,並查證建照執照是否合法無誤;第三,總價近四千萬元門檻較高,建議評估自身資金調度能力與銀行融資狀況。若能透過律師或專業人員確認法律細節與工安品質後購入,將是具備高現金流潛力的投資標的。
問與答
台中房屋陳昭榮
台中房屋陳昭榮
陳昭榮(仲介,收取服務費)
暱稱:陳昭榮
專業品質:
服務態度:
房仲電話:0931-583092
訂閱:0 (加入)群義房屋 青海家樂福店 加盟店
經紀業名稱: 西屯不動產仲介經紀有限公司
證號: 99153707
陳昭榮
專營套房收租
陳昭榮:0931583092
電話-搜尋-可加-LINE)
直接加LINE-溝通更方便!
財富自由第一步先要有被動收入
預約看屋
發問
收藏房屋土地
分享








我家粉絲團