詳細資訊
管理方式:無
物件資訊內容以登記簿謄本或預售屋買賣契約為準,若有疑問請洽承辦人員。
物件資訊內容以登記簿謄本或預售屋買賣契約為準,若有疑問請洽承辦人員。
特色說明
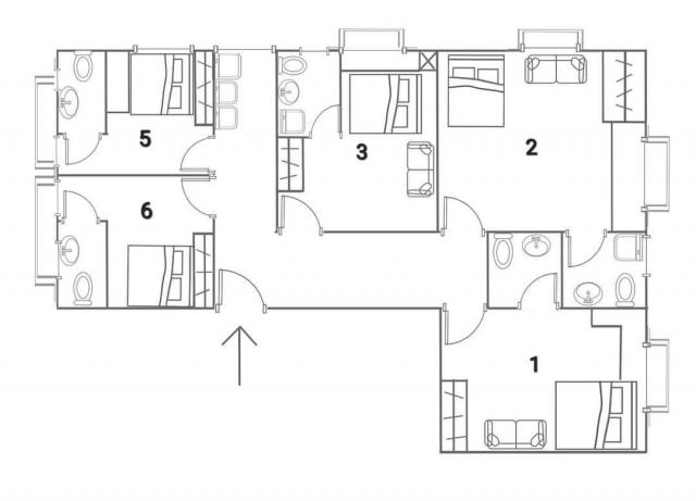
圖片介紹









地圖 (點擊顯示地圖)
問與答
賣家資訊
台中房屋陳昭榮
陳昭榮(仲介,收取服務費)
暱稱:陳昭榮
專業品質:
服務態度:
房仲電話:0931-583092
讚:0 (加入)群義房屋 青海家樂福店 加盟店
經紀業名稱: 西屯不動產仲介經紀有限公司
證號: 99153707
陳昭榮
專營套房收租
陳昭榮:0931583092
電話-搜尋-可加-LINE)
直接加LINE-溝通更方便!
財富自由第一步先要有被動收入
主打物件
預約看屋
發問
收藏房屋土地
分享









預約看屋

我家粉絲團