收租 套房
北屯買屋 /
北屯買房
-
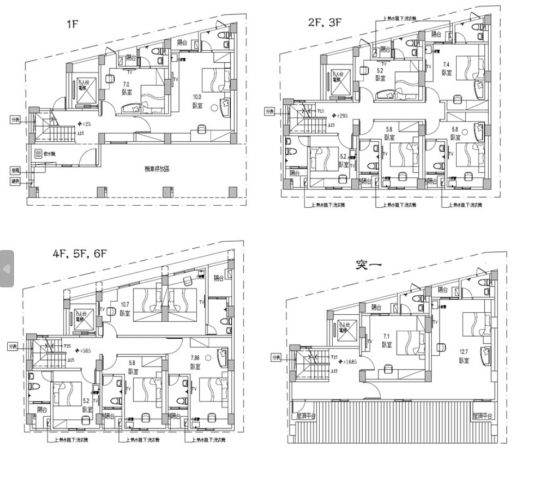
全新水湳經貿26間電梯收租透套
※以上照片若為街景,為物件附近環境介紹,非刊登物本身。
預約看屋
更多優質好屋: 195
※ 房屋照片僅反應使用現況,用途以實際合法文件為準。若法定用途與現況不同,可能違法並有相關風險,請購屋或承租前詳加確認,以保障權益。
詳細資訊
管理方式:保全系統
管理描述:24小時安全管制
朝向方位:坐西南朝東北
鄰近學校:中醫水湳校區
生活機能:水湳市場
附近交通:四通八達
面臨路寬:8米
物件資訊內容以登記簿謄本或預售屋買賣契約為準,若有疑問請洽承辦人員。
管理描述:24小時安全管制
朝向方位:坐西南朝東北
鄰近學校:中醫水湳校區
生活機能:水湳市場
附近交通:四通八達
面臨路寬:8米
物件資訊內容以登記簿謄本或預售屋買賣契約為準,若有疑問請洽承辦人員。
特色說明
圖片介紹















地圖 (點擊顯示地圖)
問與答
賣家資訊
台中房屋陳昭榮
陳昭榮(仲介,收取服務費)
暱稱:陳昭榮
專業品質:
服務態度:
房仲電話:0931-583092
讚:0 (加入)群義房屋 青海家樂福店 加盟店
經紀業名稱: 西屯不動產仲介經紀有限公司
證號: 99153707
陳昭榮
專營套房收租
陳昭榮:0931583092
電話-搜尋-可加-LINE)
直接加LINE-溝通更方便!
財富自由第一步先要有被動收入
主打物件
預約看屋
發問
收藏房屋土地
分享
















我家粉絲團