中山買屋 /
中山買房
-
台北法拍專家 【專任出售】預售-南京葒精品宅
預約看屋
更多優質好屋: 170
※ 房屋照片僅反應使用現況,用途以實際合法文件為準。若法定用途與現況不同,可能違法並有相關風險,請購屋或承租前詳加確認,以保障權益。
- 總價:1600 萬
- 參考單價:132.56 萬/坪
- 地址:
台北市
中山區
松江路
地圖
🏷️ 查看區域實價登錄
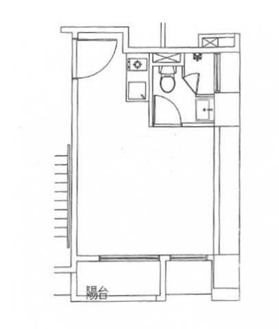
- 總坪數:12.07 坪 (不含車位面積)
- 主建物面積:6.82 坪
- 附屬建物面積:0.81 坪
- 共同使用:4.44 坪
- 樓別/樓高: 3樓 / 9樓
- 法定用途:住家用
- 形式/類型:住宅/ 電梯大樓
- 電梯:有
詳細資訊
管理費:1811 元/月
管理描述:暫定150元/坪
朝向方位:坐北朝南
鄰近學校:長安國小 長安國中
鄰近公園:吉林公園 松江公園
生活機能:全聯福利中心(中山南京店)
附近交通:捷運-松江南京站
面臨路寬:6米
物件資訊內容以登記簿謄本或預售屋買賣契約為準,若有疑問請洽承辦人員。
特色說明
圖片介紹



地圖 (點擊顯示地圖)
我家AI分析|物件診斷一次看
本內容由AI輔助分析整理,僅供參考,實際情況仍建議依此房仲說明與個人需求判斷。
1. SWOT 分析
| 面向 | 內容 |
|---|---|
| 優勢 (Strengths) | 1. 極佳地理位置:坐落於中山區核心地帶,鄰近捷運松江南京站(雙軌交匯),步行即達,通勤極為便利。 2. 生活機能完善:周邊有全聯福利中心、吉林公園及松江公園,日常採買與休閒娛樂動線短。 3. 教育資源優渥:學區包含長安國小與長安國中,步行範圍內即可就讀,適合重視子女教育的家庭。 4. 產品新穎度:為預售屋,通常擁有較新的建築法規設計、電梯設備及公共空間規劃。 |
| 劣勢 (Weaknesses) | 1. 單價與總價偏高:參考單價約 132.56 萬/坪,總價 1600 萬元,對於小型戶而言門檻較高。 2. 坪數較小:總坪數 12.07 坪屬精緻型產品,若為多人口家庭,居住空間可能稍顯緊湊。 3. 標題易生混淆:案名標示「台北法拍專家」但實際為預售屋出售,容易讓購屋者誤以為是法拍物件,需確認交易屬性。 |
| 機會 (Opportunities) | 1. 資產配置潛力:位於台北市區核心地段,具保值與抗跌特性,適合長期投資或傳家。 2. 租賃需求穩定:鄰近捷運與生活商圈,出租市場需求通常較穩定,租金回報率可觀。 3. 居住舒適度提升:預售新案可依據個人喜好於裝潢階段調整(如屋內格局),公設區規劃完善。 |
| 威脅 (Threats) | 1. 建案風險:預售屋可能存在交屋延遲或施工品質落差的不確定性。 2. 額外費用成本:簽約時需另收取 2% 服務費,增加購屋預算支出。 3. 市場波動風險:房價受景氣與利率政策影響,高單價物業若遇市場調整,持有成本較重。 |
2. 物件評論
此物件位於台北市中山區黃金地段,交通與生活機能極為優勢,尤其適合在該區域工作、重視通勤效率或需考量學子教育資源的買家。由於是預售新案,居住品質通常優於同區舊產品。然而,1600 萬元的總價與每坪近 133 萬的單價屬於高門檻投資,且 12 坪左右的格局較為適合小家庭或作為投資收租用途。
是否值得購買: 若您的購屋目的偏向「自住兼保值」或「長期出租投資」,且對總價預算有彈性,此物件非常值得列入考慮清單。建議您在洽詢時,務必確認「法拍專家」標題與「預售屋」性質的差異,並明確核算包含 2% 服務費在內的實際購屋成本,再根據自身家庭居住需求決定是否接受其坪數大小。
問與答
台北法拍專家
台北法拍專家
王嘉慧(仲介,收取服務費)
暱稱:王嘉慧
專業品質:
服務態度:
房仲電話:0912-401629
訂閱:2 (加入)台北旗艦 加盟店
經紀業名稱: 現代物業經紀股份有限公司
證號: (103)登字第274612號
台北法拍專家 王嘉慧 0912401629
台北法拍專家 台北市士林區中山北路七段205-1號1樓
台北市 士林區
台北法拍專家 台北市大安區復興南路一段122巷6-21號1樓
台北市 大安區
台北法拍專家 新北市新店區玫瑰路57巷31號2樓
新北市 新店區
台北法拍專家 台北市內湖區環山路一段59巷24號2樓
台北市 內湖區
台北法拍專家 新北市三重區忠孝路三段50巷62號4樓
新北市 三重區
台北法拍專家 台北市萬華區寶興街230號5樓
台北市 萬華區
台北法拍專家 新北市蘆洲區中正路185巷78弄6號2樓
新北市 蘆洲區
台北法拍專家 台北市北投區行義路186巷26弄6號5樓
台北市 北投區
台北法拍專家 新北市永和區環河西路二段209巷7號11樓之2
新北市 永和區
台北法拍專家 台北市大同區民生西路169號1樓
台北市 大同區
預約看屋
發問
收藏房屋土地
分享



我家粉絲團