鶯歌社區大樓
鶯歌買屋 /
鶯歌買房
-
鶯歌社區大樓-台北國寶典雅四房+車位@地點好/稀有四房/低管
預約看屋
更多優質好屋: 88
※ 房屋照片僅反應使用現況,用途以實際合法文件為準。若法定用途與現況不同,可能違法並有相關風險,請購屋或承租前詳加確認,以保障權益。
- 總價:1890 萬
- 參考單價:40.38 萬/坪
- 地址:
新北市
鶯歌區
中山路
地圖
🏷️ 查看區域實價登錄
- 社區:台北國寶
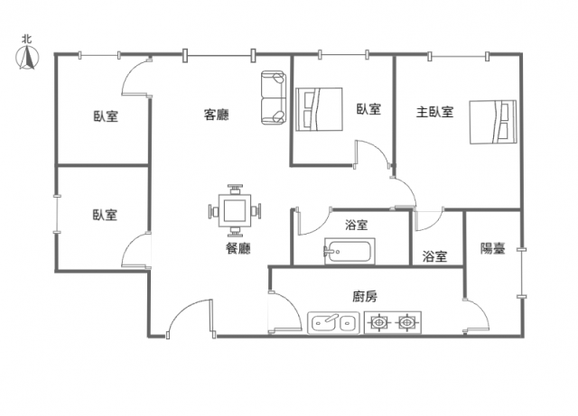
- 格局: 4房(室) 2廳 2衛 1陽台 1廚房
- 總坪數:46.8 坪 (不含車位面積)
- 主建物面積:26.82 坪
- 附屬建物面積:2.73 坪
- 共同使用:11.74 坪
- 其他面積:5.51 坪
- 樓別/樓高: 8樓 / 12樓
- 屋齡:15 年
- 法定用途:住家用
- 形式/類型:住宅/ 電梯大樓
- 車位:坡道平面式
- 電梯:有
詳細資訊
管理費:2203 元/月
管理描述:包含車位管理費
朝向方位:坐南朝北
鄰近學校:建國國小.鶯歌國中
生活機能:五福市場.全聯
附近交通:國華捷運站
物件資訊內容以登記簿謄本或預售屋買賣契約為準,若有疑問請洽承辦人員。
特色說明
圖片介紹



















地圖 (點擊顯示地圖)
我家AI分析|物件診斷一次看
本內容由AI輔助分析整理,僅供參考,實際情況仍建議依此房仲說明與個人需求判斷。
買房者 SWOT 分析
| 面向 | 內容 |
|---|---|
| 優勢 (Strengths) | 1. 性價比高:總價 1890 萬在台北國寶社區屬於低入門門檻,每坪單價約 40 萬元,符合區域行情的合理區間。 2. 格局稀有:擁有四房兩廳兩大衛的稀缺格局,且包含車位,對於有家庭或需多房間需求的買家極具吸引力。 3. 持有成本低:每月管理費約 2200 元,對於大坪數電梯大樓而言非常低廉,長期居住負擔輕。 4. 生活機能佳:鄰近五福市場、全聯超市及七十一便利商店,且對面即為建國國小與鶯歌國中,就學與採買極為便利。 |
| 劣勢 (Weaknesses) | 1. 屋齡因素:屋齡約 15 年,雖非老舊大樓,但購買後可能需留意電梯、水電管線等設備的使用狀況與維護成本。 2. 車位類型:配置為坡道平面式車位,存取車輛時不如箱型停車庫方便,且可能受地形影響。 3. 地理位置:位於鶯歌區,距離台北市區通勤時間較長,對於在北市工作的上班族而言,往返時間成本較高。 |
| 機會 (Opportunities) | 1. 交通潛力:附近已有國華捷運站,且提及有興建中捷運站(約 300 公尺),若未來完工可能提升區域房價與交通便利度。 2. 學區優勢:對面即國小的學區優勢明顯,對於子女在學中的家庭來說,是穩定的自住理由。 3. 租屋市場:四房格局在區域內較少,若有家庭客或學生合租需求,租金回報率可能穩定。 |
| 威脅 (Threats) | 1. 資產增值性:新北周邊區域房市漲幅通常不如台北市核心區,投資報效期可能較長。 2. 維修風險:隨著屋齡增長,未來若需進行大修基金或公共設施更新,將額外產生一筆費用。 |
物件評論
此物件整體而言值得列入考慮,特別適合預算有限但對居住空間有需求的家庭買方。
主要理由如下:該案在總價 1890 萬的價位下,提供了「四房 + 車位」的稀有格局,並兼具低管理費與完善的生活機能,極具自住實用性。尤其是對面即為學校的地點,對於重視子女就學的家庭來說是一大亮點。不過,建議購買前務必確認屋齡 15 年之房屋細節狀況(如防水、水電),並評估自身通勤時間是否在可接受範圍內,若以「長居」與「預算平衡」為優先考量,此物件是一個高 CP 值且安心的選擇。
問與答
鶯歌社區大樓
鶯歌社區大樓
蘇上恩(仲介,收取服務費)
暱稱:蘇上恩
專業品質:
服務態度:
房仲電話:0960-535340
訂閱:3 (加入)太平洋房屋 鶯歌建國 加盟店
經紀業名稱: 巨眾不動產經紀有限公司
證號: (108)登字第344678號
我是三峽鶯歌的在地人,三峽鶯歌好房,蘇上恩,0960535340,太平洋房屋,鶯歌建國加盟店
在這個頁面裡,您可以輕鬆地找適合您需求的好房, 鶯歌有分三大區塊, [[市區, 鳳鳴重劃區, 尖山區]], 您只需搜尋時鍵入前述三區之其一即可找到您想要的區域
其他區域[[ 北大, 三峽, 南崁, 龜山, 桃園, 觀音, 等等...]]
每一位買方,都有家的夢想
每一位屋主,都有家的價值
完成客戶的託付,讓客戶的夢想與價值,能夠圓滿實現,就是我感到最開心的事
我們有經驗最豐富,實力最堅強的團隊,能幫您解決任何房屋,土地等等問題,期待有為您服務的機會!!
我專注於房地產的各個方面,讓我們一起探索美好的居住空間!秉持誠實、負責的態度,我深知每一位客戶在購屋過程中的需求與期待,因此總是用同理心傾聽並提供最佳的建議。憑藉沉穩的個性與豐富的經驗,我在房仲業界獲得了年度300萬經紀人、月百萬經紀人及季百萬經紀人的榮譽,這一切都源於我對房地產市場的熱愛與對客戶的用心。
我熟悉行情趨勢、安全交易、貸款試算、裝潢規劃等專業領域,專精於鶯歌市區、尖山區、鳳鳴區及北大特區,致力於快速為您配對理想家園。無論您是買房、賣房或尋求建議,隨時都可以聯繫我,讓我們一起邁向美好的生活旅程!期待您的來訊,讓我成為您最可靠的夥伴!
專約-北大-世界公園景觀兩房車@最優次頂樓
新北市 樹林區
專約-預售-台中天韻大二房車
台中市 清水區
鶯歌社區大樓-學區家隆花園大三房@低總價電梯房
新北市 鶯歌區
鶯歌社區大樓-陶哲景觀二房+平車@租不如買‼輕齡屋✔絕美溫馨
新北市 鶯歌區
鶯歌透天別墅-藝品世家@鬧中取靜
新北市 鶯歌區
鶯歌社區大樓-鶯歌台北康橋邊間陽光兩房車@低總價電梯房
新北市 鶯歌區
鶯歌社區大樓-巨東藏全新挑高二房+車位@同心圓上恩
新北市 鶯歌區
鶯歌社區大樓-專約-大吉地三房@低總價/低公設/大空間
新北市 鶯歌區
鶯歌社區大樓-金鶯一品高樓景觀大三房+雙車位@同心圓上恩
新北市 鶯歌區
鶯歌社區大樓-狀元第大空間一樓平車@同心圓上恩
新北市 鶯歌區
預約看屋
發問
收藏房屋土地
分享



















我家粉絲團