桃園市龜山區東舊路街
龜山買屋 /
龜山買房
-
新北房仲推薦 售龜山廠房 龜山工業城 全新透天廠
預約看屋
更多優質好屋: 32
※ 房屋照片僅反應使用現況,用途以實際合法文件為準。若法定用途與現況不同,可能違法並有相關風險,請購屋或承租前詳加確認,以保障權益。
- 總價:5210 萬
- 參考單價:34.99 萬/坪
- 地址:
桃園市
龜山區
東舊路街
地圖
🏷️ 查看區域實價登錄
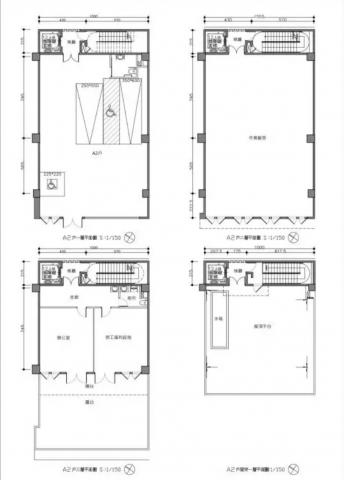
- 格局: 開放空間
- 總坪數:148.91 坪 (不含車位面積)
- 主建物面積:104.78 坪
- 附屬建物面積:44.13 坪
- 土地面積:80 坪
- 樓別/樓高: 1~3樓 / 3樓
- 法定用途:廠房
- 形式/類型:廠房/ 工廠
- 電梯:有
影音專區
房市行情分析
詳細資訊
鄰近學校:龜山國民中學 自強國小 長庚國民小學
鄰近公園:落羽松公園 梅花公園 龜山中正公園
生活機能:龜山黃昏市場
物件資訊內容以登記簿謄本或預售屋買賣契約為準,若有疑問請洽承辦人員。
特色說明
圖片介紹






















地圖 (點擊顯示地圖)
我家AI分析|物件診斷一次看
本內容由AI輔助分析整理,僅供參考,實際情況仍建議依此房仲說明與個人需求判斷。
購屋分析報告:龜山工業城全新透天廠 (編號 1304812)
一、SWOT 分析
| 面向 | 內容 |
|---|---|
| 優勢 (Strengths) | 物業位於桃園龜山區核心地帶,生活機能完善(鄰近黃昏市場、公園)。建築為全新透天廠房,屋況新,維護成本低。具備三層樓貨梯與大貨車調頭空間,適合實體運輸需求,產業使用彈性高。單坪參考價約 34.99 萬,在桃園工業區中屬合理範圍。 |
| 劣勢 (Weaknesses) | 總價高达 5210 萬元,資金門檻高,潛在買家族群較窄。標的地點行政區為桃園龜山,但標題寫「新北」,可能產生認知誤差或資訊不精確疑慮。車位未包含在總坪數內,需確認額外土地成本與使用權限。 |
| 機會 (Opportunities) | 鄰近長庚醫院及多所學校,周邊人口穩定,產業聚集度逐漸提升,未來租金收益潛力可期。若企業擴大生產或轉型倉儲需求,此類新成廠房符合現代化營運趨勢,易於出租給中大型企業。 |
| 威脅 (Threats) | 工業用地法規較嚴謹,須確認土地使用分區是否符合預期用途,避免違法使用風險。房地產流動性不如住宅,高總價物件在經濟波動時去化速度可能較慢。市場標題與地址不一致的情況需審慎核實,以防潛在法律或登記問題。 |
二、物件評論
此物件對於有實體生產需求或長期收租規劃的買家而言,具有一定的吸引力,但建議持保留態度並仔細核查。
購買建議:值得考慮,但需進行盡職調查後再決定。
主要理由如下:
- 實用性高:新建透天配置貨梯與迴車空間,直接滿足工業運輸需求,相比老舊廠房更具優勢。
- 地點成熟:龜山區生活機能穩定,且鄰近長庚生活圈,有助於未來產業招商或員工通勤便利。
- 資訊確認關鍵:標題提及「新北」卻位於「桃園」,雖地理位置相近,但行政區劃涉及稅務與法規,務必確認標的權狀與公告資料是否一致。此外,總價近五千二百萬元的資金壓力較大,需評估自身現金流與回本週期。
若您的預算允許且確有工業用途需求,此物件是當地不可多得的選擇;若以投資增值或短期持有為目的,則需考量工業地產的流動性風險。
問與答
新北房仲推薦
新北房仲推薦
張竣瑋(仲介,收取服務費)
暱稱:房仲竣瑋
專業品質:
服務態度:
房仲電話:0955-971805
訂閱:1 (加入)住商不動産 樹林中華加盟店 加盟店
經紀業名稱: 紘揚不動產有限公司
證號: (95)登字第066723號
新北房仲推薦 張竣瑋 0955-971-805
小胖 阿瑋 房仲竣瑋
大家好!我是您的專業房仲,專注於樹林、新莊、板橋、土城等熱門地區。我的名字是 房仲竣瑋,擁有堅持、熱情和毅力的特質,這幫助我在市場上脫穎而出。謹慎是我與客戶建立信任的關鍵,讓每一個房產交易都能夠安心無虞。
在這個快速變化的房地產市場中,我精通各種住宅類型,包括大樓、華廈、透天與商業用地。尤其是在上閣築、文林世家和光明大道等社區,我對它們的特性與潛力瞭若指掌,曾經榮獲多項業界獎項,這更是對我專業能力的肯定。
如果您正在找尋理想的居所或者投資機會,別猶豫!隨時與我聯繫,讓我為您找到完美的家。期待和您一起,開展美好的房產旅程!
新北房仲推薦 售板橋房屋 金門壹樓 4房雙衛大露台
新北市 板橋區
新北房仲推薦 新莊房屋 新莊民本美寓 只開1080萬
新北市 新莊區
新北房仲推薦 樹林區A003 冠軍A 豪華漂亮屋 房仲竣瑋
新北市 樹林區
新北房仲推薦 A073 鶯歌老街 華廈大四房
新北市 鶯歌區
新北房仲推薦 A079 土城房屋 四季廣場 電梯3房
新北市 土城區
新北房仲推薦 A049 樹林 國凱福星 邊間電梯四房
新北市 樹林區
新北房仲推薦 樹林區 D017 光興街 便宜透天
新北市 樹林區
新北房仲推薦 售樹林房屋 千歲收租屋
新北市 樹林區
新北房仲推薦 樹林後站 A052 電梯四房 平面車位
新北市 樹林區
新北房仲推薦 樹林 A044 後站京站一品
新北市 樹林區

預約看屋
發問
收藏房屋土地
分享






















我家粉絲團