詳細資訊
管理費:2424 元/月
朝向方位:坐西南朝東北
鄰近學校:福山國小/福山國中
鄰近公園:重愛公園/微笑公園
生活機能:自由黃昏市場
附近交通:R16高鐵捷運站
面臨路寬:10米
物件資訊內容以登記簿謄本或預售屋買賣契約為準,若有疑問請洽承辦人員。
特色說明
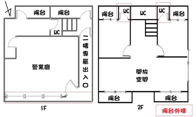
圖片介紹


















地圖 (點擊顯示地圖)
問與答
賣家資訊
左營房屋推薦
侯家檥(仲介,收取服務費)
暱稱:侯家檥
專業品質:
服務態度:
房仲電話:0988-699252
讚:7 (加入)左營高鐵店 加盟店
經紀業名稱: 振吉不動產經紀有限公司
證號: 148665
大家好~我是侯家檥~本著簡單的信念~根據您的需求找到您想要的房子~只想幫您找到和您有緣的下一任屋主~把您的理想需求告訴家檥~把您的房子委託給家檥銷售...家檥會努力的幫您完成^^
左營房屋推薦 安平區億載國小低總價優質溫馨美3房
台南市 安平區
左營房屋推薦 【冠傑高鐵新特區】霞海三房平車│捷運科技宅15F
高雄市 仁武區
左營房屋推薦 【冠傑高鐵新特區】霞海三房平車│捷運科技宅12F
高雄市 仁武區
左營房屋推薦 楠梓行政法院車庫透天
高雄市 楠梓區
左營房屋推薦 三多武慶商商圈福康國小旁活巷待整理透天
高雄市 苓雅區
左營房屋推薦 前後庭院+夾層增建滿營住合一5房三陽台大平車位
高雄市 左營區
左營房屋推薦 河堤裕誠商圈視野無敵3+1房平面車位
高雄市 左營區
左營房屋推薦 【冠傑高鐵新特區】霞海三房平車│捷運科技宅11F
高雄市 仁武區
左營房屋推薦 民權公園/微笑時代/高樓層唯美裝潢二房平車
高雄市 左營區
左營房屋推薦 R16左營高鐵新光三越百貨/三房平面車位
高雄市 左營區
預約看屋
發問
收藏房屋土地
分享


















預約看屋

我家粉絲團