竹東麥當勞
竹東買屋 /
竹東買房
-
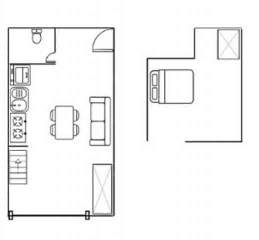
頂好富貴景觀四房 新竹東區好房
※以上照片若為街景,為物件附近環境介紹,非刊登物本身。
預約看屋
更多優質好屋: 16
※ 房屋照片僅反應使用現況,用途以實際合法文件為準。若法定用途與現況不同,可能違法並有相關風險,請購屋或承租前詳加確認,以保障權益。
詳細資訊
管理方式:無
物件資訊內容以登記簿謄本或預售屋買賣契約為準,若有疑問請洽承辦人員。
物件資訊內容以登記簿謄本或預售屋買賣契約為準,若有疑問請洽承辦人員。
特色說明
圖片介紹

















地圖 (點擊顯示地圖)
問與答
賣家資訊
新竹東區好房
林秋如(仲介,收取服務費)
暱稱:林秋如
專業品質:
服務態度:
房仲電話:0912-559557
讚:1 (加入)永慶介壽忻居 加盟店
經紀業名稱: 忻居不動產仲介事業有限公司
證號: (113)登字第463292號
新竹東區好房 林秋如 0912-559-557

預約看屋
發問
收藏房屋土地
分享



















我家粉絲團