皇普鉑苑公園兩房雙車
楊梅買屋 /
楊梅買房
-
皇普鉑苑公園旁高樓景觀兩房子母車位|房仲小呂
預約看屋
更多優質好屋: 27
※ 房屋照片僅反應使用現況,用途以實際合法文件為準。若法定用途與現況不同,可能違法並有相關風險,請購屋或承租前詳加確認,以保障權益。
- 總價:
1288 萬
1158 萬 (含車位價) - 參考單價:37.23 萬/坪
- 地址:
桃園市
楊梅區
四維二路
地圖
🏷️ 查看區域實價登錄
- 社區:皇普鉑苑
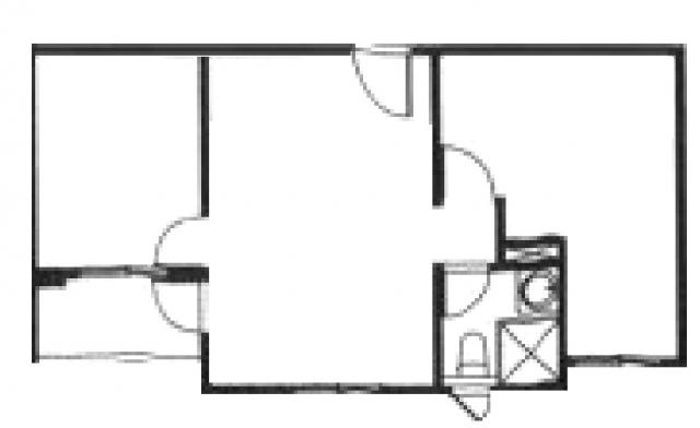
- 格局: 2房(室) 1廳 1衛 1陽台 1廚房
- 總坪數:32.697 坪 (包含車位面積)
- 主建物面積:15.899 坪
- 附屬建物面積:1.174 坪
- 共同使用:15.624 坪
- 車位坪數:7.77 坪
- 土地面積:4.933 坪
- 樓別/樓高: 14樓 / 14樓
- 屋齡:5 年
- 法定用途:住家用
- 形式/類型:住宅/ 電梯大樓
- 車位:坡道平面式
- 車位描述: 柱邊子母車位,可以不用移車
- 電梯:有
詳細資訊
管理費:2071 元/月
朝向方位:坐西南朝東北
鄰近學校:瑞塘國小/ 瑞坪國中
鄰近公園:四維兒童公園
生活機能:埔心/萬大黃昏市場
物件資訊內容以登記簿謄本或預售屋買賣契約為準,若有疑問請洽承辦人員。
特色說明
圖片介紹



















地圖 (點擊顯示地圖)
我家AI分析|物件診斷一次看
本內容由AI輔助分析整理,僅供參考,實際情況仍建議依此房仲說明與個人需求判斷。
SWOT 分析
| 面向 | 內容 |
|---|---|
| 優勢 | 1. 樓層景觀與車位: 位於 14 樓頂樓,擁有極佳視野,且總價包含坡道平面車位,在桃園楊梅區屬高價值配置。 2. 屋況與建材: 屋齡僅 5 年,建商配備力霸氣密窗、櫻花廚具與 DEREK 衛浴,基本裝修完善,購屋者即可直接入住。 3. 生活機能: 鄰近四維兒童公園,適合家庭休閒;周邊有埔心市場、萬大市場及全聯,日常採買便利。 4. 交通便利: 距埔心車站約 1 公里,且有國道客運直通長庚醫院與捷運站,通勤路網完善。 |
| 劣勢 | 1. 戶型規劃: 僅有 2 房 1 廳 1 衛,衛浴數量較少,若有家庭人口增加或晨間高峰需求,可能會感到擁擠。 2. 頂樓因素: 雖為高樓層,但 14 樓屬於屋棟頂層,夏季可能受日照影響較熱,且需確認防水隔熱狀況。 3. 社區密度: 一層 6 戶配 2 部電梯,雖無大規模擁擠問題,但電梯使用效率視住户使用習慣而定。 |
| 機會 | 1. 長期發展: 楊梅區鄰近科技廊帶,且擁有長庚醫院的支撐,未來保值性與租金需求相對穩定。 2. 学区優勢: 鄰近瑞塘國小與瑞坪國中,若購屋目的包含子女教育,此地段能提供良好的就學環境。 3. 市場價格: 參考單價 42.44 萬/坪,含車位總價 1288 萬,在現行市場中具備一定競爭力。 |
| 威脅 | 1. 房價波動: 整體房市利率與政策調整可能影響未來轉手價格與持有成本。 2. 交通動線: 四維路車流量較大,上下班尖峰時段可能產生拥堵情況。 3. 屋頂維護: 因位於頂樓,需關注社區對公共區域(如屋頂防水、防水層)的維護狀況與管理費使用效率。 |
物件評論
此物件在楊梅區具備相當不錯的居住價值,尤其適合重視通勤便利性與家庭採買需求的購屋者。總價 1288 萬包含高樓層景觀與車位,在 5 年屋齡新成屋中算具競爭力的價格,且室內設備齊全,能節省後續裝潢的時間與成本。
是否值得購買: 是,值得購買(需配合個人需求)。
主要理由:
- 性價比高: 高樓層視野加上一樓面車位,對於自住來說生活品質與便利性極高。
- 生活機能成熟: 公園與市場近在咫尺,加上鄰近學校,非常適合金童玉女或已有小孩的家庭。
- 通勤優勢: 交通網絡發達,可快速通往長庚醫院及主要通勤點,對於在桃長工或台北市工作的人士相當友善。
建議: 若您對於居住人數沒有 3 房以上的需求,且能接受頂樓可能受日照影響較熱的情況,此戶是非常理想的選房。建議購屋前務必實際走訪,確認頂樓防水狀況及電梯使用頻率是否符合預期。
問與答
八德房仲小呂
八德房仲小呂
呂濟安(仲介,收取服務費)
暱稱:呂濟安
專業品質:
服務態度:
房仲電話:0908-080302
訂閱:1 (加入)八德國中興豐 加盟店
經紀業名稱: 匯昌不動產開發有限公司
證號: (106)登字第319165號
八德房仲小呂 呂濟安 0908-080-302
永豐內壢龍安大面寬乙工RC廠房|八德房仲小呂
桃園市 八德區
大湳市場公園旁全新四主臥三車邊間別墅|八德房仲小呂
桃園市 桃園區
桃園龍壽街省桃交流道大地坪面寬廠房|八德房仲小呂
桃園市 蘆竹區
捷運G01站法樂琦雙主臥美裝四房雙車|八德房仲小呂
桃園市 八德區
未入住過!東勇立虹敦皇雙主臥4房電梯別墅|八德房仲小呂
桃園市 八德區
華勛商圈鳴暘富海II電梯別墅4大套房3車位|八德房仲小呂
桃園市 中壢區
花蓮市區國風國中旁低總價好機能美透天|八德房仲小呂
花蓮縣 花蓮市
正18米路近交流道1公頃大面寬一般農|八德房仲小呂
桃園市 八德區
鴻承寫森朝南頂樓景觀大露臺全新三房車|八德房仲小呂
桃園市 八德區
20米路大溪介壽路旁大面寬工業用地|八德房仲小呂
桃園市 大溪區
預約看屋
發問
收藏房屋土地
分享



















我家粉絲團