板橋區雙十路大樓
板橋買屋 /
板橋買房
-
台北新北法拍|0304捷運江子翠站|文聖國小|邊間大廈附車位
預約看屋
更多優質好屋: 84
※ 房屋照片僅反應使用現況,用途以實際合法文件為準。若法定用途與現況不同,可能違法並有相關風險,請購屋或承租前詳加確認,以保障權益。
- 拍賣價:
6054.4 萬
4843.6 萬 (含車位價) - 參考單價:58.19 萬/坪
- 地址:
新北市
板橋區
雙十路二段 110號
地圖
- 案號:114職一389金
- 法院別:金服公司
- 投標日:115/03/04
- 保證金:968.8 萬元
- 拍賣情況:待標
- 拍次:三拍
- 點交情況:點交
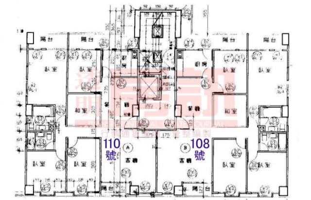
- 社區:雙璽大樓
- 格局: 4房(室) 2廳 2衛 2陽台 1廚房
- 總坪數:83.24 坪 (包含車位面積)
- 主建物面積:45.09 坪
- 附屬建物面積:7.12 坪
- 共同使用:31.03 坪
- 車位坪數:13.62 坪
- 土地面積:8.33 坪
- 樓別/樓高: 7樓 / 12樓
- 屋齡:26 年
- 法定用途:住家用
- 形式/類型:住宅/ 電梯大樓
- 車位:坡道平面式
- 車位描述:停車位編號10
- 電梯:有
詳細資訊
特色說明
圖片介紹














地圖 (點擊顯示地圖)
問與答
賣家資訊
台北新北法拍
張世興 代書(仲介,收取服務費)
暱稱:張世興 代書
專業品質:
服務態度:
房仲電話:0986-666000
讚:0 (加入)104法拍網 直營店
經紀業名稱: 一零四法拍網股份有限公司
證號: ( 107 )登字第 331706 號
台北新北法拍 - 張世興 代書( 地政士 ) - 0986-666-000
是【大學法律學系畢業的法學士】~1996年
也是【通過國家考試及格執業20年的代書】~2004年迄今
更是【現職律師事務所職司法律相關事務29年的法務經理】~1995年迄今; 能精準為您分析判讀法拍個案的觸角,維繫您的個案權益。
104法拍網 - 一零四法拍網股份有限公司
【我們的優勢】
是國內成立最早、規模最大,唯一提供全省19家地方法院、金拍屋、法務部拍賣資訊公司,擁有八成以上市場佔有率,會員涵蓋各大金融行庫、投顧、建築、營造、鑑估、律師、代書、仲介…..,廣受信賴、一致推崇。
【我們與時俱進】
AI智慧日新月異,除了在傳統的法拍資訊深耕,不斷加強資訊的內容,我們以創新的思維不斷發展,致力開發更完整便捷的搜尋系統,於業界首創法拍APP,近來更發展出結合預售、實價買賣行情APP,全面掌握房地產走向與趨勢。
【代標四大服務】
過濾案件.評估標價.包辦交屋.代墊尾款
【代標三不守則】
不得經手保管客戶投標保證金及投標尾款
不得巧立名目,賺取約定服務費以外費用
不得賺取差價
室內電話:02-22700600
台北新北法拍|0312近五峰國中|惠國市場|公寓一樓附地下室
新北市 新店區
台北新北法拍|0415三民高中捷運|仁愛國小|邊間公寓附頂加
新北市 蘆洲區
台北新北法拍|305捷運南京三民站|寶清公園|公寓一樓附增建
台北市 松山區
台北新北法拍|0220仁愛公園|永平國小|邊間3房車大樓
新北市 永和區
台北新北法拍|0114新竹天公壇|天公壇公園|經典採光公寓
新竹市 北 區
324泉之鄉【華廈套房】北投區溫泉路139號5樓-36
台北市 北投區
台北新北法拍|925南崁國中小|台茂購物|景觀大樓兩戶附車位
桃園市 蘆竹區
326 大竹麥當勞【諾貝爾】蘆竹區竹中街56號4層樓
桃園市 蘆竹區
台北新北法拍|418近66快速道路|啟文國小|邊間透天附增建
桃園市 新屋區
0205 陽明山國家公園|柏園山莊|2層樓獨棟透天別墅
台北市 士林區

預約看屋
發問
收藏房屋土地
分享














我家粉絲團