科博館植物園大樓
北屯買屋 /
北屯買房
-
北區透天買屋 科博館植物園 無限視野美二房大平車
預約看屋
更多優質好屋: 137
※ 房屋照片僅反應使用現況,用途以實際合法文件為準。若法定用途與現況不同,可能違法並有相關風險,請購屋或承租前詳加確認,以保障權益。
- 總價:1880 萬
- 參考單價:42.5 萬/坪
- 地址:
台中市
北屯區
西屯路一段
地圖
🏷️ 查看區域實價登錄
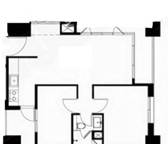
- 格局: 2房(室) 2廳 1衛 2陽台 1廚房
- 總坪數:44.24 坪 (不含車位面積)
- 樓別/樓高: 9樓 / 12樓
- 屋齡:8 年
- 法定用途:住家用
- 形式/類型:住宅/ 電梯大樓
- 車位:坡道平面式
- 電梯:有
詳細資訊
特色說明
圖片介紹





















地圖 (點擊顯示地圖)
我家AI分析|物件診斷一次看
本內容由AI輔助分析整理,僅供參考,實際情況仍建議依此房仲說明與個人需求判斷。
1. SWOT 分析
| 面向 | 內容 |
|---|---|
| 優勢 (Strengths) | 1. 地段優越:鄰近科博館、植物園及勤美、SOGO 商圈,生活機能極佳,步行即可達商圈。 2. 視野與採光:位於 9 樓(共 12 樓),高樓層視野開闊,採光三面通透,居住舒適度高。 3. 低密度社區:整棟僅 28 戶,住戶單純,環境相對寧靜且私密性佳。 4. 停車便利:擁有大面積坡道平面車位,解決市區停車難題。 5. 房舍新度:屋齡僅 8 年,建築狀況較新,維修成本相對較低。 6. 通風設計:衛浴開窗設計,有效改善潮濕問題。 |
| 劣勢 (Weaknesses) | 1. 房型配置:總坪數達 44 坪卻僅配置 1 間衛浴,對於家庭居住便利性稍顯不足。 2. 資訊誤差:標題標示「透天」但資料顯示為「電梯大樓」,且有「北區」與「北屯區」之稱謂混淆,易造成誤解。 3. 房間數:僅有 2 房,對於人口較多或需要獨立書房的家庭來說,機能性稍弱。 4. 單價考量:參考單價 42.5 萬/坪,在同區域新成屋中屬高標,需評估是否符合預算。 |
| 機會 (Opportunities) | 1. 稀缺性:標示為「限量美宅」且大平面車位在精華區較難得,具持有價值。 2. 資產增值:科博館周邊土地稀缺,長期而言具保值與升值潛力。 3. 生活質感:低戶數與高樓層視野,適合追求生活品質與寧靜的買家。 |
| 威脅 (Threats) | 1. 房源資訊可信度:標題與詳細資料存在重大矛盾(透天/大樓、北區/北屯區),需確認是否為詐騙或資料未更新。 2. ** resale 難度**:一房一衛的格局在二手市場可能不如二房二衛具競爭力。 3. 市場波動:房地產市場價格波動可能影響投資回報。 |
2. 物件評論
綜合考量此物件,建議「可以購買,但需先進行詳細確認」。
主要理由如下:
首先,此物件的地理位置與居住環境確實出色,鄰近科博館與主要商圈,加上高樓層視野與低密度社區優勢,非常適合追求生活品質的家庭。然而,作為買房者,必須高度警覺標題與內文資訊的重大矛盾(標題宣稱「透天」卻為「電梯大樓」,地點標示亦不一致)。這種資訊落差可能代表中介的專業度不足或房源標註有誤。
若您在簽約前能確認房源資料的正確性,並確認車位產權及一衛的配置是否符合您長期的生活需求(例如是否有分時洗澡習慣,或是未來轉手考量),那麼這將是一處兼具便利與視野的好房子。反之,若資訊無法釐清,建議謹慎評估,以免後續產生不必要的糾紛。
問與答
北區透天買屋
北區透天買屋
姚忠漢(仲介,收取服務費)
暱稱:姚忠漢
專業品質:
服務態度:
房仲電話:0929-527333
訂閱:1 (加入)台中科博民權 加盟店
經紀業名稱: 弘宬不動產經紀業有限公司
證號: (100)登字第166317號
北區透天買屋 姚忠漢 0929-527-333
北區透天買屋 佳茂中山會館兩房+車位
台中市 潭子區
北區透天買屋 伸港輕屋齡車庫別墅B
彰化縣 伸港鄉
北區透天買屋 近北區精武車站新婚首購三房+車位高樓層景觀戶
台中市 北 區
北區透天買屋 臨中國醫北屯市場前30米進化北路全新裝潢美透店
台中市 北 區
北區透天買屋 昌平商圈低總價全新裝潢3房車位
台中市 北屯區
北區透天買屋 森活臻鑽/朝馬路近安和路/電梯透天金店面
台中市 西屯區
北區透天買屋 天津美2房
台中市 北 區
北區透天買屋 中美商圈稀有釋出美廈
台中市 西 區
北區透天買屋 一點利精裝三房低自備成家宅
台中市 北屯區
北區透天買屋 逢甲學府|高投報九套房|開價6.5%
台中市 西屯區
預約看屋
發問
收藏房屋土地
分享





















我家粉絲團