捷運 台北車站 店面
大同買屋 /
大同買房
-
台北雙星❤️長安西人潮金店面
※以上照片若為街景,為物件附近環境介紹,非刊登物本身。
預約看屋
更多優質好屋: 58
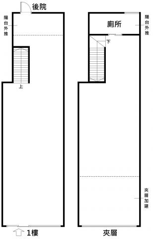
※ 房屋照片僅反應使用現況,用途以實際合法文件為準。若法定用途與現況不同,可能違法並有相關風險,請購屋或承租前詳加確認,以保障權益。
詳細資訊
特色說明
圖片介紹









地圖 (點擊顯示地圖)
問與答
賣家資訊
蘆洲電梯大樓
劉子彰(仲介,收取服務費)
暱稱:劉子彰
專業品質:
服務態度:
房仲電話:0901-265905
讚:0 (加入)住商不動産 蘆洲長榮 加盟店
經紀業名稱: 萊爾富不動產經紀有限公司
證號: (113)登字第475294號
蘆洲電梯大樓 劉子彰 0901-265905

預約看屋
發問
收藏房屋土地
分享










我家粉絲團