便宜透天
苓雅買屋 /
苓雅買房
-
忠孝二路國民市場旁|市中心透天厝只要公寓價
預約看屋
更多優質好屋: 151
※ 房屋照片僅反應使用現況,用途以實際合法文件為準。若法定用途與現況不同,可能違法並有相關風險,請購屋或承租前詳加確認,以保障權益。
- 總價:798 萬
- 參考單價:36.69 萬/坪
- 地址:
高雄市
苓雅區
忠孝二路
地圖
🏷️ 查看區域實價登錄
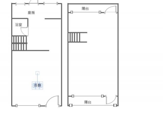
- 格局: 2房(室) 2廳 1衛 1陽台 1廚房
- 總坪數:21.75 坪 (不含車位面積)
- 主建物面積:21.75 坪
- 土地面積:13.91 坪
- 樓別/樓高: 1~2樓 / 2樓
- 屋齡:59 年
- 法定用途:住家用
- 形式/類型:住宅/ 透天厝
房市行情分析
本圖表依實價登錄資料整理,提供市場行情參考;實際價格仍會因屋況、條件不同而有所差異,建議洽詢承辦營業員進一步了解。
詳細資訊
特色說明
圖片介紹
















地圖 (點擊顯示地圖)
專家亮點
本內容由 AI 輔助分析整理,僅供參考,實際情況仍建議依此房仲說明與個人需求判斷。
此物件適合尋求「市中心低總價入場」的買家。整體而言,這是一筆值得考慮的投資標的,特別適用於首購族、小家庭或希望擁有獨立空間但預算有限的族群。
主要理由如下:
- 性價比高:在苓雅核心區以公寓價格買到透天,且無路地持分糾紛,地理位置與生活機能極佳,對於依賴市區便利性者來說非常適合。
- 門檻低:798 萬的總價降低了購屋壓力,讓買家有機會進入市中心生活圈。
需要留意的是:59 年屋齡是最大的變數,建議您在簽約前務必確認銀行核貸條件及屋況檢查報告,並預留充足的裝修預算以應對老舊設施更新的需求。若您擁有穩定現金流且能接受稍高的維護成本,這是一個建立自住或投資資產的優質起點。
問與答
鳳山前鎮買房
鳳山前鎮買房
張簡聖修(仲介,收取服務費)
暱稱:鳳山阿修
專業品質:
服務態度:
房仲電話:0927-237015
訂閱:1 (加入)永豐瑞隆 加盟店
經紀業名稱: 旭昇房屋有限公司
證號: (112)登字第450956號
鳳山前鎮買房 張簡聖修 0927-237-015
衛武營捷運車庫透天 絕佳地段・自住置產首選|鳳山阿修
高雄市 鳳山區
科工館翻新3房|一卡皮箱入住 × 雙陽台生活感滿滿
高雄市 三民區
【鳳山阿修】內埔鄉~臨路12米 舒適休閒農地
屏東縣 內埔鄉
瑞隆五甲核心商圈|高樓景觀邊間三房 鳳山阿修
高雄市 前鎮區
文山特區精美大坪數4房平車靓屋
高雄市 鳳山區
鳳山阿修 鳳中~溫馨美3房平車 前鎮鳳山買房
高雄市 鳳山區
林園 大面寬雙車透天
高雄市 林園區
楠梓站前 文青質感四房 鳳山阿修
高雄市 楠梓區
巨蛋商圈核心捷運宅|三房+車位 鳳山阿修
高雄市 左營區
首購族快看!小港區稀有翻新3房公寓|近學校市場生活超便利
高雄市 小港區
預約看屋
發問
收藏房屋土地
分享
















我家粉絲團