苗栗買屋 /
苗栗買房
-
苗栗馥靚全新完工前庭孝親美墅B5 苗栗優質仲介
預約看屋
更多優質好屋: 86
※ 房屋照片僅反應使用現況,用途以實際合法文件為準。若法定用途與現況不同,可能違法並有相關風險,請購屋或承租前詳加確認,以保障權益。
- 總價:1378 萬 (含車位價)
- 參考單價:26.79 萬/坪
- 地址:
苗栗縣
苗栗市
吉祥路
地圖
🏷️ 查看區域實價登錄
- 社區:【馥靚】
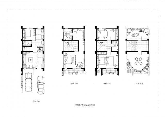
- 格局: 4房(室) 3廳 3衛
- 總坪數:51.43 坪 (包含車位面積)
- 主建物面積:51.43 坪
- 土地面積:35.18 坪
- 樓別/樓高: 整棟 / 4樓
- 法定用途:住家用
- 形式/類型:住宅/ 透天厝
- 車位:庭院式
房市行情分析
詳細資訊
特色說明
圖片介紹





地圖 (點擊顯示地圖)
我家AI分析|物件診斷一次看
本內容由AI輔助分析整理,僅供參考,實際情況仍建議依此房仲說明與個人需求判斷。
1. SWOT 分析
| 面向 | 內容 |
|---|---|
| 優勢 (Strengths) | 地段交通優異:鄰近高鐵苗栗站,結合台 72 快速道路與中山高,連結西部生活圈便利。 學區資源完善:涵蓋大同國小與明仁國中,屬苗栗市資優學區,利於子女就學。 產品新穎實用:全新完工透天,4 層樓配置 4 房 3 衛,空間規劃寬敞,適合多代同堂。 環境品質佳:鄰近貓貍山公園與隧道,綠意充足,兼具休閒散步機能。 |
| 劣勢 (Weaknesses) | 價格門檻較高:單價約 26.79 萬/坪,總價 1378 萬,對於一般購屋者預算要求較高。 維護責任自主:透天厝需自行負責建築外觀、屋頂等維護,相比社區大樓較費神。 停車方式:車位為庭院式,隱私與安全性不如室內車庫。 通勤時間成本:雖交通樞紐鄰近,若需在台北或新竹工作,每日通勤時間仍長。 |
| 機會 (Opportunities) | 區域發展潛力:鄰近銅鑼科學園區及大型醫療專區,建設重金齊聚,具增值空間。 置產保值:高鐵特區屬性加上前瞻建設,長期持有具保值與漲價潛力。 多元需求:「孝親美墅」設計概念,符合長者居住需求,亦適合作為家族置產。 |
| 威脅 (Threats) | 房市流動性:苗栗非核心都會區,房屋轉手流動性可能不如台北市區。 區域波動風險:若科學園區或醫療區發展不如預期,可能影響短期房價表現。 人口成長限制:非人口净流入核心區,長期居住需求支撐力需持續觀察。 |
2. 物件評論
此物件對於尋求「長期自住」或「優質置產」的買家來說,具有不錯的配置條件。其最大亮點在於兼具「新成屋」的居住品質與「高鐵特區」的交通優勢,加上明仁國中的學區加持,非常適合重視子女教育或計劃多代同堂的家庭。
總價 1378 萬在苗栗市區屬於高標價位,但考量其透天格局、全新狀態及周邊建設發展,價格尚屬合理範圍。若您能接受透天維護的責任,且主要生活圈位於苗栗或接受非每日長途通勤台北,此物件值得列入優先評估。建議買家親自實地感受周邊通勤動線與學校品質,以確認是否符合長期居住與投資目標。
問與答
苗栗優質仲介
苗栗優質仲介
余翊僑(仲介,收取服務費)
暱稱:有巢僑僑
專業品質:
服務態度:
房仲電話:0988-178370
訂閱:1 (加入)公北合映 加盟店
經紀業名稱: 合映地產物業有限公司
證號: (111)登字第412242號
苗栗優質仲介 余翊僑 0988-178-370
專營 頭份竹南 委託買賣 租賃服務
?成交就是服務的開始?
預約看屋
發問
收藏房屋土地
分享





我家粉絲團