永和優質社區大樓
永和買屋 /
永和買房
-
漢皇盛世後棟坡平車位
預約看屋
更多優質好屋: 22
※ 房屋照片僅反應使用現況,用途以實際合法文件為準。若法定用途與現況不同,可能違法並有相關風險,請購屋或承租前詳加確認,以保障權益。
- 總價:2288 萬 (含車位價)
- 參考單價:84.47 萬/坪
- 地址:
新北市
永和區
永和路一段
地圖
🏷️ 查看區域實價登錄
- 社區:漢皇盛世
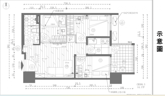
- 格局: 開放空間
- 總坪數:29.85 坪 (包含車位面積)
- 主建物面積:13.73 坪
- 附屬建物面積:1.66 坪
- 共同使用:7.79 坪
- 車位坪數:6.67 坪
- 土地面積:2.33 坪
- 樓別/樓高: 7樓 / 23樓
- 屋齡:10 個月
- 法定用途:一般事務所
- 形式/類型:其它/ 電梯大樓
- 車位:坡道平面式
- 車位描述:B2-15
- 電梯:有
詳細資訊
管理費:2239 元/月
鄰近學校:永和國小
鄰近公園:四號公園
生活機能:永安市場
附近交通:捷運永安市場站
面臨路寬:8米
物件資訊內容以登記簿謄本或預售屋買賣契約為準,若有疑問請洽承辦人員。
特色說明
圖片介紹











地圖 (點擊顯示地圖)
我家AI分析|物件診斷一次看
本內容由AI輔助分析整理,僅供參考,實際情況仍建議依此房仲說明與個人需求判斷。
1. SWOT 分析
| 面向 | 內容 |
|---|---|
| 優勢 | 位於永和核心地段,鄰近捷運永安市場站,交通動線極佳;屋齡僅 10 個月,屬極新物件,無需擔心老舊維護問題;總坪數包含一處坡道平面車位,在永和區擁有車位具相當價值;周邊生活機能完善,鄰近永安市場與四號公園,適合日常採買與休閒。 |
| 劣勢 | 房屋用途登記為「一般事務所」,非住宅性質,無法設定戶籍,亦無法享受住宅貸款優惠利率;電費與水費費率採商用標準,長期持有心態下生活成本較高;位於商業區,相較住宅區可能有較多人員進出或噪音干擾。 |
| 機會 | 適合創業或經營小型團隊設立辦公室,鄰近商圈帶來潛在客戶人流;若作為投資出租用途,因位於捷運站周邊,辦公或小型工作室租屋需求穩定;永和區發展成熟,長期保值性與轉手機會存在。 |
| 威脅 | 商用不動產的流通性通常不如住宅,未來若需轉手可能面臨買方受限較多(如貸款成數、稅費);若遇產業變動或空屋率上升,出租回報率可能受影響;需留意政府對於商業區使用的相關法規變動。 |
2. 物件評論
是否值得購買:取決於您的購屋目的。
此物件位於新北市永和區核心地帶,且屋況極新、附帶車位,對於需要設立公司行號或作為投資收租的買家而言,是一項具備潛在價值的選擇。然而,由於其法律用途為「一般事務所」,並非住宅,因此無法作為自住房屋使用,亦無從設定戶籍。
主要理由:
- 地段優勢明顯:近捷運永安市場站與商圈,便利性極高,具備穩定的租金承租潛力。
- 屋況新穎:僅 10 個月屋齡,意味著初期無需投入大量裝潢或維修資金。
- 產品性質限制:若您是以居住、子女學區或長期自住為目的,此物件並不適合;若您是以創業、辦公或投資增值為目的,則值得納入評估範圍。建議您在決定前,先確認自身的資金規劃與未來使用計畫是否與此商用物業特性相符。
問與答
中永和房仲賴神
中永和房仲賴神
賴柏宇(仲介,收取服務費)
暱稱:賴柏宇
專業品質:
服務態度:
房仲電話:0916-971082
訂閱:0 (加入)台灣房屋 永安捷運特許 加盟店
經紀業名稱: 泰旺群鴻國際地產有限公司
證號: (110)登字第212619號
中永和房仲賴神 賴柏宇 0916971082
您好,我是您誠摯的房產顧問,非常高興能有這個機會向您介紹自己。我是一名持續獲獎的經紀人,連續兩年榮獲千萬經紀人員,並且在過去78個月內實現穩定成交,這一切都是因為我對自己的專業與責任感。我的特質包括誠實、細心以及對客戶的深刻同理心,這使我能夠深入了解每位客戶的需求,並提供量身打造的解決方案。
我在房地產領域的專業知識以及不懈的毅力幫助我克服挑戰,實現目標。我的幽默感則能讓過程中增添輕鬆氛圍,讓每位客戶都感到舒適。在競爭激烈的市場中,我始終保持沉穩與謹慎,為客戶贏得最佳的交易結果。
如果您在房產方面有任何需求或問題,無論是購屋、賣屋還是投資,請隨時與我聯絡。期待能為您的房產旅程提供專業的協助,讓我們攜手創造未來的美好家園!
預約看屋
發問
收藏房屋土地
分享











我家粉絲團