寶輝北屯機廠捷運
北屯買屋 /
北屯買房
-
南屯捷運買房 寶輝北屯指標宅|朝南三房
預約看屋
更多優質好屋: 21
※ 房屋照片僅反應使用現況,用途以實際合法文件為準。若法定用途與現況不同,可能違法並有相關風險,請購屋或承租前詳加確認,以保障權益。
- 總價:2688 萬 (含車位價)
- 參考單價:59.21 萬/坪
- 地址:
台中市
北屯區
敦富路
地圖
🏷️ 查看區域實價登錄
- 社區:寶輝THE SPRING
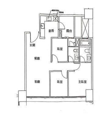
- 格局: 3房(室) 2廳 2衛 1陽台 1廚房
- 總坪數:45.4 坪 (包含車位面積)
- 主建物面積:23 坪
- 附屬建物面積:1.7 坪
- 共同使用:20.7 坪
- 土地面積:6.709 坪
- 樓別/樓高: 15樓 / 15樓
- 屋齡:8 個月
- 法定用途:住家用
- 形式/類型:住宅/ 電梯大樓
- 車位:平面式車位
- 車位描述:B2
- 電梯:有
詳細資訊
朝向方位:坐北朝南
鄰近學校:新興國小、華盛頓雙語國小、北新國中、常春藤國中
鄰近公園:水曲濕地公園、潭子運動公園、綠空廊道
生活機能:好市多北屯店
附近交通:北屯捷運總站、頭家厝火車站
物件資訊內容以登記簿謄本或預售屋買賣契約為準,若有疑問請洽承辦人員。
特色說明
圖片介紹


















地圖 (點擊顯示地圖)
我家AI分析|物件診斷一次看
本內容由AI輔助分析整理,僅供參考,實際情況仍建議依此房仲說明與個人需求判斷。
- SWOT 分析
| 面向 | 內容 |
|---|---|
| 優勢 | 1. 屋齡新且品質佳:屋齡僅 7 個月,屬於新成屋,建材與工法較現代化,減少了未來維修隱憂。開發商寶輝建設為知名品牌,社區公設完善(含泳池、健身房等)。 2. 格局與採光優勢:位於 15 樓頂樓,朝南設計帶來優異採光與通風,室內挑高約 3.2 米空間感較好,且擁有中庭綠景視野。 3. 交通便利性極高:鄰近北屯捷運站、頭家厝火車站及國道 1/3/4 快速道路,通勤便捷;鄰近 74 號快速道路,車流動線優異。 4. 生活機能成熟:鄰近好市多北屯店、各大商圈及公園(如水曲濕地公園),滿足日常購物與休閒需求。學區包含新興國小與華盛頓雙語國小等,教育資源穩定。 5. 坪效價值高:總坪數 45.4 坪已包含車位,且為 B2 平面車位,對於家庭購買而言,停車空間整合度高。 |
| 劣勢 | 1. 頂樓特性風險:位於 15 樓(頂樓),雖然視野好,但長期居住可能面臨夏季較熱或未來屋頂防水維護的潛在考量,需確認防水層狀態。 2. 單價門檻較高:參考單價約 59.21 萬/坪,屬於該區域新成屋的高檔價位,對於預算有限的買家來說是一筆不小的開銷。 3. 車位型態:雖為平面式車位且包含在總坪數內,但位於 B2,相較於一樓或專用電梯停車空間,進出可能略顯不便。 |
| 機會 | 1. 價格調整空間:物件標題提及「大降 200 萬」,顯示房東或仲介有明顯的促銷意願,買方在議價上可能尚有談話空間。 2. 區域增值潛力:北屯捷運特區持續開發中,隨著交通與基礎建設完善,未來房價與租金收益具備上漲趨勢。 3. 市場需求穩定:新成屋三房格局符合主流家庭需求,加上優質學區與捷運優勢,長期而言自住或投資出租的接受度都高。 |
| 威脅 | 1. 房市行情波動:當前房地產市場整體趨緩,若後續房價回調,持有一段時間後出售可能面臨價差縮水的風險。 2. 頂樓轉手難度:部分買家對頂樓有顧慮,未來轉手時競爭對手可能較多於中低樓層的類似物件。 3. 公設管理成本:社區公設豐富(泳池、健身房等)通常意味著較高的每月管理費,會增加長期持有成本。 |
- 物件評論
此物件非常適合追求生活品質、重視通勤效率且預算充裕的家庭買家。主要理由在於其「新成屋的居住質感」與「無敵的交通地緣優勢」。寶輝建設的品牌保證了社區環境與建築安全,15 樓的高楼层朝南格局能提供極佳的通風與視野,對於喜愛自然採光與隱私的購屋者來說相當吸引人。
此外,價格標註中提到的大幅降價(約 200 萬),顯示目前具有不錯的優惠力道,且包含車位的總坪數計算方式讓單價看起來更具競爭力。然而,建議買家在簽約前務必確認頂樓的防水狀況與長期維護責任歸屬,並評估自身對每月管理費用的負荷能力。若您偏好新宅、重視孩子就學環境及日常通勤便利性,並且預算能對應此單價區間,這將是一個值得優先考慮的標的。
問與答
南屯捷運買房
南屯捷運買房
蕭又升(仲介,收取服務費)
暱稱:蕭又升
專業品質:
服務態度:
房仲電話:0935-918548
訂閱:1 (加入)台中大墩五權 加盟店
經紀業名稱: 富墩不動產仲介經紀股份有限公司
證號: (114)登字第500121號
南屯捷運買房 蕭又升 0935918548
南屯捷運買房|單元三|正南屯路全新電梯|臨路透天店面
台中市 南屯區
南屯捷運買房 北區指標性商辦|捷運站旁走路8分鐘
台中市 北 區
南屯捷運買房 楓樹里|寶藏級電梯別墅|前庭後院
台中市 南屯區
南屯捷運買房 |豐樂公園|輕屋齡最低價兩房平車
台中市 南屯區
南屯捷運買房 收租金雞母|霧峰朝陽|亞大|年收租300萬|42間套房|
台中市 霧峰區
南屯捷運買房 南七期|IKEA旁朝南質感大套房
台中市 南屯區
南屯捷運買房 稀有南屯三房捷運平車
台中市 南屯區
南屯捷運買房 南區降價百萬|千萬裝潢|輕屋齡電梯別墅
台中市 南 區
南屯捷運買房 大境豐藝|單元二|室內30坪大空間
台中市 南屯區
南屯捷運買房|南七期|低奢高質感社區
台中市 南屯區
預約看屋
發問
收藏房屋土地
分享


















我家粉絲團