全新整理
仁武買屋 /
仁武買房
-
仁武中華商圈全新整理 臨路透天店住
預約看屋
更多優質好屋: 172
※ 房屋照片僅反應使用現況,用途以實際合法文件為準。若法定用途與現況不同,可能違法並有相關風險,請購屋或承租前詳加確認,以保障權益。
- 總價:1780 萬
- 參考單價:36.83 萬/坪
- 地址:
高雄市
仁武區
文學路一段
地圖
🏷️ 查看區域實價登錄
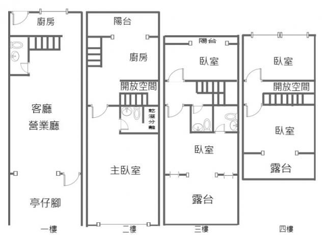
- 格局: 6房(室) 2廳 4衛 4陽台 2廚房
- 總坪數:48.33 坪 (不含車位面積)
- 主建物面積:42.53 坪
- 附屬建物面積:5.8 坪
- 土地面積:20.058 坪
- 樓別/樓高: 整棟 / 4樓
- 屋齡:26 年
- 法定用途:住家用
- 形式/類型:住辦/ 透天厝
房市行情分析
詳細資訊
特色說明
圖片介紹

























地圖 (點擊顯示地圖)
我家AI分析|物件診斷一次看
本內容由AI輔助分析整理,僅供參考,實際情況仍建議依此房仲說明與個人需求判斷。
1. SWOT 分析
| 面向 | 內容 |
|---|---|
| 優勢 (Strengths) | **地段與交通:**位於仁武中華商圈,鄰近國十仁武交流道(約三分鐘車程),通勤高雄市區或科學園區極其便利。 **居住品質:**屋內已進行全新整理,採光明亮,無需額外裝修即可馬上入住,節省時間與裝潢成本。 **空間規劃:**4 層樓透天共有 6 房 2 廳 4 衛,格局寬敞,適合大家庭同住或作為分租用途。 |
| 劣勢 (Weaknesses) | **屋齡因素:**屋齡已達 26 年,雖經翻新但結構與管路系統仍屬老舊,可能影響未來銀行貸款成數。 **使用分區:**登記為「住辦」性質,對於偏好純住宅的買家吸引力較低,且可能涉及商標稅或營業稅問題。 **車位配套:**總坪數未包含車位,購屋者需另行考量停車需求與成本。 |
| 機會 (Opportunities) | **投資收益潛力:**鄰近仁武高中及行政中心,若作為套房出租或共享辦公空間,租金回報率可能可觀。 **區域發展:**仁武區持續開發,配合國十交通便利性,長期居住價值具穩定性。 **成本優勢:**总价 1780 萬購得整棟 48 坪透天,單價相對同類型新成屋較具競爭力。 |
| 威脅 (Threats) | **市場流動性:**老舊透天加上住辦性質,在未來轉手時可能面臨買家範圍較窄、流通性不如純住宅的問題。 **金融評估風險:**銀行對 26 年以上老宅的估價通常較保守,實際可貸金額可能低於預期,需自行準備較高頭期款。 **環境干擾:**臨接 14 米寬道路雖出入方便,但仍需注意交通噪音與揚塵對居家生活品質的影響。 |
2. 物件評論
此物件對於「自住兼投資」或「大家庭剛性需求」的買房者而言,值得列入考慮範圍。主要的購買理由是地理位置優越且房屋內部全新,能大幅降低購屋後的磨合成本與時間投入。然而,您必須對其屋齡(26 年)及住辦性質有充分心理準備,這可能會影響銀行貸款成數以及未來轉手的買家客群。若您資金充足且看重交通便利度與空間機能,這是一個高性價比的選擇;但若您的首要目標是資產的短期流動性或極低風險投資,則建議慎重評估其金融貸款條件及社區純住宅屬性。
問與答
三民買屋
三民買屋
郭春宏經理(仲介,收取服務費)
暱稱:郭春宏經理
專業品質:
服務態度:
房仲電話:0982-515189
訂閱:7 (加入)高雄裕誠河堤 加盟店
經紀業名稱: 永益房屋仲介行
證號: (102)登字第234197號
在地深耕 社區專家 三民買房屋找春仔
用心,努力,給您最適合你的房子。我是您不動產方面最好的朋友,有相關方面疑問歡迎隨時來電或加Line
近左營高鐵*翻新衛浴開窗*超美大三房*車位
高雄市 左營區
仁雄商圈@正10米街上~大地坪@電梯#雙車別墅
高雄市 仁武區
楠梓區公所火車站#增值面寬住三建地
高雄市 楠梓區
橋頭新市鎮*青埔捷運站 全新優美2房+平車
高雄市 橋頭區
店面騎樓8米路透天★夢時代生活圈★近捷運、學區宅
高雄市 前鎮區
仁武@八卦公園@優質雙車庫透天
高雄市 仁武區
五甲商圈翻新活巷溫馨透天
高雄市 鳳山區
近榮總商圈@仁武NHK@大地坪~雙併車墅
高雄市 仁武區
近鳳山過埤大寮農地/88快速道路旁/格局方正/都市計畫區農地
高雄市 大寮區
大寮區 @ 鋼骨結構 @ 全新未住~電梯車墅
高雄市 大寮區
預約看屋
發問
收藏房屋土地
分享

























我家粉絲團