安定區華廈3房
安定買屋 /
安定買房
-
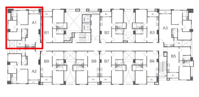
『邰欣地堡91』3房次頂樓邊間 柱邊平車 東橋建案
預約看屋
更多優質好屋: 85
※ 房屋照片僅反應使用現況,用途以實際合法文件為準。若法定用途與現況不同,可能違法並有相關風險,請購屋或承租前詳加確認,以保障權益。
詳細資訊
管理費:3094 元/月
鄰近學校:南安國小/安定國中
鄰近公園:安定區公所運動休閒公園
生活機能:港口菜市場/7-11許中營門市
物件資訊內容以登記簿謄本或預售屋買賣契約為準,若有疑問請洽承辦人員。
特色說明
圖片介紹























地圖 (點擊顯示地圖)
問與答
賣家資訊
東橋建案
幸福空間不動產有限公司(仲介,收取服務費)
暱稱:幸福空間不動產有限公司
專業品質:
服務態度:
房仲電話:0968-588221
讚:2 (加入)台慶台南永續幸福 加盟店
經紀業名稱: 幸福空間不動產有限公司
證號: (108)登字第356105號
專業租屋管理/專業不動產
不動產買賣/租賃
土地買賣/租賃
預售屋買賣
安南區/九份子建案
永康區/東橋建案
室內電話:06-3588926
永康『深耕8』稀有四房+雙平面車位 東橋建案
台南市 永康區
南科富境秒殺款!雙面採光2房雙衛皆開窗,稀有機平車位
台南市 新市區
陽光加州9米面寬大地坪5房雙車墅 東橋建案
台南市 善化區
南科附近~南科富境超甜價美3房美格局+1樓機械車位
台南市 新市區
東橋仁發大都匯明亮三房平車 東橋建案
台南市 永康區
佳里興臨路6米優質農地 東橋建案
台南市 佳里區
湖映白邊間高樓層4房+雙平面車位 東橋建案
台南市 安南區
高鐵 晶悅首發2房2衛+平面車位 東橋建案
台南市 歸仁區
東橋聯上康橋2+1房+車位 東橋建案
台南市 永康區
大橋一街輕奢豪華內裝四車電梯豪邸 東橋建案
台南市 永康區

預約看屋
發問
收藏房屋土地
分享

























我家粉絲團