鳥松買屋 /
鳥松買房
-
鳥松仁美國小旁精裝5房美透天
預約看屋
更多優質好屋: 151
※ 房屋照片僅反應使用現況,用途以實際合法文件為準。若法定用途與現況不同,可能違法並有相關風險,請購屋或承租前詳加確認,以保障權益。
- 總價:890 萬
- 參考單價:37.32 萬/坪
- 地址:
高雄市
鳥松區
奉化街
地圖
🏷️ 查看區域實價登錄
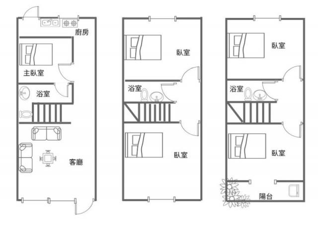
- 格局: 5房(室) 1廳 3衛 1陽台 1廚房
- 總坪數:23.85 坪 (不含車位面積)
- 主建物面積:23.85 坪
- 土地面積:13.18 坪
- 樓別/樓高: 1~2樓 / 2樓
- 屋齡:45 年
- 法定用途:住家用
- 形式/類型:住宅/ 透天厝
房市行情分析
本圖表依實價登錄資料整理,提供市場行情參考;實際價格仍會因屋況、條件不同而有所差異,建議洽詢承辦營業員進一步了解。
詳細資訊
特色說明
圖片介紹

















地圖 (點擊顯示地圖)
專家亮點
本內容由 AI 輔助分析整理,僅供參考,實際情況仍建議依此房仲說明與個人需求判斷。
購買建議:適合特定需求者,但需謹慎評估貸款與 legality。
此物件對於尋求「總價門檻低」且「重視學區與大空間」的家庭來說,是一個具備實惠性的選項。特別是對於有長輩同住的兩代或三代家庭,一樓孝親房與五房格局的設計能解決實際居住痛點,加上精裝翻新省去了裝修的精力與資金。
然而,作為買房者必須清醒認知的是,屋齡 45 年屬於高齡住宅,這在銀行貸款審核上可能是最大關鍵,建議在簽約前務必確認銀行核貸條件。此外,關於「增建至三樓」的合法性問題,強烈建議委托專業人員確認權狀登記與增建狀況,以避免日後面臨拆除或產權糾紛的風險。若能解決這兩點疑慮,此物件是一筆值得考量的置產。
問與答
鳳山前鎮買房
鳳山前鎮買房
張簡聖修(仲介,收取服務費)
暱稱:鳳山阿修
專業品質:
服務態度:
房仲電話:0927-237015
訂閱:1 (加入)永豐瑞隆 加盟店
經紀業名稱: 旭昇房屋有限公司
證號: (112)登字第450956號
鳳山前鎮買房 張簡聖修 0927-237-015
預約看屋
發問
收藏房屋土地
分享

















我家粉絲團