中壢房仲幸福家買賣屋
中壢買屋 /
中壢買房
-
近萬能科大美透店
詳細資訊
管理方式:無
朝向方位:坐西南朝東北
鄰近學校:內定小學 內壢中學
鄰近公園:水尾公園
生活機能:大江
附近交通:近交流道
面臨路寬:12米
物件資訊內容以登記簿謄本或預售屋買賣契約為準,若有疑問請洽承辦人員。
朝向方位:坐西南朝東北
鄰近學校:內定小學 內壢中學
鄰近公園:水尾公園
生活機能:大江
附近交通:近交流道
面臨路寬:12米
物件資訊內容以登記簿謄本或預售屋買賣契約為準,若有疑問請洽承辦人員。
特色說明
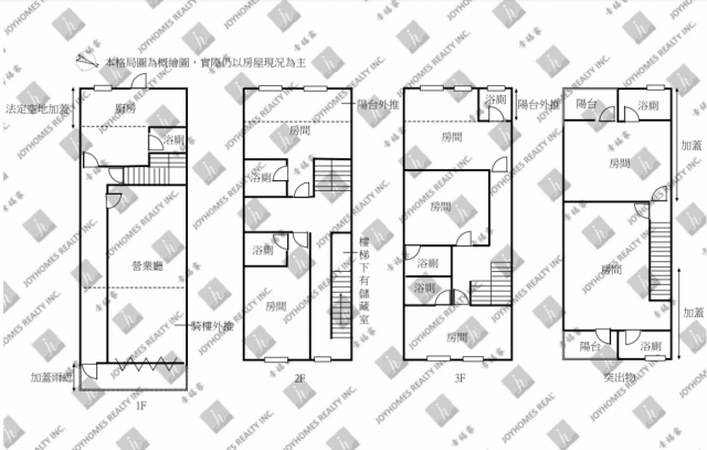
圖片介紹









地圖 (點擊顯示地圖)
問與答
賣家資訊
A21捷運買屋
廖鎮邦&廖婕羽(仲介,收取服務費)
暱稱:Oscar&Judy
專業品質:
服務態度:
房仲電話:0937-101802
讚:2 (加入)中壢店 直營店
經紀業名稱: 幸福家地產股份有限公司
證號: (91)登字第001331號
A21捷運買屋 廖鎮邦&廖婕羽 0937101802/0978181323

預約看屋
發問
收藏房屋土地
分享









預約看屋

我家粉絲團