龜山區東舊路街新建廠
龜山買屋 /
龜山買房
-
龜山區新建電梯廠房 新莊房仲羿哥
預約看屋
更多優質好屋: 35
※ 房屋照片僅反應使用現況,用途以實際合法文件為準。若法定用途與現況不同,可能違法並有相關風險,請購屋或承租前詳加確認,以保障權益。
- 總價:5210 萬
- 參考單價:34.99 萬/坪
- 地址:
桃園市
龜山區
東舊路街
地圖
🏷️ 查看區域實價登錄
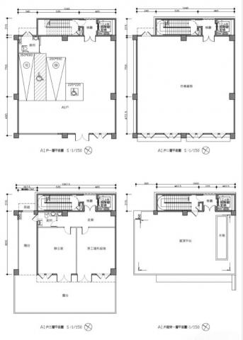
- 格局: 開放空間
- 總坪數:148.91 坪 (不含車位面積)
- 土地面積:80 坪
- 樓別/樓高: 整棟 / 4樓
- 屋齡:1 年
- 法定用途:工業用
- 形式/類型:廠房/ 廠辦
- 車位:平面式車位
- 車位描述:自有
- 電梯:有
房市行情分析
詳細資訊
特色說明
圖片介紹












地圖 (點擊顯示地圖)
我家AI分析|物件診斷一次看
本內容由AI輔助分析整理,僅供參考,實際情況仍建議依此房仲說明與個人需求判斷。
1. SWOT 分析
| 面向 | 內容 |
|---|---|
| 優勢 (Strengths) | 屋況新穎:屋齡僅 1 年,為全新透天廠房,建築設施較少折舊問題。 空間效能佳:面寬達 12.45 米,樓高 4.15 米,挑空設計有利工業或辦公室規劃。 交通便利:位於長庚醫院周邊,大貨車可進出,且設有電梯直達 4 樓,物流與人員通行方便。 價格參考性強:單價約 34.99 萬/坪,對於新成工業用建築而言,具有一定的市場參考價值。 |
| 劣勢 (Weaknesses) | 高昂總價:總價達 5,210 萬元,對購屋者的資金周轉能力要求極高。 使用限制嚴峻:土地用途為工業用,受限於工廠登記及稅務規定,無法隨意改作住宅或其他非工業用途。 停車位不足:整棟坪數達 148.91 坪,但僅含 1 個平面車位,若員工或訪客眾多可能產生停車壓力。 總坪數未含車位:明確標示車位未計入主要坪數,需注意公設比與實際使用範圍的計算。 |
| 機會 (Opportunities) | 區域發展潛力:鄰近長庚醫院及護理之家,人口聚集效應可能帶動周邊商業活動。 供需失衡紅利:建案僅剩兩戶,稀缺性可能使未來轉手或出租時的議價空間縮小但流通性提升。 事業擴張理想:對於有擴充需求之製造業或物流業,此類具備大貨車動線的新樓層是極佳選擇。 |
| 威脅 (Threats) | 流動性風險:工業用房產在市場波動時的變現速度通常慢於住宅,退出成本可能較高。 法規與稅務變化:工業用地變更用途之門檻高,且相關稅費(如房屋稅、地價稅)計算方式與住宅不同。 景氣循環影響:總價高昂,受整體經濟景氣或產業鏈供應鏈波動影響較大,可能導致租金回報率不穩定。 |
2. 物件評論
是否值得購買:視需求而定,適合有明確經營規劃者。
此物件對於尋求「全新工業空間」且重視「物流動線」的買方來說,具備相當高的實用價值。其優勢在於屋齡極新、電梯與大貨車動線完善,能顯著提升營運效率;而鄰近長庚醫院的地理位置也提供了穩定的周邊支援環境。
然而,購買前務必審慎考量以下兩點:第一,工業用地之使用限制與稅務成本是否已納入口袋預算,避免未來因違規或稅負過重影響現金流;第二,車位僅有一格的配置對於近 150 坪的廠辦空間而言顯得緊湊,需評估自身員工規模。若您能接受工業用地的屬性,並確認總價資金無虞,這將是一個紮實的事業基地投資;若以純粹資產增值或住宅使用為目的,則風險較高,建議再作評估。
問與答
新莊房產專家
新莊房產專家
葉增羿(仲介,收取服務費)
暱稱:葉增羿
專業品質:
服務態度:
房仲電話:0921-884114
訂閱:1 (加入)大家房屋 新莊捷運富國 加盟店
經紀業名稱: 營福不動產有限公司
證號: (93)登字第033578號
新莊房產專家 葉增羿 0921884114

預約看屋
發問
收藏房屋土地
分享












我家粉絲團