面對復興公園樹海景觀
龜山買屋 /
龜山買房
-
捷運A8復興苑微型豪宅面公園
預約看屋
更多優質好屋: 190
※ 房屋照片僅反應使用現況,用途以實際合法文件為準。若法定用途與現況不同,可能違法並有相關風險,請購屋或承租前詳加確認,以保障權益。
- 總價:1750 萬
- 參考單價:62.84 萬/坪
- 地址:
桃園市
龜山區
復興二路
地圖
🏷️ 查看區域實價登錄
- 社區:復興苑
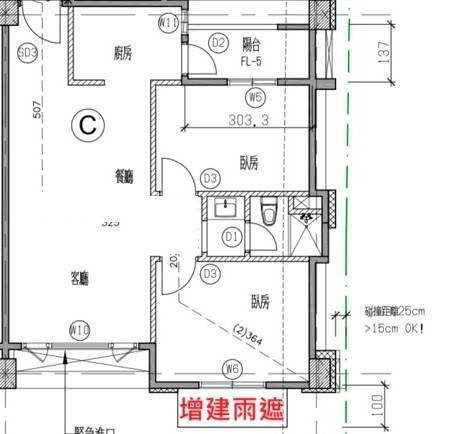
- 格局: 2房(室) 1廳 1衛 2陽台 1廚房
- 總坪數:27.85 坪 (不含車位面積)
- 主建物面積:18 坪
- 附屬建物面積:1.19 坪
- 共同使用:8.66 坪
- 土地面積:11.89 坪
- 樓別/樓高: 4樓 / 6樓
- 屋齡:1 年
- 法定用途:住家用
- 形式/類型:住宅/ 華廈
- 車位描述:可購買車位
- 電梯:有
影音專區
詳細資訊
朝向方位:坐西北朝東南
鄰近學校:文欣國小 .大崗國中.國立體育學院
鄰近公園:復興公園.文興公園
生活機能:龜山黃昏市場.全聯.家樂福超市
附近交通:桃園酒廠站.大崗國中站.A8機場捷運長庚醫院站
面臨路寬:6米
物件資訊內容以登記簿謄本或預售屋買賣契約為準,若有疑問請洽承辦人員。
特色說明
圖片介紹



















地圖 (點擊顯示地圖)
我家AI分析|物件診斷一次看
本內容由AI輔助分析整理,僅供參考,實際情況仍建議依此房仲說明與個人需求判斷。
SWOT 分析
| 面向 | 內容 |
|---|---|
| 優勢 (Strengths) | 1. 地段優越:鄰近機場捷運 A8 站與長庚生活圈,交通便利且生活機能成熟。 2. 產品質精:屋齡僅 1 年近乎全新,挑高設計 (3.2 米) 空間感佳,公設比低 (31%)。 3. 環境景觀:面對復興公園樹海視野,社區內設施齊全且總戶數少 (僅 20 戶),隱私與安靜度有保障。 4. 裝潢考究:使用 TOTO、錦宏氣密窗等品牌精品,不惜成本打造。 |
| 劣勢 (Weaknesses) | 1. 坪數較小:總面積約 27.85 坪,格局為 2 房 1 廳 1 衛,對於家庭人口較多的買家來說空間可能稍顯緊湊。 2. 車位需另購:總價不含車位,且地上層車位數量有限,後續購入成本需額外考量。 3. 價格門檻高:單價近 63 萬/坪,對於龜山地區而言屬高標價格,限制了潛在買受族群。 |
| 機會 (Opportunities) | 1. 稀缺性釋出:全區僅 20 戶中現僅釋出 4 戶,選屋空間大且具備獨特性。 2. 增值潛力:機場捷運沿線與長庚醫院周邊持續發展,若未來區域升值,具投資保值性。 3. 租賃需求:鄰近國體、學校及醫院,對於租購兩用或轉手出租至特定族群具有吸引力。 |
| 威脅 (Threats) | 1. 噪音考量:鄰近機場捷運沿線需留意飛機起降噪音影響,建議實地勘聽。 2. 高價流動性:總價過千萬,未來轉手時買氣可能受限於高額房價與區域認同度。 3. 市場波動:房市若處下行期,微型豪宅通常比大眾型住宅較難快速脫手。 |
物件評論
此物件對於追求「新成屋質感」、「捷運便捷性」以及「公園景觀」的小家庭或投資客來說,是非常值得納入考量的標的。其主要亮點在於極低的公設比與高品質的硬裝規格,配合 A8 站與長庚醫院的生活圈優勢,居住舒適度極高。
然而,由於單價偏高且為兩房一衛配置,若您計劃迎接新生兒或三代同堂同住,坪數可能略顯侷限;此外,務必確認停車位需求及預算是否涵蓋另購車位的成本。若能接受其高單價特性且對機場路線噪音不敏感,這是一筆具備優質居住價值的選擇。
問與答
桃園房屋
桃園房屋
住商不動產(仲介,收取服務費)
暱稱:桃園藝文加盟店
專業品質:
服務態度:
房仲電話:0932-099858
訂閱:39 (加入)住商桃園藝文 加盟店
經紀業名稱: 兆尊不動產仲介經紀有限公司
證號: (90)桃縣字第00221號
◎不動產仲介經紀服務。◎房屋土地買賣、租賃。◎不動產相關法令免費諮詢。◎稅務、節稅建議。◎增值稅免費概算
室內電話:03-317-9911
預約看屋
發問
收藏房屋土地
分享



















我家粉絲團