北區 公寓 3房
北區買屋 /
北區買房
-
★全新整理★一樓美公寓門前可停車
預約看屋
更多優質好屋: 13
※ 房屋照片僅反應使用現況,用途以實際合法文件為準。若法定用途與現況不同,可能違法並有相關風險,請購屋或承租前詳加確認,以保障權益。
- 總價:1298 萬
- 參考單價:48.91 萬/坪
- 地址:
台中市
北區
篤行路
地圖
🏷️ 查看區域實價登錄
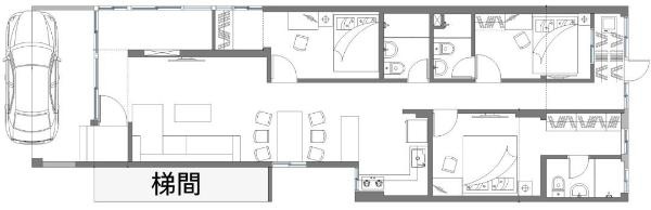
- 格局: 3房(室) 2廳 3衛 1廚房
- 總坪數:26.54 坪 (不含車位面積)
- 主建物面積:23.68 坪
- 附屬建物面積:2.86 坪
- 土地面積:8.43 坪
- 樓別/樓高: 1樓 / 5樓
- 屋齡:38 年
- 法定用途:住家用
- 形式/類型:住宅/ 公寓
- 車位:庭院式
房市行情分析
本圖表依實價登錄資料整理,提供市場行情參考;實際價格仍會因屋況、條件不同而有所差異,建議洽詢承辦營業員進一步了解。
詳細資訊
特色說明
圖片介紹














地圖 (點擊顯示地圖)
專家亮點
本內容由 AI 輔助分析整理,僅供參考,實際情況仍建議依此房仲說明與個人需求判斷。
購買建議:conditional yes(條件式推薦)
此物件適合追求「生活便利性」與「停車需求」優先的買家,但需對「屋齡與樓層特性」有充分心理準備。
主要理由如下:
- 稀缺性資源:在台中北區核心地段,能提供「門前可停車」的房源極為稀少,這對於市區通勤族是巨大的加分項。
- 功能佈局佳:26 坪空間擁有 3 房 3 衛的格局,尤其是雙套房設計,對於多代同住或有分租需求的家庭來說,實用性極高。
- 風險與收益權衡:屋齡 38 年確實是硬傷,可能影響未來轉手價值與貸款條件;但若以自住舒適度(全新整理、採光)或投資收租(學區、醫院周邊)為主,其單價 48.91 萬/坪在該區域尚具競爭力。
總結:若您不在意一樓的隱私與老建築的潛在維護問題,且非常看重停車便利與核心地段,此物件是值得入手的選擇;若您追求新大樓或對老舊公寓的貸款條件較敏感,則建議謹慎評估銀行貸款資格後再行決定。
問與答
南屯房屋推薦
南屯房屋推薦
黎科銘(仲介,收取服務費)
暱稱:黎科銘
專業品質:
服務態度:
房仲電話:0936-256837
訂閱:0 (加入)向心天晴 加盟店
經紀業名稱: 天晴地產開發有限公司
證號: (111)登字第415310號
南屯房屋推薦 黎科銘 0936256837
預約看屋
發問
收藏房屋土地
分享














我家粉絲團