大竹國小
彰化買屋 /
彰化買房
-
大竹新墅彰化好房推薦
※以上照片若為街景,為物件附近環境介紹,非刊登物本身。
預約看屋
更多優質好屋: 33
※ 房屋照片僅反應使用現況,用途以實際合法文件為準。若法定用途與現況不同,可能違法並有相關風險,請購屋或承租前詳加確認,以保障權益。
詳細資訊
特色說明
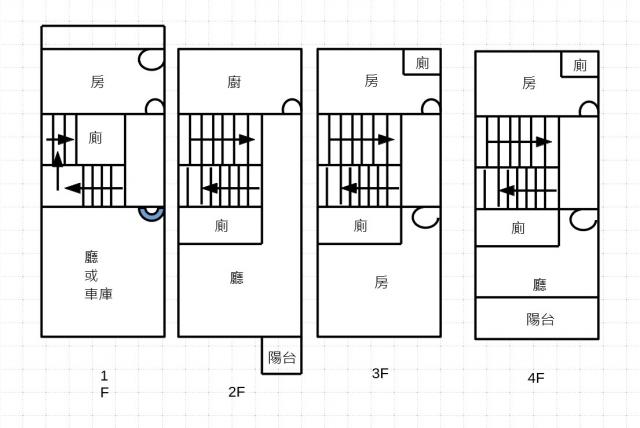
圖片介紹









地圖 (點擊顯示地圖)
問與答
賣家資訊
彰化好房推薦
楊沛慈(仲介,收取服務費)
暱稱:楊沛慈
專業品質:
服務態度:
房仲電話:0910-196999
讚:2 (加入)南彰化大埔 加盟店
經紀業名稱: 允揚不動產開發有限公司
證號: (109)彰縣登字第379370號
彰化好房推薦 楊雅玲 0910196999
預約看屋
發問
收藏房屋土地
分享










我家粉絲團