鼓山5房漂亮雙車透天
鼓山買屋 /
鼓山買房
-
高雄捷運透天美術館青海商圈五房雙車社區透天首購推薦耳東陳
預約看屋
更多優質好屋: 32
※ 房屋照片僅反應使用現況,用途以實際合法文件為準。若法定用途與現況不同,可能違法並有相關風險,請購屋或承租前詳加確認,以保障權益。
- 總價:2498 萬
- 參考單價:34.37 萬/坪
- 地址:
高雄市
鼓山區
環河街
地圖
🏷️ 查看區域實價登錄
- 社區:河畔莊子
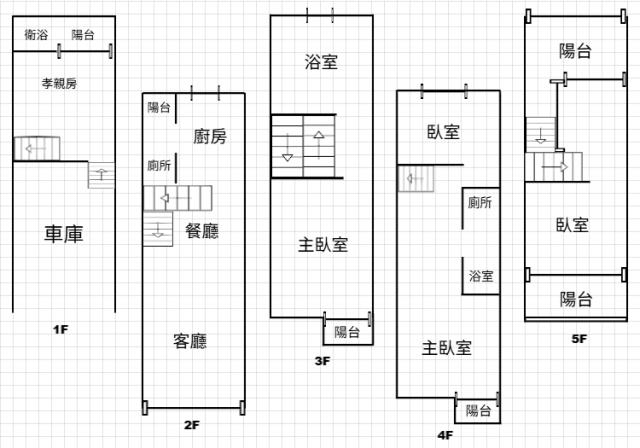
- 格局: 5房(室) 2廳 4衛
- 總坪數:72.671 坪 (不含車位面積)
- 主建物面積:61.304 坪
- 附屬建物面積:11.367 坪
- 土地面積:24.992 坪
- 樓別/樓高: 1~5樓 / 5樓
- 屋齡:20 年
- 法定用途:住家用
- 形式/類型:住宅/ 透天厝
影音專區
詳細資訊
朝向方位:坐西朝東
鄰近學校:中山國小 七賢國中
鄰近公園:三民親子公園
生活機能:博愛市場
附近交通:輕軌-聯合醫院站
面臨路寬:4米
物件資訊內容以登記簿謄本或預售屋買賣契約為準,若有疑問請洽承辦人員。
特色說明
圖片介紹

























地圖 (點擊顯示地圖)
問與答
高雄捷運透天
高雄捷運透天
陳畇甄(仲介,收取服務費)
暱稱:陳畇甄 耳東陳
專業品質:
服務態度:
房仲電話:0958-655878
訂閱:0 (加入)高雄裕誠自由 加盟店
經紀業名稱: 頡馨不動產事業有限公司
證號: (113)登字第458506號
高雄捷運透天 陳畇甄 0958655878
高雄捷運透天土地 華鳳特區旁優質農地 方正好使用投資耳東陳推
高雄市 鳥松區
台南捷運透天麻豆漂亮輕齡透天厝3套房&孝親房首購推薦耳東陳
台南市 麻豆區
高雄捷運透天 仁武地30坪雙車墅 5房帝王座向 耳東陳
高雄市 仁武區
高雄捷運透天大樓衛武營四大房新電梯華廈做宿舍或三代同堂耳東陳
高雄市 鳳山區
高雄捷運透天大樓高鐵首購宅漂亮三房車位左營首購推薦耳東陳
高雄市 左營區
高雄捷運透天大寮國中面寬漂亮雙車庫透天首購推薦耳東陳
高雄市 大寮區
高雄捷運透天新灣區獅甲捷運透店首購推薦耳東陳
高雄市 前鎮區
高雄捷運透天鳥松國中漂亮大地坪車庫別墅首購推薦耳東陳
高雄市 鳥松區
高雄捷運透天大寮潮寮學區漂亮採光車庫透天首購推薦耳東陳
高雄市 大寮區
高雄捷運透天漢民商圈公園首排漂亮雙車首購推薦耳東陳
高雄市 小港區
預約看屋
發問
收藏房屋土地
分享

























我家粉絲團