南屯買屋 /
南屯買房
-
台中豪宅顧問 熊貓國寶1+2樓店<附平車>
預約看屋
更多優質好屋: 39
※ 房屋照片僅反應使用現況,用途以實際合法文件為準。若法定用途與現況不同,可能違法並有相關風險,請購屋或承租前詳加確認,以保障權益。
- 總價:2420 萬 (含車位價)
- 參考單價:59.78 萬/坪
- 地址:
台中市
南屯區
大墩十一街
地圖
🏷️ 查看區域實價登錄
- 社區:熊貓國寶
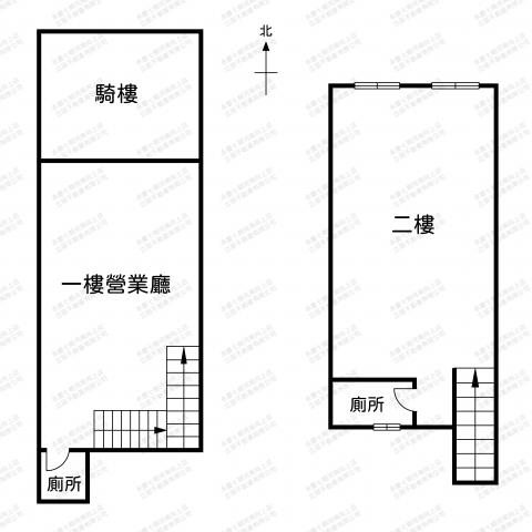
- 總坪數:40.485 坪 (包含車位面積)
- 主建物面積:27.806 坪
- 附屬建物面積:0.817 坪
- 共同使用:11.862 坪
- 樓別/樓高: 1~2樓 / 14樓
- 法定用途:住商用
- 形式/類型:商用/ 店面
- 車位:坡道平面式
詳細資訊
特色說明
圖片介紹








地圖 (點擊顯示地圖)
我家AI分析|物件診斷一次看
本內容由AI輔助分析整理,僅供參考,實際情況仍建議依此房仲說明與個人需求判斷。
SWOT 分析
| 面向 | 內容 |
|---|---|
| 優勢 (Strengths) | 1. 核心地段:位於南屯大墩路與公益路交匯區,鄰近天閣酒店及大型量販店,商業活動頻繁,曝光度高。 2. 包含車位:總價已附設一處坡道平面車位,對於店面經營或自用者而言,解決停車痛點且能提升房產價值。 3. 坪數彈性大:結合 1、2 樓空間達 40 餘坪,開放式規劃適合餐飲、展示型店面或混合用途開發,設計自由度極高。 4. 單價競爭性:每坪約 59.78 萬的價格在南屯黃金地段屬合理區間,含車位條件下具備投資潛力。 |
| 劣勢 (Weaknesses) | 1. 總價門檻高:總價達 2420 萬,資金投入較大,對買方的購屋能力與貸款額度要求較高。 2. 商用性質限制:產權屬性為店面(住商用),銀行貸款成數、利率通常高於住宅,且未來轉手難度可能較一般住宅為高。 3. 潛在環境干擾:鄰近黃昏市場與交通動線,若營業時間長可能會面臨噪音或停車擁擠問題,需考量經營型態是否匹配。 |
| 機會 (Opportunities) | 1. 收租潛力:該區為成熟商圈,商業需求穩定,適合作為實體店面出租,長期可獲得固定租金收益。 2. 區域發展:大墩路沿線生活機能持續優化,隨著周邊更新,資產增值空間可期。 3. 規劃自由:雙層空間搭配開放大廳設計,可依經營需求自行裝潢,創造更高坪效。 |
| 威脅 (Threats) | 1. 景氣循環:商業地產受經濟波動影響較大,若景氣衰退,營業狀況易受衝擊,進而影響租金回報率。 2. 同業競爭:周邊商家林立且有名連鎖店進駐,若經營模式缺乏特色,可能在市場上面臨激烈競爭。 3. 法規風險:住商用產權雖具彈性,但需留意地政機關對土地使用分區或營業執照核發的最新規範。 |
物件評論
購買建議:適合投資者與经营者,非自住首選。
此物件位於台中南屯區極具代表性的商業核心帶,最大的亮點在於「地段優勢」與「附設車位」。59.78 萬的單價在該區塊並不算高,尤其結合可自由規劃的雙層空間,非常適合開設餐飲品牌、連鎖門市或作為創業基地。
然而,買房者需清楚分辨此為「商用產權」。若您是以自住為主且無經營計畫,高昂的總價及較高的貸款成本會降低持有效益;反之,若您尋求資產配置並具備招商或經營能力,此物件因周邊人潮穩定,長期持有的抗跌性與租金回報潛力值得肯定。在簽約前建議仔細核算商用貸款利率與裝修預算,以評估實際投資報酬率。
問與答
台中豪宅顧問
台中豪宅顧問
吳育萱(仲介,收取服務費)
暱稱:吳育萱
專業品質:
服務態度:
房仲電話:0931-131190
訂閱:0 (加入)七期河南向上 加盟店
經紀業名稱: 立居不動產有限公司
證號: (111)中市經紀字第00707號
台中豪宅顧問 吳育萱 0931131190
2006.1 - 2017.5 永慶不動產(加盟店) -西湖直營店 任 店經理
2017.11 - 2021.5 永慶不動產(加盟店)-新市府加盟店 任 店協理&不動產經紀人
2021.6 - 2021.6 永慶不動產(加盟店)-七期河南向上加盟店 任 店東&不動產經紀人
於2010.3獲得 不動產經紀人
於2017.2獲得 台北市第十三屆優良經紀人
育萱於96年開始從事房地產業至今, 96~106年這十年期間在台北永慶房屋-內湖大直區服務,106年回到台中我從小成長且熟悉的地方。育萱自在台北直營店就非常擅長銷售分析重劃區內電梯大樓,豪宅別墅,透天等產品;因自己本身有普考不動產經紀人證照,所以也替無數客戶規劃過資產重新配置和稅務諮詢等重大規劃.若貴芳鄰有任何不動產資訊需要諮詢,都歡迎您的來電,育萱都很樂意提供您精準資訊.
台中豪宅顧問 七期精華地段│文華匯兩房車位精裝戶
台中市 西屯區
台中豪宅顧問 八期坐擁3公園-惠宇豐閣-3房平車
台中市 南屯區
台中豪宅顧問 北屯雙鐵共構_富旺米蘭雙星精裝4房雙平車
台中市 北屯區
台中豪宅顧問 文心森林公園 水安宮捷運站 孝親房白系美學別墅
台中市 南屯區
台中豪宅顧問 博克萊衛浴開窗朝南平面車位
台中市 南屯區
台中豪宅顧問 西屯逢甲核心地段唐寧街二期社區型別墅
台中市 西屯區
台中豪宅顧問 近勤美.草悟道-精華地段<東方博舍>2房平車
台中市 西 區
台中豪宅顧問 專任│北屯正大連路透天店面鄰近捷運綠線
台中市 北屯區
台中豪宅顧問 元心璽苑3房視野戶+B1平面車位近未來捷運藍線
台中市 北 區
台中豪宅顧問 國聚花園御所最美三房視野戶 歡迎詢問
台中市 南屯區
預約看屋
發問
收藏房屋土地
分享








我家粉絲團