中平國小、過嶺國中、
中壢買屋 /
中壢買房
-
青埔過嶺買房 過嶺|中壢好市多商圈|幸福公園6|視野景觀宅
預約看屋
更多優質好屋: 114
※ 房屋照片僅反應使用現況,用途以實際合法文件為準。若法定用途與現況不同,可能違法並有相關風險,請購屋或承租前詳加確認,以保障權益。
- 總價:1298 萬
- 參考單價:29.69 萬/坪
- 地址:
桃園市
中壢區
松仁路
地圖
🏷️ 查看區域實價登錄
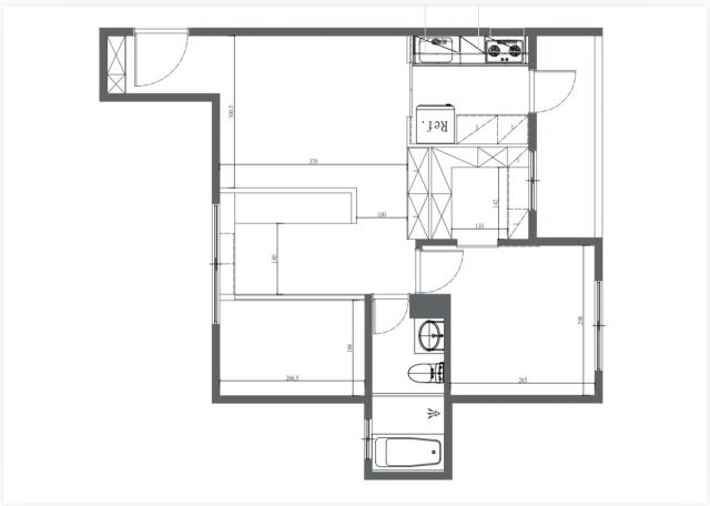
- 社區:幸福公園6
- 格局: 2房(室) 2廳 1衛
- 總坪數:43.715 坪 (包含車位面積)
- 主建物面積:17.548 坪
- 附屬建物面積:2.638 坪
- 共同使用:23.529 坪
- 車位坪數:13.224 坪
- 樓別/樓高: 5樓 / 12樓
- 屋齡:5 年
- 法定用途:集合住宅
- 形式/類型:住宅/ 電梯大樓
- 車位:坡道平面式
- 車位描述:B1-119
- 電梯:有
詳細資訊
管理費:2382 元/月
管理描述:月繳
鄰近學校:中平國小、過嶺國中、中央大學
生活機能:全聯福利中心.好市多.億客城
附近交通:高鐵桃園站
物件資訊內容以登記簿謄本或預售屋買賣契約為準,若有疑問請洽承辦人員。
特色說明
圖片介紹
















地圖 (點擊顯示地圖)
我家AI分析|物件診斷一次看
本內容由AI輔助分析整理,僅供參考,實際情況仍建議依此房仲說明與個人需求判斷。
SWOT 分析
| 面向 | 內容 |
|---|---|
| 優勢 | 1. 地點與機能優越: 位於青埔過嶺重劃區核心,鄰近中壢好市多、全聯及億客城,生活採買極為便利。 2. 交通樞紐便捷: 距離高鐵桃園站近,且可快速銜接國道 66 快速道路,適合通勤需求高的購屋者。 3. 房屋狀況新穎: 屋齡僅 5 年,保養狀況應佳;格局為 2 房改 2+1 彈性空間,全室裝潢可直接入住。 4. 居住環境舒適: 雙面採光通風良好,面松仁路永久棟距確保視野開闊無壓迫感。 5. 車位配置完整: 總價已包含 B1 獨立坡道平面式車位,解決停車問題且增加使用坪數。 |
| 劣勢 | 1. 衛浴配置單一: 雖有兩間房但僅有一間衛浴,對於多人口家庭而言,早高峰使用可能較為緊湊。 2. 樓層高度限制: 位於 5 樓屬中低樓層,雖然不影響採光,但視野開闊度不如高樓層來得廣闊。 3. 參考單價較高: 每坪約 29.69 萬的價格在該區域屬中高檔價位,需仔細評估預算與投資報酬率。 |
| 機會 | 1. 区域升值潛力: 青埔過嶺地區持續進行基礎建設與商業開發,未來房價具備上漲空間。 2. 租賃需求穩定: 鄰近中央大學與高鐵站,若有出租規劃,租屋市場需求相當強勁。 3. 購屋成本節省: 因含車位且可直接入住,可減少後續另購停車位、重新裝潢的時間與金錢投入。 |
| 威脅 | 1. 市場波動風險: 當前房地產景氣變化不穩,未來轉手價格可能受整體房市行情影響。 2. 交通與噪音問題: 靠近好市多與高鐵站,假日或尖峰時段可能面臨車潮擁擠,偶有交通噪音干擾。 3. 產權流通性: 總坪數 43 坪包含車位屬特定規格,未來轉手時可能會受市場偏好影響,流動速度可能略於標準規格住宅。 |
物件評論
此物件對於重視通勤效率、生活機能以及希望省卻裝潢麻煩的購屋者來說,是一個值得考慮的選擇。
主要理由如下: 首先,房屋新穎且包含車位,能大幅降低居住準備成本與後期維護壓力。其次,地點位於中壢青埔核心區,結合好市多商圈與高鐵交通優勢,自住便利性極高。最後,彈性格局與開闊視野提升了居住品質。惟需考量單衛浴配置是否滿足家庭成員需求,以及市場價格波動風險。若能符合您的預算與生活規劃,此物件的整體性價比相當不錯,建議安排實地看房以確認實際居住感受。
問與答
青埔過嶺買房
青埔過嶺買房
過嶺店(仲介,收取服務費)
暱稱:過嶺店
專業品質:
服務態度:
房仲電話:0935-239901
訂閱:0 (加入)過嶺 加盟店
經紀業名稱: 鴻耀不動產有限公司
證號: (102)登字第254902號
?家是什麼?家是一份重擔,家是一份責任;
?家是彼此的真誠相待,家更是能夠白頭偕老的慢慢旅程。
?家是我們人生的驛站,是我們生活的樂園,也是我們避風的港灣。
?幸福成家~家入青埔一個「靜 善 境 美 」的居住環境
讓家入青埔領航團隊 為您幸福圓夢、幸福成家?
青埔過嶺買房 請指名社區小巢03-4903391
室內電話:034903391
青埔過嶺買房 中壢好市多商圈-松義美學高樓層-無敵視野2房車
桃園市 中壢區
青埔過嶺買房 桃園新屋區社子段千坪特定目的事業用地
桃園市 新屋區
青埔過嶺買房 傳佳緻中壢過嶺好市多過嶺國小兩房車
桃園市 中壢區
青埔過嶺買房 中壢國泰街大面寬雙拼別墅25間套房買來當房東
桃園市 中壢區
青埔過嶺買房 中壢過嶺好市多商圈-合遠新綠洲溫馨三房平車
桃園市 新屋區
青埔過嶺買房卓悅首富2房車/雙套房衛浴/近台北商業大學
桃園市 平鎮區
青埔過嶺買房 NY好漾社區2房/中壢好市多商圈/高樓層無敵視野
桃園市 中壢區
青埔過嶺買房 超級郡精裝兩房車|過嶺核心近好市多
桃園市 中壢區
青埔過嶺買房青景喆保留戶釋出|全新落成|高樓層三房車
桃園市 觀音區
青埔過嶺買房 近中壢好市多前陽台進出東大路兩房美寓
桃園市 觀音區
預約看屋
發問
收藏房屋土地
分享
















我家粉絲團