中國醫 重劃區 增值
北屯買屋 /
北屯買房
-
台中南區房價 廍子學區首選|大城三月花見|三房平車
預約看屋
更多優質好屋: 70
※ 房屋照片僅反應使用現況,用途以實際合法文件為準。若法定用途與現況不同,可能違法並有相關風險,請購屋或承租前詳加確認,以保障權益。
- 總價:1680 萬 (含車位價)
- 參考單價:34.37 萬/坪
- 地址:
台中市
北屯區
建和路一段
地圖
🏷️ 查看區域實價登錄
- 社區:大城三月花見
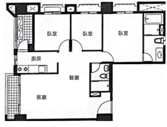
- 格局: 3房(室) 2廳 2衛
- 總坪數:48.882 坪 (包含車位面積)
- 主建物面積:23.205 坪
- 附屬建物面積:3.324 坪
- 共同使用:22.353 坪
- 樓別/樓高: 6樓 / 14樓
- 屋齡:13 年
- 法定用途:住家用
- 形式/類型:住宅/ 電梯大樓
- 車位:平面式車位
- 電梯:有
詳細資訊
管理費:6319 元/月
管理描述:雙月繳費
鄰近學校:廍子國小
鄰近公園:廍子公園、祥和公園
生活機能:軍功市場
物件資訊內容以登記簿謄本或預售屋買賣契約為準,若有疑問請洽承辦人員。
特色說明
圖片介紹



















地圖 (點擊顯示地圖)
我家AI分析|物件診斷一次看
本內容由AI輔助分析整理,僅供參考,實際情況仍建議依此房仲說明與個人需求判斷。
SWOT 分析
| 面向 | 內容 |
|---|---|
| 優勢 (Strengths) | 1. 學區資源豐富:鄰近廍子國小,對於子女教育規劃具備穩定性與便利性。 2. 樓層與視野佳:位於 6 樓(總高 14 樓),避開底層濕氣與頂樓隔熱問題,同時擁有良好採光與隱私。 3. 停車配置完善:包含平面式車位且計入總價,省去額外購置車位的費用與麻煩。 4. 格局合理:三房兩廳兩衛的規劃適合小家庭或三代同住,生活機能完整。 |
| 劣勢 (Weaknesses) | 1. 管理費偏高:每月 6,319 元的管理費對於近 50 坪的屋型而言屬中高價位,需確認是否包含額外服務設施。 2. 標題與地址不符:標題標示「台中南區」,實際地址為北屯區建和路一段,疑似行銷文案遺漏更新,需留意地點認知落差。 3. 屋齡因素:13 年屋齡雖非老舊公寓,但部分公共設施或內部裝潢可能需考慮翻修預算。 |
| 機會 (Opportunities) | 1. 學區需求穩定:鄰近優質小學的房源在轉手市場上通常流動性較佳,保值潛力較高。 2. 區域發展持續:北屯區整體生活圈日趨成熟,周邊公園與市場配套能支持居住品質提升。 3. 自住兼投資:若未來有產權轉換需求,學區房在租賃或轉售市場仍具吸引力。 |
| 威脅 (Threats) | 1. 房市波動風險:整體房地產市場可能隨經濟狀況調整,影響資產估值成長曲線。 2. 議價空間受限:高管理費有時會成為買方壓價的依據,未來轉手時可能面臨買方對持有成本的疑慮。 3. 同區競品競爭:北屯區類似屋齡與戶數之電梯大樓眾多,需確認本物件在社區維護上的實際優勢。 |
物件評論
此物件對於重視學區資源且計畫在中長期居住的小家庭而言,具有相當的購買價值。其主要賣點在於穩定的就學環境、良好的樓層位置以及包含車位的高性價比配置,能滿足家庭成員對於空間與生活便利性的基本需求。
然而,在決定簽約前建議採取以下行動:首先,需釐清標題中「南區」與實際「北屯區」的地點誤差,確保自身對生活圈動線有正確認知;其次,應詳細查核每月高額管理費的具體用途與收支狀況;最後,針對 13 年的屋齡進行室內驗收,預留必要的維修或翻新預算。若上述風險經評估可接受,此物件確實是北屯區一個值得考慮的中規中矩之居住選擇。
問與答
台中南區房價
台中南區房價
謝子璿(仲介,收取服務費)
暱稱:謝子璿
專業品質:
服務態度:
房仲電話:0979-396227
訂閱:0 (加入)13期文心宬炘 加盟店
經紀業名稱: 宬炘十三期文心旗艦有限公司
證號: (113)登字第467413號
台中南區房價 謝子璿 0979396227
您好,我是專業房地產仲介,專注於土地及住宅市場,擁有豐富的經驗和獲獎資歷。我始終秉持著誠實、負責、細心的原則,以專業的態度來服務每一位客戶。我的專長區域包括大里區、南區、南屯區及烏日區,深入了解這些區域的市場動態及發展潛力。
在我看來,購屋或投資不僅僅是一個交易,更是一項人生重大決策。因此,我致力於提供客戶最詳盡的資訊與分析,確保每一個決定都是明智而有根據的。我的目標是用最專業的方式,幫助您找到最合適的房產,無論是住家還是投資。
若您有任何房地產相關的需求或疑問,歡迎隨時與我聯繫。我期待能與您攜手,共同實現您的房產夢想!
台中南區房價 五權天下 國圖館旁三房平車
台中市 南 區
台中南區房價 元城上萃?J棟大兩房兩衛平車
台中市 南 區
台中南區房價 大松林裡高樓景觀戶 質感裝潢三房平車
台中市 南 區
台中南區房價 震後陽光多瑙河大兩房平車一手屋
台中市 南 區
台中南區房價 西屯市政LV稀有高樓四房雙平車
台中市 西屯區
台中南區房價 近國圖館 室內挑高樓中樓視野戶 三房平車
台中市 南 區
台中南區房價 遠雄幸福成 台中港特區 大兩房平車
台中市 梧棲區
台中南區房價 泓瑞恆昕 中山醫全新交屋 高樓三房平車
台中市 南 區
台中南區房價 專任興大學區大城大英國高樓採光置產收租雙套房
台中市 南 區
台中南區房價 台中車站 商業區全新整理電梯套房
台中市 東 區
預約看屋
發問
收藏房屋土地
分享



















我家粉絲團