中山買屋 /
中山買房
-
大同中山買房 尋找愛的天地
預約看屋
更多優質好屋: 23
※ 房屋照片僅反應使用現況,用途以實際合法文件為準。若法定用途與現況不同,可能違法並有相關風險,請購屋或承租前詳加確認,以保障權益。
- 總價:1288 萬
- 參考單價:126.13 萬/坪
- 地址:
台北市
中山區
新生北路二段
地圖
🏷️ 查看區域實價登錄
- 社區:國賓
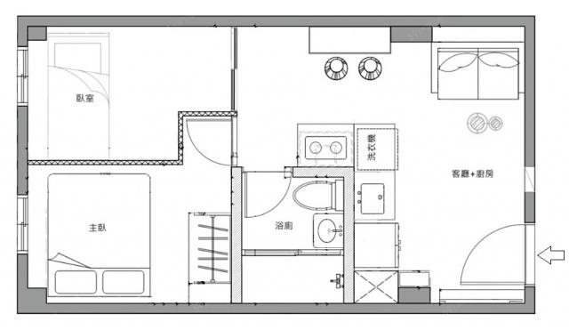
- 格局: 2房(室) 1廳 1衛 1廚房
- 總坪數:10.212 坪 (不含車位面積)
- 主建物面積:10.212 坪
- 土地面積:10.212 坪
- 樓別/樓高: 11樓 / 12樓
- 法定用途:集合住宅
- 形式/類型:住宅/ 電梯大樓
詳細資訊
特色說明
圖片介紹















地圖 (點擊顯示地圖)
我家AI分析|物件診斷一次看
本內容由AI輔助分析整理,僅供參考,實際情況仍建議依此房仲說明與個人需求判斷。
1. SWOT 分析
| 面向 | 內容 |
|---|---|
| 優勢 (Strengths) | 地段優越: 位於中山區核心地帶(新生北路二段),鄰近中山國小捷運站,通勤與生活機動性極高。 採光與隱私: 位於 12 層樓建築的 11 樓,屬於高樓層單位,視野開闊且私密性佳,通風良好。 格局機能: 10.2 坪內擁有 2 房 1 廳 1 衛,對於新婚夫婦或單身者而言,空間配置合理,功能齊全。 持有成本低: 每月管理費約 1208 元,相對於同區大樓較為經濟實惠,現金流壓力較小。 |
| 劣勢 (Weaknesses) | 坪數偏小: 總坪數僅約 10.2 坪,雖然價格低,但生活空間受限,對家族居住或長期成長的家庭而言空間不足。 缺乏車位: 不包含停車位,在中山區需額外負擔租車位費用(每月約 5000-8000 元不等)或面臨停車困擾。 衛浴配置: 僅有 1 個衛浴,若家庭成員增加或同時使用高峰時段,可能會感到不便。 社區機能: 低管理費可能意味著公共設施較簡樸,需確認大廈是否有老化維護問題。 |
| 機會 (Opportunities) | 增值潛力: 中山區屬於成熟核心區塊,房價抗跌性強,長期來看保值與增值空間穩定。 租屋需求高: 鄰近學校(吉林國小、新興國中)及捷運站,極易吸引租客或學生居住,投資出租回報率可能不錯。 適度改造: 小坪數較易進行輕裝修或格局微調,能依個人喜好營造符合需求的居家氛圍。 |
| 威脅 (Threats) | 流動性風險: 小坪數產品後續轉手對象多為首購族或投資客,若市場趨冷,售屋週期可能較長。 利率波動: 當前高利率環境下,房貸負擔需仔細評估,未來升息或政策變動的潛在風險仍存。 競爭因素: 中山區舊大樓更新議題常存,鄰近是否有都更潛力或鄰房改建,會影響居住品質與價值。 |
2. 物件評論
購買建議:適合首購族、新婚夫妻或投資客,不推薦作為長期家族自住。
主要理由: 此物件最大的賣點在於「核心地段」與「低總價門檻」。1288 萬的總價在台北市中山區屬於極具吸引力的入門價位,且高樓層優勢明顯。對於資金有限但希望在市中心定居的情侶來說,是進入該區域的良機。然而,缺乏車位與單衛浴設計,限制了其長期居住功能,若未來規劃生小孩或頻繁留宿客人,空間與便利性將顯不足。因此,建議將其視為「進階自住」或「投資收租」的標的,而非終極居家選擇。
問與答
大同中山買房
大同中山買房
黃奕寧(仲介,收取服務費)
暱稱:黃奕寧 小P
專業品質:
服務態度:
房仲電話:0977-144588
訂閱:1 (加入)住商不動産 松江民生 加盟店
經紀業名稱: 翃福不動產經紀有限公司
證號: (111)登字第421935號
大同中山買房 黃奕寧 0977-144-588
預約看屋
發問
收藏房屋土地
分享















我家粉絲團