北屯買屋 /
北屯買房
-
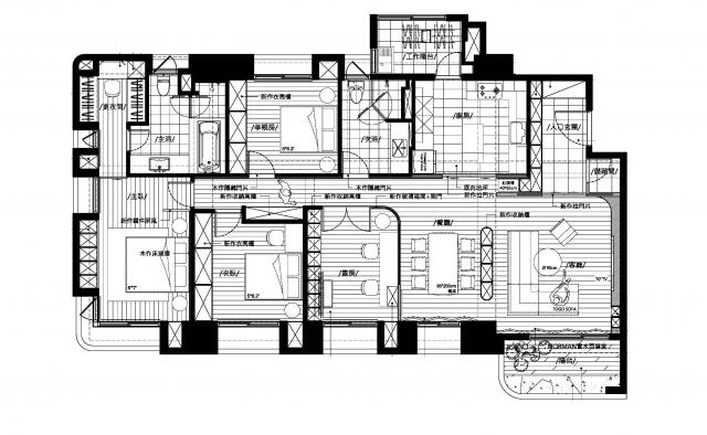
十四期✨龍寶仁美臻邸~3房雙平車✨精緻設計裝潢獎
預約看屋
更多優質好屋: 44
※ 房屋照片僅反應使用現況,用途以實際合法文件為準。若法定用途與現況不同,可能違法並有相關風險,請購屋或承租前詳加確認,以保障權益。
詳細資訊
特色說明
圖片介紹























地圖 (點擊顯示地圖)
問與答
賣家資訊
房仲謝小美
謝小美(仲介,收取服務費)
暱稱:Amy
專業品質:
服務態度:
房仲電話:0917-331686
讚:0 (加入)公益大業 加盟店
經紀業名稱: 敦璟開發股份有限公司
證號: (105) 中市經紀字第01666號
大家叫我”謝小美”。自我期許,能像”小美冰淇淋”這個老品牌,經營多年,依舊屹立不搖。
從事房仲業務10多年,任職永慶公益大業店,以認真積極的服務態度,獲得很多客戶的肯定,不吝嗇給予支持及鼓勵,讓小美的房仲職涯持續成長進步,期許以更專業的資訊回饋客戶;透過小美的分析及建議,客戶能對房產市場掌握最新的脈絡,洞燭先機。
小美通過國家考試--不動產經紀人考試合格,除了能提供給客戶更專業的交易安全及知識外,更能讓客戶對市場行情獲得第一手資訊,在交易的過程中能安心且放心。
另外。小美多次獲得百萬經紀人、風雲獎,期許自己不斷成長,以專業服務更多的客戶。
小美深耕經營西區商圈-別墅、透天,美術館特區、科博館特區及精誠等商圈,歡迎來電詢問,免費行情估價、行情分析。期待您的來電 0917-331686 謝小美
新社花海~臨8米路方正農地~置產農保~出價就談
台中市 新社區
文心森林公園捷運宅~達觀次頂樓朝南~三房附車位
台中市 南屯區
✨全新5.4米大面寬店面正~15米路驚喜降價✨
台中市 東 區
房仲謝小美 勤美草悟道朝南 低總價活路透天可收租自住
台中市 西 區
專簽✨忠孝國小向親園~室內主+附45坪✨三房車位
台中市 西 區
專任~豐邑新光大道~兩房平車~格局方正~獨立廚房
台中市 西屯區
房仲謝小美✨捷運宅十VVS1-全新交屋三房平車✨邊間視野戶
台中市 西屯區
五期華太自得居✨樓中樓三個樓層~精緻裝潢✨四平車
台中市 南屯區
北屯路捷運✨超值樓店1-3F✨獨立出入4套房~附車位
台中市 北屯區
房仲謝小美✨文華高中捷運站|低總價|白金商務中心|採光佳✨
台中市 西屯區
預約看屋
發問
收藏房屋土地
分享
























我家粉絲團