中華國小立人國中公寓
北區買屋 /
北區買房
-
漢口商圈|低總價二樓美寓|小資首選 台中北屯好房
詳細資訊
管理費:200 元/月
管理描述:進出磁扣感應
鄰近學校:中華國小、立人國中
鄰近公園:三信公園
生活機能:華美黃昏市場
附近交通:74快速道路
物件資訊內容以登記簿謄本或預售屋買賣契約為準,若有疑問請洽承辦人員。
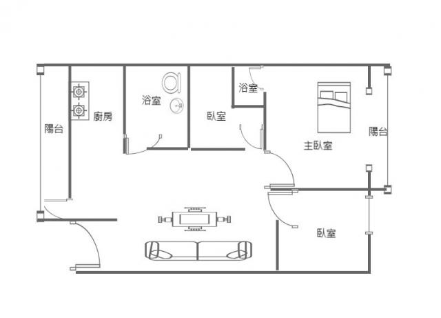
特色說明
圖片介紹









地圖 (點擊顯示地圖)
問與答
賣家資訊
台中北屯好房
張詩詰(仲介,收取服務費)
暱稱:張詩詰
專業品質:
服務態度:
房仲電話:0920-992435
讚:1 (加入)永慶不動產漢口山西 加盟店
經紀業名稱: 嘉星不動產經紀有限公司
證號: (113)登字第464010號
「你好,我是詩詰,一位把『家』看得很重的房仲。
因為從小到處搬家,結婚後又住在夫家,寄人籬下的不自在,讓我深深體會到:一個屬於自己的家,有多麼重要。
所以,成為房仲的我,不只是協助買賣,而是希望能陪伴你,一起找到安心落腳的地方。
家,不一定要大,但一定要能讓人安心、自在。」
專任單元二|輕屋齡6年屋|精美裝潢 三房平車 台中北屯好房
台中市 南屯區
四維捷運玄關三面採光3房車位直達 台中北屯好房
台中市 北屯區
專任委託,亞昕一沐,全世界只有我賣 台中北屯好房
台中市 北屯區
國圖館V.S中興大學,5.3%up整棟18套 台中北屯好房
台中市 南 區
【曉明女中旁|稀有獨洗獨晒電梯套房|24H管理 台中北屯好房
台中市 北 區
嶺東輕屋齡1+2樓黃金店面柱邊平面車位 台中北屯好房
台中市 南屯區
水湳經貿小巨蛋敦化知音前院停車別墅 台中北屯好房
台中市 北屯區
亞太雲端|草悟道知名地標SRC豪華商辦 台中北屯好房
台中市 北 區
霧峰大面寬雙車四套房田園風情別墅 台中北屯好房
台中市 霧峰區
11期普林斯頓國聚知青三房視野戶+平面大車位 台中北屯好房
台中市 北屯區
預約看屋
發問
收藏房屋土地
分享









預約看屋

我家粉絲團