新莊車站新竹科學園區
東區買屋 /
東區買房
-
新竹售屋租屋 豐邑一極~關新商圈~新莊車站~黃金店面/辦公室
預約看屋
更多優質好屋: 138
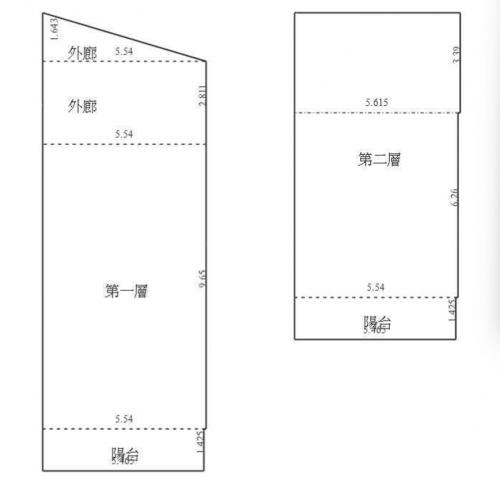
※ 房屋照片僅反應使用現況,用途以實際合法文件為準。若法定用途與現況不同,可能違法並有相關風險,請購屋或承租前詳加確認,以保障權益。
詳細資訊
管理費:2294 元/月
鄰近學校:關東國小 光武國中
鄰近公園:關新公園
生活機能:關東市場
附近交通:火車新莊站
面臨路寬:10米
物件資訊內容以登記簿謄本或預售屋買賣契約為準,若有疑問請洽承辦人員。
特色說明
圖片介紹
























地圖 (點擊顯示地圖)
問與答
賣家資訊
新竹售屋租屋
蘇芳尼(仲介,收取服務費)
暱稱:安妮 羽你看房
專業品質:
服務態度:
房仲電話:0912-195234
讚:1 (加入)新竹關埔曜群 加盟店
經紀業名稱: 曜群不動產有限公司
證號: (99)登字第156141號
新竹售屋租屋 蘇芳尼 0912195234
新竹售屋租屋 金雅重劃區浩瀚森Park-面公園景觀四房平車戶
新竹市 北 區
新竹售屋租屋 近園區寶山「彤雲山莊」採光美四房平車
新竹縣 寶山鄉
新竹售屋租屋 獨家~稀有出售~昌禾世界島大戶+雙車位
新竹市 東 區
新竹售屋租屋 大景首席-新屋齡-高樓採光綠景戶三房平車
新竹市 北 區
新竹售屋租屋 近科學園區~春福新天母一樓三房平車花園庭院
新竹市 東 區
新竹售屋租屋 稀有出售~正群天下採光大坪數大四房+車位
新竹市 北 區
新竹售屋租屋 專任~近食品寶山園區便宜透天無暗房門前停車
新竹市 東 區
新竹售屋租屋 山水私塾 視野景觀戶+平面車位
新竹縣 竹東鎮
新竹售屋租屋 坤山麗池 面麗池景觀四房/東園/培英/巨城
新竹市 東 區
新竹售屋租屋 回家像度假-山林系木質感透天-車庫停車
新竹市 北 區

預約看屋
發問
收藏房屋土地
分享

























我家粉絲團