賣家資訊
新竹找房買房
吳釧鴻(仲介,收取服務費)
暱稱:吳釧鴻 (阿鴻)
專業品質:
服務態度:
房仲電話:0928-085720
讚:1 (加入)新竹關埔曜群 加盟店
經紀業名稱: 曜群不動產有限公司
證號: (110)登字第405186號
新竹找房買房 吳釧鴻 0928085720
新竹找房買房 鄰近竹科寶山萬邦新邸(邨)明亮溫馨美三房
新竹縣 寶山鄉
新竹找房買房 竹北火車站近台元商圈有整理2+1房華廈
新竹縣 竹北市
新竹找房買房 稀有出售 桃園青川馥邊間美3房+平車
桃園市 桃園區
新竹找房買房 獨家湳雅大魯閣商圈明亮2+1房+平車
新竹市 北 區
新竹找房買房 專任 富宇雲極 朝南景觀4房改3+1房平車
新竹縣 竹北市
新竹找房買房 竹科X軟體園區東園培英學區忠孝名園美三房平車
新竹市 東 區
新竹找房買房 關埔夢想市誠意釋出 絕美屋況 園區學區生活全到位
新竹市 東 區
新竹找房買房 巨城三民學區金澤21高樓視野四房雙平車
新竹市 東 區
新竹找房買房 近園區寶山 彤雲山莊 採光美四房平車
新竹縣 寶山鄉
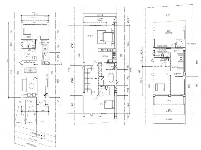
新竹找房買房 稀有出售芎林交流道近高鐵美式美電梯別墅
新竹縣 芎林鄉
預約看屋
發問
收藏房屋土地
分享

























預約看屋


























我家粉絲團