中正美寓
中正買屋 /
中正買房
-
基隆房地鼎宏 正榮低樓層美寓
預約看屋
更多優質好屋: 48
※ 房屋照片僅反應使用現況,用途以實際合法文件為準。若法定用途與現況不同,可能違法並有相關風險,請購屋或承租前詳加確認,以保障權益。
- 總價:
558 萬
555 萬 - 參考單價:18.25 萬/坪
- 地址:
基隆市
中正區
正榮街
地圖
🏷️ 查看區域實價登錄
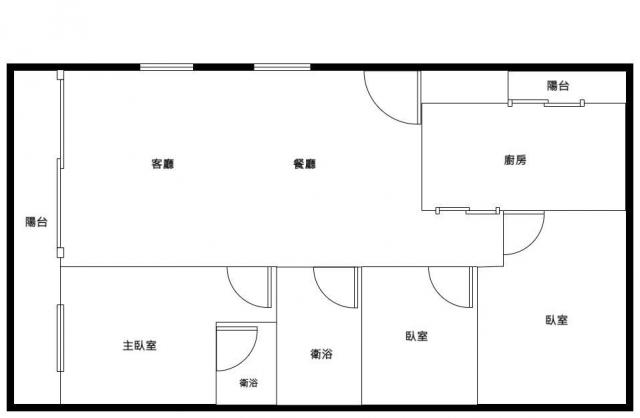
- 格局: 3房(室) 2廳 2衛 1陽台 1廚房
- 總坪數:30.412 坪 (不含車位面積)
- 主建物面積:28.516 坪
- 附屬建物面積:1.896 坪
- 土地面積:9.54 坪
- 樓別/樓高: B1樓 / 5樓
- 屋齡:42 年
- 法定用途:住家用
- 形式/類型:住宅/ 公寓
詳細資訊
管理描述:自主管理
朝向方位:坐南朝北
鄰近學校:正濱國中
鄰近公園:和平島公園
生活機能:勝利市場
附近交通:正榮街口
面臨路寬:12米
物件資訊內容以登記簿謄本或預售屋買賣契約為準,若有疑問請洽承辦人員。
特色說明
圖片介紹











地圖 (點擊顯示地圖)
我家AI分析|物件診斷一次看
本內容由AI輔助分析整理,僅供參考,實際情況仍建議依此房仲說明與個人需求判斷。
SWOT 分析
| 面向 | 內容 |
|---|---|
| 優勢 (Strengths) | 1. 價格具吸引力:總價約 555 萬,單價約 18.25 萬/坪,在基隆市中正區屬於親民的進階門檻。 2. 生活機能完善:鄰近勝利市場、公車站與學校,日常購物通勤方便。 3. 格局實用:3 房 2 廳 2 衛設計,符合小家庭居住需求,空間利用率高。 |
| 劣勢 (Weaknesses) | 1. 屋齡較高:42 年歷史可能面臨公共設施老舊或管路更新問題。 2. 樓層與電梯疑慮:資料顯示為 5 樓且為公寓型態,極高機率無電梯,若標示「低樓層」與「5 樓」不符需再確認;高樓層對長者或孩童不便。 3. 缺乏車位:不含車位,在舊市區停車可能成為生活負擔。 |
| 機會 (Opportunities) | 1. 學區優勢:正濱國中學區是當地求學的穩定選擇,有助於未來轉手給有學齡需求的買家。 2. 置產門檻低:對於資金有限但需擁有自有住宅的家庭或投資客,是較好的入場機會。 |
| 威脅 (Threats) | 1. 貸款年限限制:屋齡加貸款年限可能受限,增加購屋者的資金壓力或首付比例。 2. 轉手流動性:老舊公寓在未來二手市場的競爭下,可能因維護成本高而較難轉售。 |
物件評論
此物件對於「預算有限、重視生活機能」的家庭而言,具一定的購買價值,屬於中肯推薦的對象。主要理由在於其地理位置成熟且單價低廉,能提供穩定的居住品質與學區資源,尤其適合無電梯依賴的小家庭。然而,購屋者必須注意 42 年屋齡可能帶來的貸款年限縮短風險,以及公寓無電梯在高樓層(5 樓)的潛在不便。建議您在簽約前務必確認「5 樓」標示是否正確、是否有增設電梯的可能或計畫,並詳查建物結構狀況,若預算能負擔且接受老舊維護成本,這將是一筆性價比不錯的購屋選擇。
問與答
基隆房地鼎宏
基隆房地鼎宏
錢鼎宏(仲介,收取服務費)
暱稱:錢鼎宏
專業品質:
服務態度:
房仲電話:0928-340641
訂閱:2 (加入)太平洋房屋 基隆長庚 加盟店
經紀業名稱: 安心成家不動產仲介經紀有限公司
證號: (103)登字第270740號
基隆房地鼎宏 買屋賣屋找鼎宏,MONEY讓您住美屋
您好!我是您的專業房仲,名字是錢鼎宏。在這個充滿變化的房地產市場中,我始終堅持以負責任的態度,為每一位客戶提供最專業的服務。每當看到客戶找到理想的家時,我的心中都充滿了無比的喜悅與成就感。
從業房仲業十年以上,累積了無數經驗,也曾經一日就完成委託,代看,收斡及簽約,無論是買房、賣房或是租屋,我都會用熱情和耐心聆聽您的需求,以專業的知識為您提供最合適的解決方案。
讓我們一起踏上這段尋家旅程吧!如果您對房產有任何疑問或需求,請隨時與我聯絡,我期待著能夠成為您最值得信賴的夥伴,一起實現您的房產夢想!您可以透過0928340641與我聯繫,期待與您相見!
室內電話:0928340641
預約看屋
發問
收藏房屋土地
分享











我家粉絲團