樂利國小電梯大樓
土城買屋 /
土城買房
-
土城買屋賣屋 世界花園樹海兩房車 大家的惠玲
預約看屋
更多優質好屋: 102
※ 房屋照片僅反應使用現況,用途以實際合法文件為準。若法定用途與現況不同,可能違法並有相關風險,請購屋或承租前詳加確認,以保障權益。
- 總價:1598 萬 (含車位價)
- 參考單價:64.07 萬/坪
- 地址:
新北市
土城區
莊園街
地圖
🏷️ 查看區域實價登錄
- 社區:世界花園
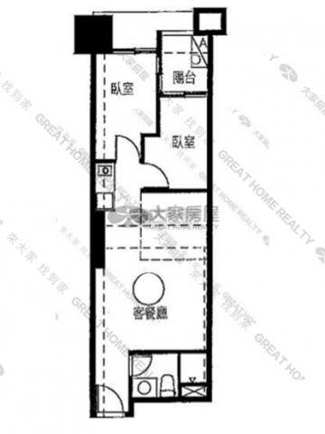
- 格局: 2房(室) 2廳 1衛
- 總坪數:24.94 坪 (包含車位面積)
- 主建物面積:11.87 坪
- 附屬建物面積:0.91 坪
- 共同使用:6.8 坪
- 車位坪數:5.35 坪
- 土地面積:2.69 坪
- 樓別/樓高: 6樓 / 24樓
- 屋齡:6 個月
- 法定用途:住家用
- 形式/類型:住宅/ 電梯大樓
- 車位:平面式車位
- 車位描述:坡道+平面
- 電梯:有
房市行情分析
詳細資訊
管理費:1176 元/月
朝向方位:坐西南朝東北
鄰近學校:市立樂利國小,市立中正國中
鄰近公園:斬龍山遺址文化公園
生活機能:學府市場
附近交通:海山捷運站
物件資訊內容以登記簿謄本或預售屋買賣契約為準,若有疑問請洽承辦人員。
特色說明
圖片介紹












地圖 (點擊顯示地圖)
我家AI分析|物件診斷一次看
本內容由AI輔助分析整理,僅供參考,實際情況仍建議依此房仲說明與個人需求判斷。
買屋分析報告:土城世界花園
1. SWOT 分析
| 面向 | 內容 |
|---|---|
| 優勢 (Strengths) | 1. 屋況新穎:屋齡僅 6 個月,接近新房,減少初期維修麻煩。 2. 交通便利:鄰近海山捷運站 (BL04),並靠近國道 3 號與台 65 快速道路,通勤方便。 3. 生活機能佳:擁有學區優勢 (樂利國小、中正國中),鄰近斬龍山公園及學府市場,生活圈完善。 4. 車位配置:總價包含平面式車位,在新北市房價中屬高性價比配置。 5. 管理完善:社區採飯店式管理,擁有大型主題花園與齊全公設,居住品質有保障。 |
| 劣勢 (Weaknesses) | 1. 空間規劃:2 房 1 衛的設計,對於人口較多的家庭可能稍顯緊湊。 2. 樓層視野:6 樓屬於中低樓層,相比高樓層視野與採光可能略受影響。 3. 車位型態:平面式車位相較於地下停車場,便利性與安全性稍弱。 4. 單價水準:參考單價 64.07 萬/坪在土城區屬於中高價位,需考量負擔能力。 |
| 機會 (Opportunities) | 1. 自行裝潢:因屋況極新,買方可依個人喜好進行室內設計,增加居住滿意度。 2. 資產增值:土城區鄰近捷運與學校,長期來看具保值與增值潛力。 3. 租金潛力:優越的學區與交通條件,若未來轉售或出租,具穩定吸引力。 |
| 威脅 (Threats) | 1. 市場波動:房地產市場受經濟環境影響,需注意進場時機。 2. 轉手週期:24.94 坪的中戶格局, resale 市場競爭較兩房或三房大戶可能有所不同。 3. 生活干擾:鄰近公園與快速道路,需確認特定時間點是否有噪音或車輛流量影響。 |
2. 物件評論
購買建議:值得考慮
這件物件非常適合尋求「交通便利」與「居住新穎度」的首購族或小家庭。其最大亮點在於屋況極新(僅 6 個月)且價格包含車位,總價 1,598 萬在新北市土城區擁有捷運與學區雙優勢,具備相當高的居住實用性。
雖然 2 房 1 衛與平面式車位略有限制,但考慮到社區管理良好且鄰近公園綠地,整體生活品質有保障。若您能接受 6 樓的視野條件,並確認月繳管理費與其他隱藏費用符合預算,這是一個性價比不錯的選擇。建議在簽約前再次核對房屋實際狀況與車位產權,並親自感受通勤路線與噪音干擾情況,以確認是否符合個人需求。
問與答
土城買房賣房
土城買房賣房
李惠玲(仲介,收取服務費)
暱稱:李惠玲
專業品質:
服務態度:
房仲電話:0983-098525
訂閱:1 (加入)大家房屋 土城金城 加盟店
經紀業名稱: 晉將不動產仲介經紀有限公司
證號: (110)登字第392268號
土城買房賣房 李惠玲 0983098525
土城買屋賣屋 聯合公園全新2房 大家的惠玲
新北市 新莊區
土城買屋賣屋 榮譽市民有陽台套房 大家的惠玲
新北市 土城區
土城買屋賣屋 年收192萬金店面 大家的惠玲
新北市 土城區
土城買屋賣屋 海山捷運門前可停車一樓 大家的惠玲
新北市 土城區
土城買屋賣屋 明志科大美寓鼎家 大家的惠玲
新北市 泰山區
土城買屋賣屋 仁基京品高樓景觀三房車 大家的惠玲
新北市 土城區
土城買屋賣屋 未來捷運旁世紀裝潢美4房 大家的惠玲
新北市 土城區
土城買屋賣屋 重劃區旁免爬高美寓 大家的惠玲
新北市 土城區
土城買屋賣屋 青雲雅築美感空間漂亮二房 大家的惠玲
新北市 土城區
土城買屋賣屋 捷運愛迪生美二房 大家的惠玲
新北市 土城區
預約看屋
發問
收藏房屋土地
分享












我家粉絲團