頭份市區 電梯大樓
頭份買屋 /
頭份買房
-
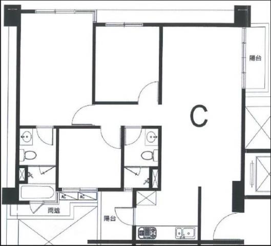
【 頭份市中心】東興路|質感裝潢三房平車 竹南頭份找房
預約看屋
更多優質好屋: 22
※ 房屋照片僅反應使用現況,用途以實際合法文件為準。若法定用途與現況不同,可能違法並有相關風險,請購屋或承租前詳加確認,以保障權益。
詳細資訊
特色說明
圖片介紹














地圖 (點擊顯示地圖)
問與答
賣家資訊
竹南頭份找房
姚昕妤(仲介,收取服務費)
暱稱:姚昕妤
專業品質:
服務態度:
房仲電話:0981-872653
讚:1 (加入)頭份藝文品宅 加盟店
經紀業名稱: 品宅開發有限公司
證號: (102)登字第256590號
竹南頭份找房 姚昕妤 0981-872-653
【薇多利亞5】建國學區2房平車美廈 竹南頭份找房
苗栗縣 頭份市
【美夢成真】八德二路|雙車優質透天 竹南頭份找房
苗栗縣 頭份市
【藝文公園】崁頂公園首排次頂樓面南平車 竹南頭份找房
苗栗縣 頭份市
【興隆四季】2房雙平車視野美廈 竹南頭份找房
苗栗縣 頭份市
東站【悅捷市】景觀戶|大三房平車 竹南頭份找房
苗栗縣 竹南鎮
【立景悅】全新三房平車|視野戶 竹南頭份找房
苗栗縣 竹南鎮
【雲朗】B1學區全新電梯美墅 頭份竹南找房
苗栗縣 竹南鎮
MOMA|優質雙車位住店 竹南頭份找房
苗栗縣 竹南鎮
【昌隆廣場】勝旺好旺|2房附平車 竹南頭份找房
苗栗縣 頭份市
【竹南大埔】全新A2學區三角窗電梯美墅 頭份竹南找房
苗栗縣 竹南鎮
預約看屋
發問
收藏房屋土地
分享















我家粉絲團