正義市場辦公店面
苓雅買屋 /
苓雅買房
-
高雄不動產顧問 正義車站臨路面寬1+2樓店可停車
預約看屋
更多優質好屋: 21
※ 房屋照片僅反應使用現況,用途以實際合法文件為準。若法定用途與現況不同,可能違法並有相關風險,請購屋或承租前詳加確認,以保障權益。
- 總價:1380 萬
- 參考單價:34.45 萬/坪
- 地址:
高雄市
苓雅區
文昌路
地圖
🏷️ 查看區域實價登錄
- 社區:三禾麗堡
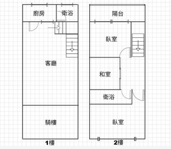
- 格局: 3+2房(室) 2廳 2衛 1陽台
- 總坪數:40.06 坪 (不含車位面積)
- 主建物面積:29.17 坪
- 附屬建物面積:5.83 坪
- 共同使用:5.06 坪
- 土地面積:12.38 坪
- 樓別/樓高: 1~2樓 / 8樓
- 屋齡:30 年
- 法定用途:住家用
- 形式/類型:住宅/ 華廈
- 電梯:有
詳細資訊
特色說明
圖片介紹




















地圖 (點擊顯示地圖)
我家AI分析|物件診斷一次看
本內容由AI輔助分析整理,僅供參考,實際情況仍建議依此房仲說明與個人需求判斷。
購屋分析報告:高雄市苓雅區文昌路物件 (SID: 1277096)
1. SWOT 分析
| 面向 | 內容 |
|---|---|
| 優勢 (Strengths) | 生活機能極佳:鄰近正義市場、中正國小及正仁公園,通勤與日常生活便利性高。 交通方便:緊鄰台鐵正義車站,且近國道一號交流道,前往文山商圈或武廟商圈動線便捷。 格局實用好存:40.06 坪大空間,3 房 2 廳 2 衛配置,滿足家庭居住需求;使用天然瓦斯。 停車優勢:文中提及「門前可停汽車」,在市中心舊社區屬於相當稀缺的便利性資源。 價格合理:參考單價約 34.45 萬/坪,相對於站前區域房價,性價比尚可。 |
| 劣勢 (Weaknesses) | 屋齡較長:30 年屋齡意味著管線可能老舊,未來維修或換裝成本較高。 樓層特點:位於 1~2 樓,隱私性較低且易受街道噪音影響;若屬店鋪用途住宅化,隔音效果需實地確認。 停車未包含在內:總坪數不包含車位,「門前可停汽車」可能非法定停车位,需釐清合法停車位置與管轄權限。 管理費偏低:每月 800 元雖輕鬆,但也可能代表社區修繕基金不足,未來若有重大整建需另行籌資。 |
| 機會 (Opportunities) | 翻新增值潛力:老屋若進行全面翻新,可大幅提升居住品質與市場價值。 收租優勢:近車站與商圈,對於租賃需求高的上班族或小家庭有穩定的出租吸引力。 地段重劃期望:苓雅區舊城區常面臨都更或更新議題,長期持有可能受益於周邊環境改善。 |
| 威脅 (Threats) | 貸款與交易風險:屋齡近 30 年,部分銀行對高齡建物的貸款年限可能會縮短。 停車爭議:若「門前停車」無合法權屬(如私有地或巷道),未來可能面臨違規拖吊或無法永久保留的風險。 老舊社區維護:高樓大廈若缺乏有效管理,30 年房齡易有外牆剝落、漏水等潛在問題,影響居住安全。 |
2. 物件評論
此物件位於高雄市苓雅區核心地段,整體而言適合對生活便利性與通勤時間要求極高者購買。
主要推薦理由在於其難得的地理位置(正義車站與市場旁)及寬敞的戶型配置,特別是需要居家办公或家庭成員較多的買方。此外,市中心擁有汽車停放空間是極為珍貴的資源,能解決許多舊城區居住痛點。
然而,建議您在考慮購入前務必進行兩項確認:第一,請專業技師檢測管線與結構安全,因屋齡已達 30 年;第二,需向房仲或管理委員會確認「門前停車」的合法權屬,避免未來產生糾紛。若您願意投入預算進行內部翻新以改善老舊瑕疵,這將是一筆具居住實用的投資。
問與答
高雄不動產顧問
高雄不動產顧問
呂沛樺(仲介,收取服務費)
暱稱:呂沛樺
專業品質:
服務態度:
房仲電話:0968-782585
訂閱:0 (加入)一心光華 加盟店
經紀業名稱: 天馳不動產仲介有限公司
證號: (102)登字第259798號
高雄不動產顧問 呂沛樺 0968-782-585
您好,我是您值得信賴的房地產經紀人,專注於提供誠實、負責且細心的專業服務。多次榮獲百萬年度經紀人的我,深知每一位客戶的需求與期待,因此我在每一項交易中都秉持謹慎的態度,確保您能得到最好的結果。
我專精於某些社區及區域,對當地市場有深入的瞭解,並能夠提供精準的市場分析和建議,讓客戶在競爭激烈的房地產市場中占得先機。無論您是購屋、賣屋或投資,我都會全力以赴,確保您每一步的決策都來自於充分的信息和瞭解。
如果您對買賣房地產有任何疑問或需求,請隨時與我聯絡。我期待著與您合作,共同實現您的房地產夢想!
高雄不動產顧問 ★R5捷運站 精緻裝潢3房+平車
高雄市 前鎮區
高雄不動產顧問 捷運鳳山國中3面採光溫馨裝潢3房+平車
高雄市 鳳山區
高雄不動產顧問 建工明誠雙商圈★全新未住採光兩房平車
高雄市 三民區
高雄不動產顧問 亞灣繽海丨三多商圈2+1房+平面車位
高雄市 苓雅區
高雄不動產顧問 衛武營正義車站大邊間全新整理日式精緻美車墅
高雄市 苓雅區
高雄不動產顧問 瑞隆商圈陽台進出邊間雙衛開窗稀有
高雄市 前鎮區
高雄不動產顧問 專約【屋況優美】高醫建工&雙星報喜三房車位
高雄市 三民區
高雄不動產顧問 餐旅大學重金整新 邊間正三樓車庫透天
高雄市 小港區
高雄不動產顧問 光華首席採光漂亮大3房+雙車位
高雄市 前鎮區
高雄不動產顧問 專-樹德家商大面寬 優質透天【門口可停兩車】
高雄市 三民區
預約看屋
發問
收藏房屋土地
分享




















我家粉絲團