林園買屋 /
林園買房
-
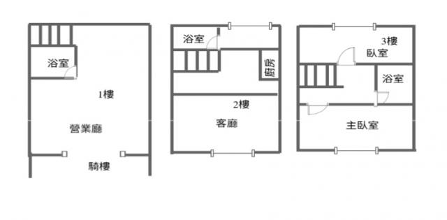
林園低總價1+2+3 騎樓式店住
預約看屋
更多優質好屋: 48
※ 房屋照片僅反應使用現況,用途以實際合法文件為準。若法定用途與現況不同,可能違法並有相關風險,請購屋或承租前詳加確認,以保障權益。
- 總價:620 萬
- 參考單價:12.85 萬/坪
- 地址:
高雄市
林園區
校前路
地圖
🏷️ 查看區域實價登錄
- 社區:校前大地
- 總坪數:48.24 坪 (不含車位面積)
- 主建物面積:39.2 坪
- 附屬建物面積:2.86 坪
- 共同使用:6.18 坪
- 土地面積:8.47 坪
- 樓別/樓高: 1~3樓 / 8樓
- 屋齡:31 年
- 法定用途:住商用
- 形式/類型:商用/ 華廈
- 車位描述:自家車庫
房市行情分析
本圖表依實價登錄資料整理,提供市場行情參考;實際價格仍會因屋況、條件不同而有所差異,建議洽詢承辦營業員進一步了解。
詳細資訊
特色說明
圖片介紹














地圖 (點擊顯示地圖)
問與答
鳳山大樓推薦
鳳山大樓推薦
韓保珠(仲介,收取服務費)
暱稱:韓保珠
專業品質:
服務態度:
房仲電話:0937-453977
訂閱:1 (加入)高雄美術麗鼎 加盟店
經紀業名稱: 麗鼎不動產有限公司
證號: (97)登字第110633號
鳳山大樓推薦 韓保珠 0937453977
土城延吉街邊間三面採光/生活機能強/3樓公寓
新北市 土城區
永新社區低總價三房平車(誠可談)
台南市 新化區
光武國小即將完工/全新大三房平車~可貸款
高雄市 三民區
高醫/吉林商圈翻新活巷車庫透天【永義韓保珠 鳳山大樓推薦】
高雄市 三民區
鳳山國中捷運翻新車庫透天【永義韓保珠 鳳山大樓推薦】
高雄市 鳳山區
勝利星村商圈|正四樓前路後巷車墅
屏東縣 屏東市
五福國中|文化中心|精裝大建坪二樓美宅
高雄市 三民區
R3小港站/漢民商圈翻新小資店住【永義韓保珠】鳳山大樓推薦
高雄市 小港區
近大寮捷運活巷車庫透天
高雄市 大寮區
中西區/南門生活圈/超值車庫透天【永義韓保珠 鳳山大樓推薦】
台南市 中西區

預約看屋
發問
收藏房屋土地
分享














我家粉絲團