台中太平買房
太平買屋 /
太平買房
-
太平樹孝商圈3房+平車免整理即可入住 台中太平買房
預約看屋
更多優質好屋: 737
※ 房屋照片僅反應使用現況,用途以實際合法文件為準。若法定用途與現況不同,可能違法並有相關風險,請購屋或承租前詳加確認,以保障權益。
- 總價:870 萬 (含車位價)
- 參考單價:30 萬/坪
- 地址:
台中市
太平區
樹孝路
地圖
🏷️ 查看區域實價登錄
- 社區:慶吉公園大地
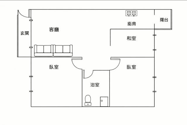
- 格局: 3房(室) 2廳 1衛
- 總坪數:29 坪 (包含車位面積)
- 樓別/樓高: 7樓 / 13樓
- 屋齡:34 年
- 法定用途:住家用
- 形式/類型:住宅/ 電梯大樓
- 車位:坡道平面式
詳細資訊
特色說明
圖片介紹




















地圖 (點擊顯示地圖)
我家AI分析|物件診斷一次看
本內容由AI輔助分析整理,僅供參考,實際情況仍建議依此房仲說明與個人需求判斷。
SWOT 分析
| 面向 | 內容 |
|---|---|
| 優勢 | 1. 房價具競爭力:總價 870 萬且包含車位,每坪單價約 30 萬元,在台中市屬於低門檻購屋選項。 2. 生活機能完善:位於樹孝商圈,日常採買與交通(近 74 號交流道)均便利。 3. 居住條件佳:高樓層(7 樓/13 樓)採光明亮,格局方正且前後有陽台。 4. 即買即住:屋況良好免整理,省去裝修成本與時間。 5. 安全管理:社區提供 24 小時管理,居住安全性高。 |
| 劣勢 | 1. 屋齡偏老:已達 34 年,部分管線或設施可能老化,未來維修機率增加。 2. 衛浴配置不足:3 房僅有 1 衛,對於家庭成員較多者,早高峰使用可能不便。 3. 坪數實際感小:總坪數 29 坪包含車位,扣除車位後室內實用面積約 20 餘坪,空間較緊湊。 4. 貸款因素:老屋可能面臨銀行成數限制或評估價值差異。 |
| 機會 | 1. 首購跳板:低总价適合資金有限的年輕人作為第一張房產的落腳點。 2. 投資收租:交通便利與低總價有利於吸引租客,租金報酬率可能不錯。 3. 翻新價值:若預算允許進行輕微裝潢,可改善老舊感,提升未來轉手性。 |
| 威脅 | 1. 市場流動性風險:隨著房齡增加,同社區新成屋競爭下,轉手速度可能較慢。 2. 公共基金壓力:社區設施若因高齡需大規模更新,可能導致管理費調漲或繳交大額特別款。 3. 價值持平:在總價上雖有優勢,但老屋的增值潛力可能不如新案。 |
物件評論
此物件對於追求低總價、重視生活機能的買方來說,具有相當高的購買價值。主要優點在於「性價比」,在台中太平區能以百萬出頭取得含車位的高樓層電梯宅,且免裝修即可入住,大幅降低了購屋的資金壓力與時間成本。
然而,建議您需特別考量 34 年屋齡可能帶來的潛在維修問題,以及單衛浴配置是否滿足家庭未來需求。若您主要目標為「首購自住」或「中短期投資」,此物件值得列入比較;但若是尋求長期增值或對建築新舊度極高要求者,則需謹慎評估銀行的貸款條件與未來的轉手流動性風險。
問與答
台中太平買房 台中東區買房
台中太平買房 台中東區買房
富屋不動產(仲介,收取服務費)
暱稱:富屋不動產
專業品質:
服務態度:
房仲電話:0422-113993
訂閱:0 (加入)台中東區樂業 加盟店
經紀業名稱: 富屋不動產經紀有限公司
證號: 103年中市經紀字號01371號
台中太平買房 台中東區買房 富屋不動產 0422113993
大里仁化丁建百坪三照合法廠房+住家
台中市 大里區
樹孝商圈旁低總價雙陽台學區大4房 台中太平買房
台中市 太平區
C勤益科大旁三番街套房低總價好租好住 台中太平買房
台中市 太平區
北屯黃金地段|收租自用皆可|兩房兩衛休旅車位
台中市 北屯區
工業區旁 大面寬大地坪 欠修理透天建地 台中太平買房
台中市 太平區
情定水蓮8|大三房平車|三面採光視野戶
台中市 北屯區
天星國家環境清幽退休首選好風景別墅
台中市 北屯區
⚠️敦化公園旁⚠️10米路大面寬|併排雙車墅
台中市 北屯區
臨中山精武商圈入門玄關3房平面車位 台中太平買房
台中市 太平區
太平運動公園.商業區.挑高美樓店 台中太平買房
台中市 太平區
預約看屋
發問
收藏房屋土地
分享




















我家粉絲團