南屯買屋 /
南屯買房
-
台中豪宅顧問 熊貓國寶1+2樓店——附平車
預約看屋
更多優質好屋: 38
※ 房屋照片僅反應使用現況,用途以實際合法文件為準。若法定用途與現況不同,可能違法並有相關風險,請購屋或承租前詳加確認,以保障權益。
- 總價:2420 萬
- 參考單價:57.33 萬/坪
- 地址:
台中市
南屯區
大墩十一街
地圖
🏷️ 查看區域實價登錄
- 社區:熊貓國寶
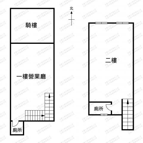
- 總坪數:42.211 坪 (不含車位面積)
- 主建物面積:29.56 坪
- 附屬建物面積:0.206 坪
- 共同使用:12.445 坪
- 樓別/樓高: 1~2樓 / 14樓
- 法定用途:住商用
- 形式/類型:商用/ 店面
- 車位:坡道平面式
詳細資訊
特色說明
圖片介紹
















地圖 (點擊顯示地圖)
我家AI分析|物件診斷一次看
本內容由AI輔助分析整理,僅供參考,實際情況仍建議依此房仲說明與個人需求判斷。
SWOT 分析
| 面向 | 內容 |
|---|---|
| 優勢 (Strengths) | 1. 核心地段:位於南屯區大墩路精華地帶,鄰近向上路與公益路,生活機能成熟。 2. 雙重屬性:住商用性質提供較高規劃彈性,適合自住或經營辦公室、店鋪使用。 3. 稀缺資源:附設坡道平面式車位,在市中心為高價值亮點。 4. 格局優勢:1 至 2 樓店面具備大角店視野,且為開放式空間,裝修改造難度低。 |
| 劣勢 (Weaknesses) | 1. 總價門檻高:總價近兩千四百萬元,單坪價格約五十七萬,投資門檻較高。 2. 面積計算方式:42.2 坪不含車位面積,購屋者需注意總成本與實際得率的換算。 3. 噪音與人潮:臨近黃昏市場與主要幹道,白天可能較吵雜,對需要安靜環境的行業影響大。 |
| 機會 (Opportunities) | 1. 多元租賃需求:周邊有學校、酒店及連鎖店聚集,適合餐飲、診所、銀行或連鎖門市承租。 2. 升值潛力:南屯區為台中發展核心,隨著都市計畫完善,店面資產價值有望穩定成長。 3. 交通便利性:鄰近多條主要道路,利於吸引外部客群進駐。 |
| 威脅 (Threats) | 1. 流動性較低:商業店面市場交易週期通常比住宅長,未來轉手可能需要更多時間。 2. 景氣波動:經濟環境變化可能直接影響店家的營業狀況,進而衝擊租金收益。 3. 競爭激烈:周邊知名商家林立,代表該區域商號密度高,需考量市場飽和度。 |
物件評論
這筆位於南屯大墩核心的店面物件,整體而言值得有特定需求的買家考慮,但並非適合所有購屋者。
主要理由如下:首先,其地段極為優越,掌握台中核心交通動脈與成熟生活圈,商業價值高;其次,附贈的坡道車位在市中心屬於稀缺資源,能大幅提升實用性與吸引力;最後,住商混合的使用性質提供了良好的投資彈性。然而,由於總價與單價均屬高標,且為商業產權(涉及稅務差異),建議您需先評估自身資金規劃或經營計畫後再行決定。若您是尋求資產配置或準備自營事業,這是一個潛力相當的標的。
問與答
台中豪宅顧問
台中豪宅顧問
吳育萱(仲介,收取服務費)
暱稱:吳育萱
專業品質:
服務態度:
房仲電話:0931-131190
訂閱:0 (加入)七期河南向上 加盟店
經紀業名稱: 立居不動產有限公司
證號: (111)中市經紀字第00707號
台中豪宅顧問 吳育萱 0931131190
2006.1 - 2017.5 永慶不動產(加盟店) -西湖直營店 任 店經理
2017.11 - 2021.5 永慶不動產(加盟店)-新市府加盟店 任 店協理&不動產經紀人
2021.6 - 2021.6 永慶不動產(加盟店)-七期河南向上加盟店 任 店東&不動產經紀人
於2010.3獲得 不動產經紀人
於2017.2獲得 台北市第十三屆優良經紀人
育萱於96年開始從事房地產業至今, 96~106年這十年期間在台北永慶房屋-內湖大直區服務,106年回到台中我從小成長且熟悉的地方。育萱自在台北直營店就非常擅長銷售分析重劃區內電梯大樓,豪宅別墅,透天等產品;因自己本身有普考不動產經紀人證照,所以也替無數客戶規劃過資產重新配置和稅務諮詢等重大規劃.若貴芳鄰有任何不動產資訊需要諮詢,都歡迎您的來電,育萱都很樂意提供您精準資訊.
台中豪宅顧問 七期青玉岸高樓層雙平面車位我開最低
台中市 西屯區
台中豪宅顧問 國聚花園御所最美三房視野戶 歡迎詢問
台中市 南屯區
台中豪宅顧問 嶺東微笑城市2米蘭花園三房平車無限視野裝潢戶
台中市 南屯區
台中豪宅顧問 映花園14期洲際漢神巨蛋┃松強學區┃花園別墅
台中市 北屯區
台中豪宅顧問 社區精耕富宇世界花園高樓層帝王無限視野三房平車
台中市 南屯區
台中豪宅顧問 社區精耕 麗寶米蘭花園正三房平車採光戶
台中市 南屯區
台中豪宅顧問 近勤美.草悟道-精華地段<東方博舍>2房平車
台中市 西 區
台中豪宅顧問 嶺東富宇世界花園高樓層帝王無限視野三房平車
台中市 南屯區
台中豪宅顧問 水湳經貿特區│遠雄純寓全新朝南視野朝南二房平車
台中市 西屯區
台中豪宅顧問 BRT旁<企業家-辦公大樓>雙車位
台中市 西 區
預約看屋
發問
收藏房屋土地
分享
















我家粉絲團