大衛營 中國醫藥大學
北區買屋 /
北區買房
-
中國醫大衛營低總價電梯套房
預約看屋
更多優質好屋: 83
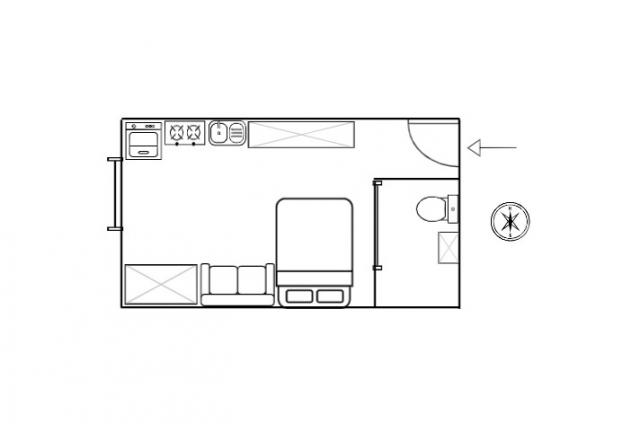
※ 房屋照片僅反應使用現況,用途以實際合法文件為準。若法定用途與現況不同,可能違法並有相關風險,請購屋或承租前詳加確認,以保障權益。
詳細資訊
管理費:702 元/月
管理描述:24小時管理室,有代收垃圾
鄰近學校:健行國小 五權國中 中國醫藥大學
生活機能:全聯
附近交通:四通八達 未來捷運橘線元保宮站
面臨路寬:30米
物件資訊內容以登記簿謄本或預售屋買賣契約為準,若有疑問請洽承辦人員。
特色說明
圖片介紹













地圖 (點擊顯示地圖)
問與答
台中買房買屋
台中買房買屋
高緯騰(仲介,收取服務費)
暱稱:高緯騰
專業品質:
服務態度:
房仲電話:0923-119515
讚:0 (加入)14期敦化松竹 加盟店
經紀業名稱: 承洋不動產有限公司
證號: (100)登字第172398號
北屯大樓公寓 高緯騰 0923119515
北屯大樓公寓 成功、仁化、塗城多商圈在旁大地坪明亮透天門前停車
台中市 大里區
潭子黃金地段中山路旁榮興商圈世紀林園文武雙全樓店
台中市 潭子區
精華區公園宅四面開窗全景採光三樓美寓
台中市 北 區
北屯大樓公寓國圖館高等法院麥當勞五權站國美館高樓層三房有車位
台中市 西 區
正12米光興路大地坪黃金透店 適大家庭或開創業開店
台中市 太平區
北屯大樓公寓 經貿園區逢甲商圈精裝四套房租金報酬好
台中市 西屯區
北屯大樓公寓 雙面鄰路三層樓邊間透店套房價
台中市 南 區
精武站太平新福路中山商圈低總價精緻三房美寓
台中市 太平區
北屯大樓公寓 曉明女中全新整理靜巷大空間捷運透天前院停車
台中市 北 區
太平富堂科學園區七米面寬三房樓店
台中市 太平區
預約看屋
發問
收藏房屋土地
分享














我家粉絲團