美濃國中 美濃
美濃買屋 /
美濃買房
-
美濃國中旁漂亮屋況便宜透天店面增建至四樓
預約看屋
更多優質好屋: 240
※ 房屋照片僅反應使用現況,用途以實際合法文件為準。若法定用途與現況不同,可能違法並有相關風險,請購屋或承租前詳加確認,以保障權益。
- 總價:798 萬
- 參考單價:25.37 萬/坪
- 地址:
高雄市
美濃區
成功路
地圖
🏷️ 查看區域實價登錄
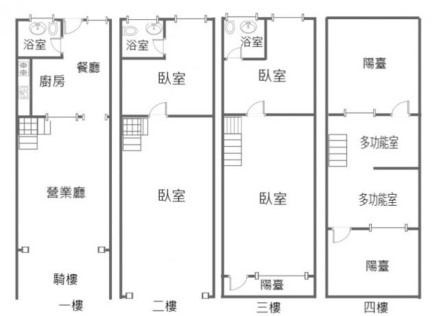
- 總坪數:31.46 坪 (不含車位面積)
- 主建物面積:31.46 坪
- 土地面積:22.893 坪
- 樓別/樓高: 1~2樓 / 2樓
- 屋齡:49 年
- 法定用途:住家用
- 形式/類型:商用/ 透天厝
詳細資訊
特色說明
圖片介紹





















地圖 (點擊顯示地圖)
我家AI分析|物件診斷一次看
本內容由AI輔助分析整理,僅供參考,實際情況仍建議依此房仲說明與個人需求判斷。
購屋分析報告:美濃區透天店面
一、SWOT 分析
| 面向 | 內容 |
|---|---|
| 優勢 (Strengths) | 1. 地點優越:位於美濃市中心成功路,鄰近國中西側及中正湖,生活機能與人潮穩定。 2. 性價比高:總價 798 萬,參考單價約 25.37 萬/坪,對於透天店面而言價格親民。 3. 空間實用:增建至四樓,實際使用坪數大於登記坪數;配置 5 房 3 衛,適合多人口居住或營業規劃。 4. 屋況良好:屋主維護整潔,描述為可立即入住,節省裝修成本。 |
| 劣勢 (Weaknesses) | 1. 屋齡過高:屋齡達 49 年,接近半世紀,結構老化風險可能增加後續維修負擔。 2. 坪效密度大:登記面積僅 31 餘坪卻規劃 5 房,個別房間面寬可能較小,私密性與採光可能受限。 3. 稅籍屬性:登記為商用透天,若作為純住宅使用,可能涉及房貸成數、稅率或子女學區認定上的差異。 |
| 機會 (Opportunities) | 1. 多元用途:適合診所、補習班、工作室或住辦合一,可自用亦可出租以獲取長期收益。 2. 潛在增值:若增建部分能取得合法證明或未來有都市更新計畫,房價可能有調升空間。 |
| 威脅 (Threats) | 1. 法律風險:描述提及「增建至四樓」,需確認頂樓是否為違建;若是,可能面臨查拆風險或交易困難。 2. 融資限制:高齡房屋銀行貸款年限通常較短,甚至受限貸款成數,購屋者需自籌較高資金。 3. 流動性偏低:老舊透天在區域內的接盤客群相對有限,未來轉手速度可能不如新案。 |
二、物件評論總結
是否值得購買: 此物件對於「自用創業」或「長期收租投資」的買家來說具有吸引力,但對於追求「資產保值的長線投資」或「純自住改善」者則需高度謹慎。
主要理由:
- 地段與性價比優勢明顯:在美濃市中心擁有透天店面且總價可控,加上增建後空間大,對於需要實體店面創業(如診所、補習班)的買家而言,是極具競爭力的選擇,能大幅降低租金成本。
- 老舊房屋潛在風險需審慎評估:49 年屋齡與未明確記載的增建合法性是最大隱憂。建議在簽約前務必委託專業技師確認增建是否屬於違建,並預留老屋結構加固或維修的預算。若銀行無法核貸或貸款年限過短,可能會增加購屋者的資金壓力。
- 結論:若您能解決融資問題並確認房屋結構安全與增建合法性,此物件能以較低的門檻獲得大面積的使用空間,是一筆高 CP 值的投資;反之,建議優先考慮屋齡較新、产权清晰的商品房以規避風險。
問與答
三民左營買屋
三民左營買屋
永翊不動產股份有限公司(仲介,收取服務費)
暱稱:永翊不動產股份有限公司
專業品質:
服務態度:
房仲電話:07-3-591091
訂閱:11 (加入)高雄裕誠河堤 加盟店
經紀業名稱: 永翊不動產股份有限公司
證號: (100)登字第178766 號
三民左營買屋
有巢氏高雄裕誠河堤
值班人員:07-3591091
室內電話:07-3591091
鳳山五甲瑞隆商圈★稀有5大套房騎樓透天★黃金地段
高雄市 鳳山區
亞灣區*輕軌*光榮碼頭*5+6樓美寓
高雄市 苓雅區
步行5分高雄大學車墅#輕屋齡#客餐廳在一樓
高雄市 楠梓區
專*文藻金獅湖鼎新商圈全新整理3+1房平車*商業地*
高雄市 三民區
大樂河堤公園*可看屋全新交屋景觀2房2衛+平車
高雄市 三民區
三塊厝站*全新建案*頂級雙併電梯別墅(一)
高雄市 三民區
鳳山國中捷運站/中高樓層/翻新美二房
高雄市 鳳山區
步行3分到高科大#橋科#視野採光三房車位#4年屋
高雄市 楠梓區
德民、右昌車墅透天★燕子來築巢了喔★屋況氣場極佳
高雄市 楠梓區
榮總商圈/全新未住中樓層/三房平車雙衛浴開窗
高雄市 仁武區
預約看屋
發問
收藏房屋土地
分享





















我家粉絲團