詳細資訊
物件資訊內容以登記簿謄本或預售屋買賣契約為準,若有疑問請洽承辦人員。
特色說明
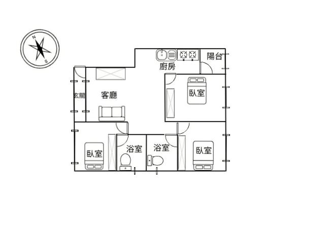
圖片介紹











地圖 (點擊顯示地圖)
問與答
賣家資訊
台中太平買房 台中東區買房
富屋不動產(仲介,收取服務費)
暱稱:富屋不動產
專業品質:
服務態度:
房仲電話:0422-113993
讚:0 (加入)台中東區樂業 加盟店
經紀業名稱: 富屋不動產經紀有限公司
證號: 103年中市經紀字號01371號
台中太平買房 台中東區買房 富屋不動產 0422113993
北太平新光特區藝術家雙車透天別墅 台中太平買房
台中市 太平區
樹孝中山商圈旁4樓騎樓式透天店舖 台中太平買房
台中市 太平區
樹孝生活圈電梯直達兩房附平車小倆口幸福宅 台中太平買房
台中市 太平區
一中商圈旁|全新整理大三房|雙面採光稀有釋出
台中市 北 區
北區梅亭街精華套房收租自用298萬
台中市 北 區
全新整理北太平靜巷活路三房低總價平房 台中太平買房
台中市 太平區
鄰中興大學輕屋齡兩房雙平車帝王戶
台中市 大里區
南太平長億夜市商圈孝親三代同堂透天 台中太平買房
台中市 太平區
獨家☆總太共好河岸視野三房連號雙平車
台中市 北屯區
富宇晴綻花園|入門玄關|屋況極佳大三房平車
台中市 北屯區
預約看屋
發問
收藏房屋土地
分享











預約看屋

我家粉絲團