北大國小電梯大樓
三峽買屋 /
三峽買房
-
三峽北大社區 捷運宅悅灣謙悅超值大三房
預約看屋
更多優質好屋: 28
※ 房屋照片僅反應使用現況,用途以實際合法文件為準。若法定用途與現況不同,可能違法並有相關風險,請購屋或承租前詳加確認,以保障權益。
- 總價:1398 萬
- 參考單價:46.2 萬/坪
- 地址:
新北市
三峽區
民生街
地圖
🏷️ 查看區域實價登錄
- 社區:悅灣謙悅
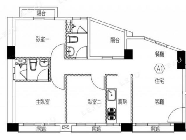
- 格局: 3房(室) 2廳 2衛 2陽台 1廚房
- 總坪數:30.259 坪 (不含車位面積)
- 主建物面積:18.525 坪
- 附屬建物面積:2.877 坪
- 共同使用:8.857 坪
- 樓別/樓高: 2樓 / 5樓
- 屋齡:8 年
- 法定用途:住家用
- 形式/類型:住宅/ 華廈
- 電梯:有
房市行情分析
本圖表依實價登錄資料整理,提供市場行情參考;實際價格仍會因屋況、條件不同而有所差異,建議洽詢承辦營業員進一步了解。
詳細資訊
朝向方位:坐北朝南
鄰近學校:龍埔國小,北大國小,三峽國中
鄰近公園:三峽龍埔公園
生活機能:三峽公有市場 台糖
附近交通:LB06三峽站
物件資訊內容以登記簿謄本或預售屋買賣契約為準,若有疑問請洽承辦人員。
特色說明
圖片介紹














地圖 (點擊顯示地圖)
專家亮點
本內容由 AI 輔助分析整理,僅供參考,實際情況仍建議依此房仲說明與個人需求判斷。
此物件對於預算有限但重視通勤與子女教育的家庭來說,具有相當的吸引力。總價在捷運周邊三峽區屬於親民門檻,且學區與生活機能完整,是典型的「首購友善型」標的。然而,您需留意 2 樓屬低樓層,採光、隱私及噪音問題可能會比中高低楼层明显,且無車位配置也是額外成本。若您能接受此條件並偏好低樓層的出入便利,這是一筆值得入手的資產;若對居住品質敏感度極高或需停車方便,則建議謹慎評估。
問與答
三峽北大社區
三峽北大社區
韓瓊儀(仲介,收取服務費)
暱稱:韓瓊儀
專業品質:
服務態度:
房仲電話:0986-524511
訂閱:3 (加入)三峽捷運站前 加盟店
經紀業名稱: 愛屋不動產經紀有限公司
證號: 112)登字第454484號
三峽北大社區 韓瓊儀 0986524511
預約看屋
發問
收藏房屋土地
分享














我家粉絲團