東區全新收租電梯透套
東區買屋 /
東區買房
-
即將完工 東區十甲路,預售,11間套房透天 全新收租電梯透套
預約看屋
更多優質好屋: 42
※ 房屋照片僅反應使用現況,用途以實際合法文件為準。若法定用途與現況不同,可能違法並有相關風險,請購屋或承租前詳加確認,以保障權益。
- 總價:3680 萬
- 參考單價:51.11 萬/坪
- 地址:
台中市
東區
十甲路
地圖
🏷️ 查看區域實價登錄
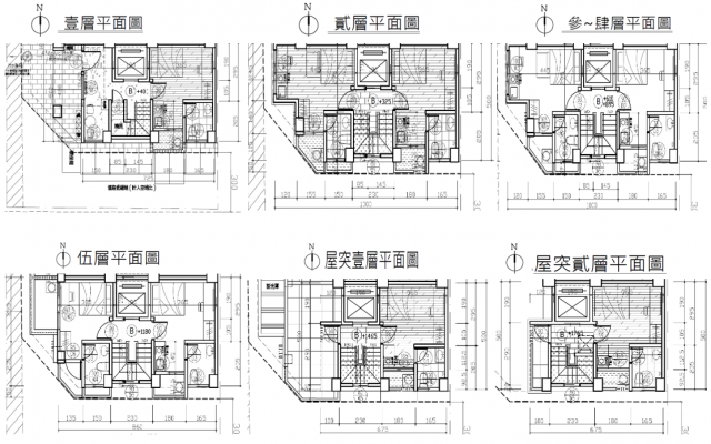
- 格局: 11房(室) 11衛 11陽台
- 總坪數:72 坪 (不含車位面積)
- 主建物面積:72 坪
- 土地面積:29.34 坪
- 樓別/樓高: 整棟 / 5樓
- 法定用途:住家用
- 形式/類型:住宅/ 透天厝
- 電梯:有
詳細資訊
鄰近學校:進德國民小學、雙十國民中學
鄰近公園:精武公園
生活機能:十甲旺市場
附近交通:精武火車站、精武進化路口公車站
物件資訊內容以登記簿謄本或預售屋買賣契約為準,若有疑問請洽承辦人員。
特色說明
圖片介紹





地圖 (點擊顯示地圖)
我家AI分析|物件診斷一次看
本內容由AI輔助分析整理,僅供參考,實際情況仍建議依此房仲說明與個人需求判斷。
SWOT 分析
| 面向 | 內容 |
|---|---|
| 優勢 (Strengths) | 1. 地段優越:位於台中東區十甲路,鄰近雙十中學、進德國小等學校,且靠近精武火車站與公車站,租屋需求穩定。 2. 產品規劃完善:整棟提供 11 間套房皆配獨立衛浴並開窗通風,加裝六人座電梯,符合現代居住與投資管理需求。 3. 品質有保障:專案已獲使用執照,預計 2026 年第三季交屋,包含全新基配設施(如可麗衛浴、熱水器等),無後顧之憂。 |
| 劣勢 (Weaknesses) | 1. 總價門檻高:總價達 3,680 萬元,對購屋者資金調度能力要求較高。 2. 管理負擔重:整棟擁有 11 個單位,若自行管理需投入大量時間處理租戶、維修與公共區域清潔事宜。 3. 居住密度高:5 樓透天規劃 11 間房室,公共空間使用率可能較低,隱私性相對不如一般住戶。 |
| 機會 (Opportunities) | 1. 被動收入潛力:鄰近學區與交通樞紐,極易吸引學生或通勤族承租,有利於快速出租並獲取穩定現金流。 2. 區域發展紅利:台中東區為持續發展熱區,隨著基礎建設完善,房產潛在增值空間值得關注。 3. 新屋優勢:預售轉新成屋特性,初期無需擔心老舊維修問題,可降低持有成本。 |
| 威脅 (Threats) | 1. 市場波動風險:預計 2026 年交屋,屆時房地產景氣與租金水平可能不如預期。 2. 空置率風險:若租務市場轉冷或該區供給過量,將影響投資報酬率。 3. 流動性限制:總額高昂的投機性或多戶型住宅,未來轉手時可能不如一般自住房產容易脫手。 |
物件評論
此物件適合尋求「收租型」長期投資的買方,若您資金充裕且能接受管理成本,是值得考慮標的。主要理由在於其地理位置極具租賃優勢,位於台中熱門的東區學商圈與交通點,對於進德國小、雙十中學的學生家庭及通勤族來說吸引力強大,能有效保障租戶來源。
然而,建議您在簽約前務必仔細評估資金週轉與投資報酬率(ROI)。由於總價較高且為多單位型態,未來將涉及較複雜的管理事務與潛在維修費用。此外,雖已獲使照,但需考量 2026 年交屋期間的利率變動與區域景氣變化。若您能接受長期持有並規劃適當的租務管理,此物件能提供穩定的被動收入;若以短期資本利得為目標,則建議再審慎觀察後續市場走勢。
問與答
西區中古屋
西區中古屋
林逸翔(仲介,收取服務費)
暱稱:林逸翔
專業品質:
服務態度:
房仲電話:0919-091843
訂閱:0 (加入)台灣房屋 草悟道旗艦特許 加盟店
經紀業名稱: 萬家草悟道地產股份有限公司
證號: (107)登字第329787號
西區中古屋 林逸翔 0919-091-843
大家好!我是您身邊的房仲小助手,專注於為您找到理想的家!我秉持誠實、負責的態度,細心地聆聽每位客戶的需求,並用我的專業知識,幫助您在繁雜的房市中做出明智的選擇。
無論您是首次購屋,或是想要投資房地產,我都能提供您最專業的建議與支持。如果您對房市有任何疑問或需求,別猶豫,歡迎隨時與我聯繫!讓我們一起找到您夢想中的家吧!
惠文學區面公園視野~3房雙平車~非投資客 西屯 西區中古屋
台中市 西屯區
工學商圈三房休旅車位·前後陽台·衛浴開窗 南區 西區中古屋
台中市 南 區
孝親透天,門前雙車位,樹孝商圈,74號道 北太平 西區中古屋
台中市 太平區
四育國中旁市場小透天 南區低總價 西區中古屋
台中市 南 區
大降價⚽超大3房平車老豪宅巴洛克王朝⭐萬壽公園旁 西區中古屋
台中市 西 區
逢甲熊貓天下3房平車⭐無障礙通路電梯直達 西屯 西區中古屋
台中市 西屯區
五期八期,單身貴族 1+1房平車 南屯 西區中古屋
台中市 南屯區
<震後>順天環匯⭐投資飯店⭐飯店式服務 西屯 西區中古屋
台中市 西屯區
藝文特區,邊間朝南花園別墅 大地城國 太平,西區中古屋
台中市 太平區
藝術世居大空間附車位文心櫻花捷運宅 西屯 西區中古屋
台中市 西屯區

預約看屋
發問
收藏房屋土地
分享





我家粉絲團