房市行情分析
詳細資訊
朝向方位:坐北朝南
鄰近學校:豐年國小 新莊國中
鄰近公園:新泰公園
生活機能:豐年街市場
附近交通:捷運-新莊站
面臨路寬:6米
物件資訊內容以登記簿謄本或預售屋買賣契約為準,若有疑問請洽承辦人員。
特色說明
圖片介紹













地圖 (點擊顯示地圖)
我家AI分析|物件診斷一次看
本內容由AI輔助分析整理,僅供參考,實際情況仍建議依此房仲說明與個人需求判斷。
1. SWOT 分析
| 面向 | 內容 |
|---|---|
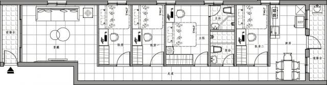
| 優勢 | 1. 生活與交通機能完善:鄰近新莊捷運站、多條公車路線及快速道路,通勤便利。周邊有夜市、市場與學校,日常生活需求滿足度高。 2. 格局規劃優異:擁有四房二廳二衛的寬敞格局,適合多人口家庭或需要居家辦公的買家。 3. 硬體條件尚可:屋內水電管線已更新,有天然瓦斯,且為邊間,採光與通風狀況良好。 4. 地段保值性:位於新莊核心生活圈,屬於傳統的高價值區域。 |
| 劣勢 | 1. 屋齡較高:屋齡達 46 年,可能影響銀行貸款成數與年限,增加購屋成本。 2. 樓層條件:2 樓屬低樓層,易受噪音與濕度影響,隱私性較弱,且無電梯(標示為公寓),對長輩或行動不便者不友善。 3. 缺乏車位:無附贈車位,在密集居住區的停車需求是一大痛點。 4. 單價偏高:每坪 49.34 萬的參考單價對於屋齡近半的公寓而言,議價空間與增值潛力可能受限。 5. 資訊不一致:標題標示「電梯」但資料欄位顯示「公寓」,需確認實際是否有電梯設施,此為潛在誤導風險。 |
| 機會 | 1. 低門檻購得大空間:在新莊核心區以較低總價取得四房格局,對於預算有限但需要大空間的家庭是一選項。 2. 出租潛力佳:四房格局在市場上具吸引力,若作為投資出租,租金回報率可能不錯。 3. 社區更新潛力:老舊社區若參與危老或都更重建,未來可能帶來資產增值。 |
| 威脅 | 1. 轉手流動性較差:高屋齡物件在未來市場上,目標買家群體較小,變現難度可能高於新成屋。 2. 貸款限制風險:銀行的老屋貸款政策可能縮緊,導致購屋者需提高自備款。 3. 維護成本增加:隨著屋齡增長,公共設施或管線的老化維修風險會逐漸提高。 4. 標示錯誤疑慮:標題與資料欄位的不一致可能代表仲介資訊不精確,購買過程需更加謹慎驗查。 |
2. 物件評論
總結與建議: 此物件屬於典型的「地段優異、硬體老舊」類型。其最大的賣點在於交通位置與四房的大格局,非常適合预算有限、需要大空間的家庭自住,或是看重租金回本的投資客。然而,46 年的屋齡與低樓層無電梯的條件,對於長期持有或考慮未來轉手者而言,存在較明顯的流動性風險。此外,標題提及電梯但資料未載明,這部分務必在實地看屋時向仲介確認,以免產生認知落差。
購買建議: 值得考慮,但需謹慎評估。 若您能接受高樓齡與無電梯的缺點,且確認該處確實能通關貸款條件,則此物件在該區域的性價比尚可。但若您重視資產保值性或希望房子更現代化,建議優先考慮電梯大樓或較新成屋。建議先確認房屋實際是否有電梯增設,並與仲介確認單價是否已反映在議價空間中。
問與答
新莊電梯社區
新莊電梯社區
黃子晏(仲介,收取服務費)
暱稱:黃子晏
專業品質:
服務態度:
房仲電話:0987-582369
訂閱:6 (加入)台灣房屋 捷運幸福特許 加盟店
經紀業名稱: 群佢不動產仲介經紀有限公司
證號: (109)年登字376243號
耐心、有毅力、能傾聽您的需求, 幫您圓一個家的夢。
我的經歷~~
孩子出生後,我毅然決然的離開職場,陪伴孩子走一段路。
並在偶然的機緣下,進入仁愛國小擔任認輔志工,
跟著學生和他們一同成長並完成空大的學業。
長達10幾年的服務,讓我深深的感受到施比受更有福,
而我所得到的也遠遠超過我所付出的。
這也是阿晏在二度就業的同時,
仍捨不得離開學校的原因,繼續當個快樂的志工。
預約看屋
發問
收藏房屋土地
分享













預約看屋

我家粉絲團