過嶺國中、中平國小、
中壢買屋 /
中壢買房
-
青埔過嶺買房 樺龍潮+2/中壢過嶺商圈/全新落成四房+平面車
預約看屋
更多優質好屋: 114
※ 房屋照片僅反應使用現況,用途以實際合法文件為準。若法定用途與現況不同,可能違法並有相關風險,請購屋或承租前詳加確認,以保障權益。
- 總價:1988 萬
- 參考單價:37.5 萬/坪
- 地址:
桃園市
中壢區
高鐵南路五段
地圖
🏷️ 查看區域實價登錄
- 社區:樺龍潮+2
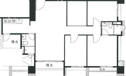
- 格局: 4房(室) 2廳 2衛
- 總坪數:53.02 坪 (包含車位面積)
- 主建物面積:25.607 坪
- 附屬建物面積:2.111 坪
- 共同使用:25.302 坪
- 車位坪數:11.641 坪
- 樓別/樓高: 8樓 / 15樓
- 屋齡:1 年
- 法定用途:集合住宅
- 形式/類型:住宅/ 電梯大樓
- 車位:坡道平面式
- 車位描述:B2-22
- 電梯:有
詳細資訊
管理費:4167 元/月
鄰近學校:中平國小、過嶺國中、中央大學
鄰近公園:松勇公園
生活機能:好市多、全聯
附近交通:A19桃園體育園區捷運站
物件資訊內容以登記簿謄本或預售屋買賣契約為準,若有疑問請洽承辦人員。
特色說明
圖片介紹















地圖 (點擊顯示地圖)
我家AI分析|物件診斷一次看
本內容由AI輔助分析整理,僅供參考,實際情況仍建議依此房仲說明與個人需求判斷。
SWOT 分析
| 面向 | 內容 |
|---|---|
| 優勢 (Strengths) | 1. 性價比高: 參考單價約 37.5 萬/坪且含平面車位,對於全新五房格局的住宅而言價格具有競爭力。 2. 居住機能強: 一屋四房兩廳兩衛,雙衛皆開窗保證通風採光,適合多人口家庭長期居住。 3. 新成屋優勢: 屋齡僅一年,外牆與設施較新,初期維修負擔低且無老舊社區管理問題。 4. 交通便利: 鄰近 A19 桃園體育園區站、國道一號及高鐵站,通勤與出差時間成本低。 |
| 劣勢 (Weaknesses) | 1. 持房成本: 每月管理費約 4,167 元,長期持有需納入家庭預算考量。 2. 區域流量: 地點位於高鐵南路五段,部分路段車流量大,若對噪音敏感需確認實際隔音效果。 3. 轉手競爭: 青埔與過嶺區新案供給量大,未來轉手時可能面臨同區新屋或中古屋的激烈競爭。 |
| 機會 (Opportunities) | 1. 增值潛力: 隨周邊商業機能(如好市多)成熟與捷運動能發酵,長期房價具上漲空間。 2. 租金需求: 鄰近中央大學與學校,學區宅性質穩定,若有出租打算可鎖定學生或教職員工族群。 3. 生活升級: 買房即享有現代化社區設計,隨區域發展,生活品質將持續提升。 |
| 威脅 (Threats) | 1. 房市波動: 整體房地產市場可能出現回檔或持倉成本上升風險(如房屋稅)。 2. 交通壅塞: 尖峰時段周邊主要道路易有堵車情況,影響日常通學或通勤的靈活性。 3. 區域飽和度: 若周邊大量新案同時落成,可能短時間內拉低房價上漲動能。 |
物件評論
購買建議:值得考慮,適合追求品質與未來的購屋者。
此物件在目前的市場環境下具備明顯的吸引力。首先,37.5 萬/坪的單價包含一個平面車位,對於青埔過嶺區域的新成屋而言,屬於合理且具競爭力的價格水準。其次,該物件擁有四房兩廳的大空間配置,加上雙衛浴皆有窗的通風設計,非常適合多代同堂的家庭或對居住品質要求較高的買家。
此外,鄰近 A19 捷運站、好市多以及完善的學區資源(中平國小、過嶺國中),確保了未來生活的便利性及資產的流動性。雖然需考慮區域新案競爭可能帶來的轉手壓力,但對於以自住為主並持有較長週期的買家來說,這是一個平衡了價格、空間與地段的優質選擇。建議在簽約前親自確認樓層採光狀況及周邊噪音環境是否符合個人敏感度標準。
問與答
青埔過嶺買房
青埔過嶺買房
過嶺店(仲介,收取服務費)
暱稱:過嶺店
專業品質:
服務態度:
房仲電話:0935-239901
訂閱:0 (加入)過嶺 加盟店
經紀業名稱: 鴻耀不動產有限公司
證號: (102)登字第254902號
?家是什麼?家是一份重擔,家是一份責任;
?家是彼此的真誠相待,家更是能夠白頭偕老的慢慢旅程。
?家是我們人生的驛站,是我們生活的樂園,也是我們避風的港灣。
?幸福成家~家入青埔一個「靜 善 境 美 」的居住環境
讓家入青埔領航團隊 為您幸福圓夢、幸福成家?
青埔過嶺買房 請指名社區小巢03-4903391
室內電話:034903391
青埔過嶺買房 中壢好市多-過嶺核心-宜誠天匯大三房車
桃園市 中壢區
青埔過嶺買房 大清城双|全新兩房雙衛浴大車位|過嶺中壢好市多
桃園市 中壢區
青埔過嶺買房 近中壢過嶺低總價花園別墅(快樂小鎮)
桃園市 楊梅區
青埔過嶺買房 桃園市觀音草漯電梯別墅/稀有店住/可店可住
桃園市 觀音區
青埔過嶺買房 中壢好市多商圈-松義美學高樓層-無敵視野2房車
桃園市 中壢區
青埔過嶺買房 中壢好市多商圈-宜誠耀次頂樓質感3房車
桃園市 中壢區
青埔過嶺買房 卓悅首富3房車/間間臥房有獨立衛浴/台北商大附近
桃園市 平鎮區
青埔過嶺買房 小檜溪|大有生活圈|愷悅假期|河景3房
桃園市 桃園區
青埔過嶺買房國王山莊邊間大地坪|豪華飯店式別墅
新北市 三峽區
青埔過嶺買房 桃園中壢好市|多峰雲社區裝潢景觀四房車位
桃園市 中壢區
預約看屋
發問
收藏房屋土地
分享















我家粉絲團